Vuokrataan tuotantotilat - Lieto
Vakiotie 13, Tuulissuo / Avanti Ii, 21420 Lieto #10835896
Hallitilaa showroomilla
Osoite
Vakiotie 13, 21420 Lieto
Tilatyyppi
Tuotantotilaa
720 m2
Kiinteistö
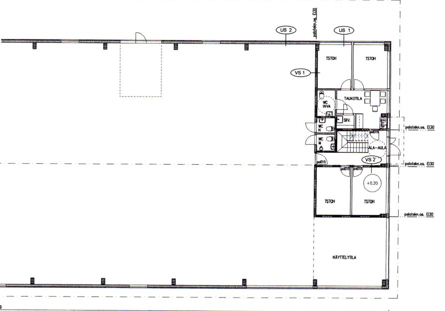
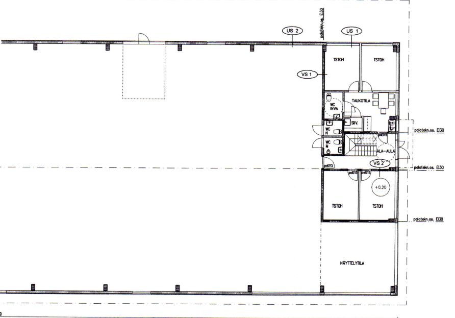
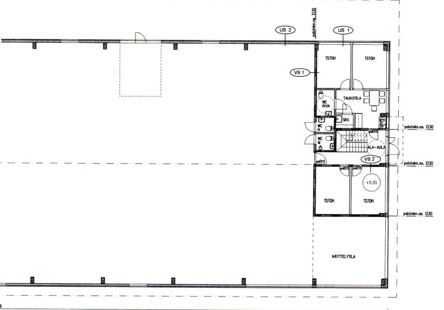
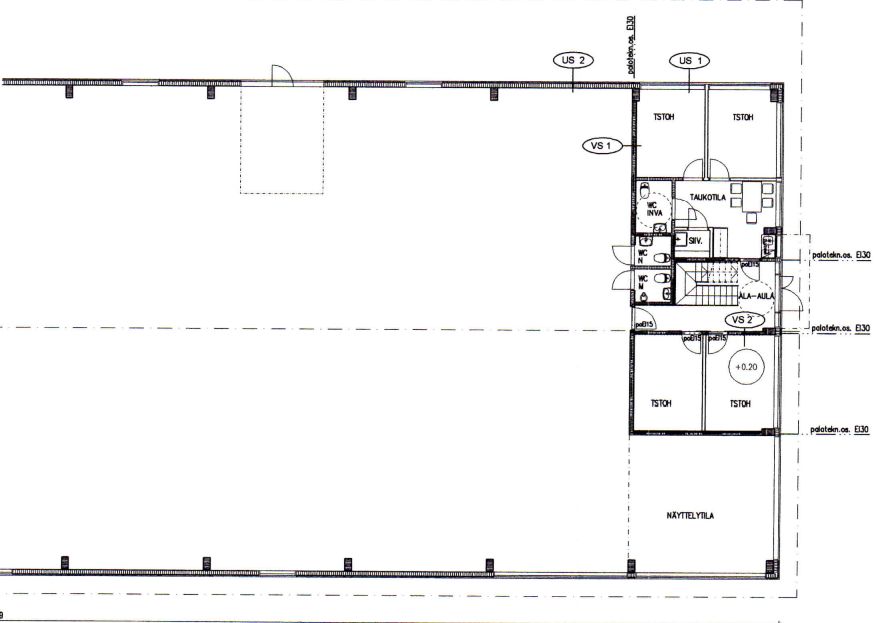
Monipuolinen hallitila konttori- ja myymälätiloilla
Vuokrataan toimitilaa isolla hallitilalla, toimistolla, varastolla ja showroomilla parhaalla näkyvyydellä rajoittuen aivan Turun Kehätiehen. Tämä Liedon Avanti II/Tuulissuon suositulla yritysalueella sijaitseva erittäin siistissä kunnossa oleva monitoimitila sopii niin tuotantoon, maahantuonnin tukikohdaksi, liiketilaksi, varastointiin, kokoonpanoon, jne.
Erillinen sisäänkäynti toimistotiloihin johtaa isoon aulatilaan ja valoisiin toimistohuoneisiin ja keittiöön. Toimiston yhteydessä on inva WC suihkulla.
Hallissa on lattiakaivot ja nosto-ovi (korkeus 4,5 metriä). Asvaltoitu, tasainen piha, jonka kunnossapitokulut jaetaan pihapiirin muiden vuokralaisten kesken neliöihin perustuen. Kiinteistöön tulee valokuitu.
Pinnat ovat erittäin siistissä kunnossa. Tilat lämpiävät ja viilentyvät ilmalämpöpumpuilla.
Yrityksen näkyvyys voidaan ottaa tehokkaasti käyttöön laajoilla seinäpinta-aloilla, jotka rajoittuvat miltei kiinni Kehätiehen ja Kehätien ylittävälle sillalle. Ympäristössä on paljon eri alojen toimijoita. Avanti I, II ja III -yritysaluetta kehitetään jatkuvasti niin uudiskohteiden rakentamisen kuin infrankin osalta.
Vuokrataso on 8,-/m2 + alv. Sähkö ja vesi laskutetaan kulutuksen mukaan.
Kohteeseen on helppoa löytää perille.
Kiinnostuitko? Ota yhteyttä ja sovitaan tutustumisaika näihin tiloihin!
Palvelumme on maksutonta tilanhakijoille.
Vuokrataan toimitilaa isolla hallitilalla, toimistolla, varastolla ja showroomilla parhaalla näkyvyydellä rajoittuen aivan Turun Kehätiehen. Tämä Liedon Avanti II/Tuulissuon suositulla yritysalueella sijaitseva erittäin siistissä kunnossa oleva monitoimitila sopii niin tuotantoon, maahantuonnin tukikohdaksi, liiketilaksi, varastointiin, kokoonpanoon, jne.
Erillinen sisäänkäynti toimistotiloihin johtaa isoon aulatilaan ja valoisiin toimistohuoneisiin ja keittiöön. Toimiston yhteydessä on inva WC suihkulla.
Hallissa on lattiakaivot ja nosto-ovi (korkeus 4,5 metriä). Asvaltoitu, tasainen piha, jonka kunnossapitokulut jaetaan pihapiirin muiden vuokralaisten kesken neliöihin perustuen. Kiinteistöön tulee valokuitu.
Pinnat ovat erittäin siistissä kunnossa. Tilat lämpiävät ja viilentyvät ilmalämpöpumpuilla.
Yrityksen näkyvyys voidaan ottaa tehokkaasti käyttöön laajoilla seinäpinta-aloilla, jotka rajoittuvat miltei kiinni Kehätiehen ja Kehätien ylittävälle sillalle. Ympäristössä on paljon eri alojen toimijoita. Avanti I, II ja III -yritysaluetta kehitetään jatkuvasti niin uudiskohteiden rakentamisen kuin infrankin osalta.
Vuokrataso on 8,-/m2 + alv. Sähkö ja vesi laskutetaan kulutuksen mukaan.
Kohteeseen on helppoa löytää perille.
Kiinnostuitko? Ota yhteyttä ja sovitaan tutustumisaika näihin tiloihin!
Palvelumme on maksutonta tilanhakijoille.
Vapautuu
Kysy
Kerros
1.
Ota yhteyttä
Logistila Oy
Tuureporinkatu 6, 20100 TURKU
Stina Lindroos
Näytä puhelinnumero
044 972 9468
Pyydä lisätietoa
