Vuokrataan toimistotilat - Helsinki
Triotto, Läkkisepäntie 21, Metsälä, 00620 Helsinki #10835887
Siisti 361 m² toimisto Käpylän juna-aseman välittömässä läheisyydessä
Osoite
Läkkisepäntie 21, 00620 Helsinki
Tilatyyppi
Toimistotilaa
361 m2
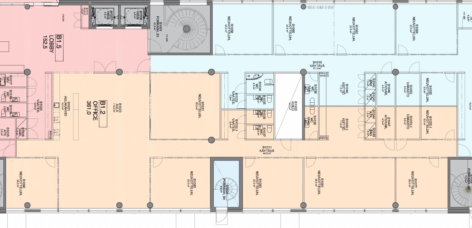
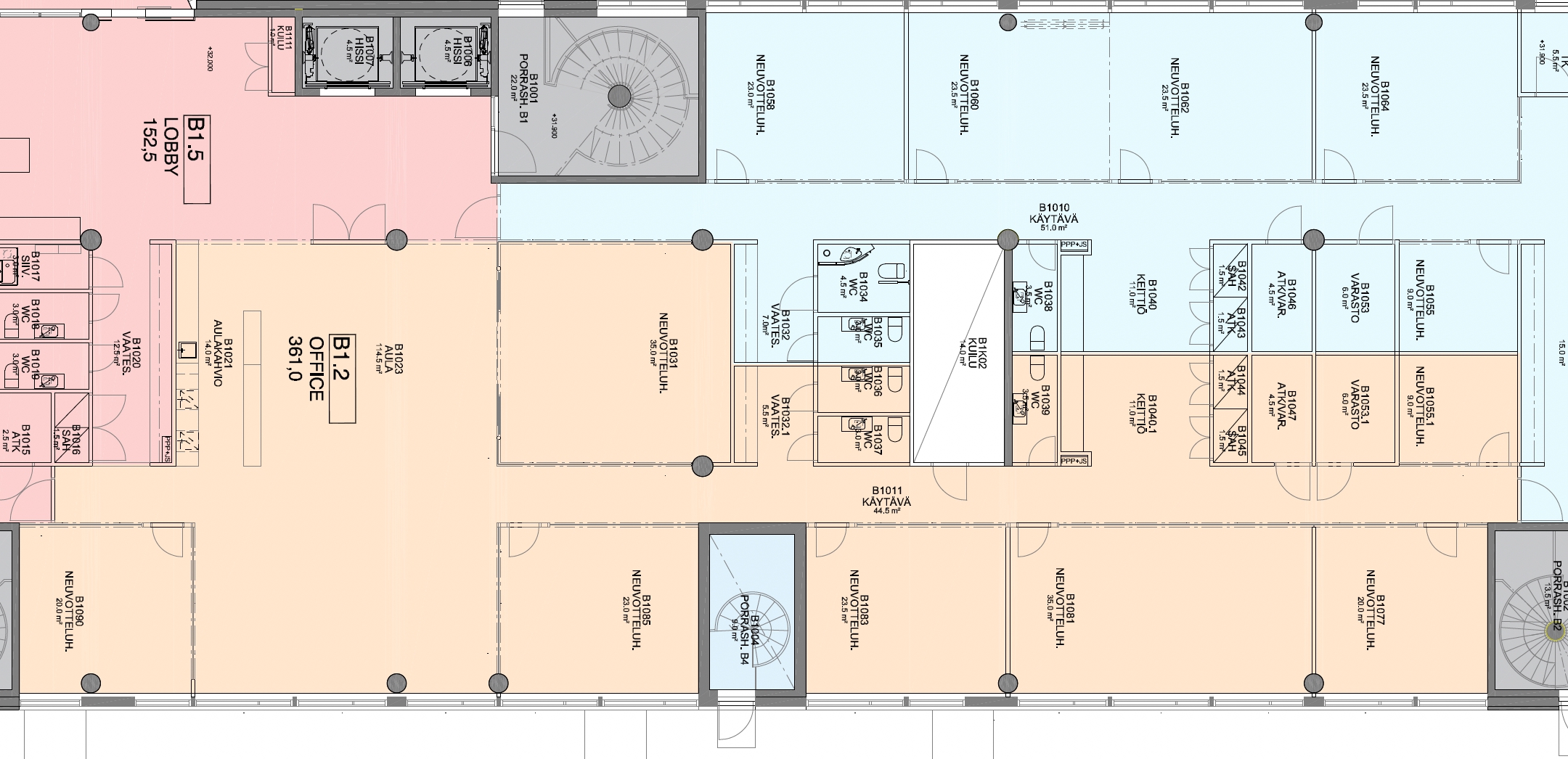
Pohjapiirros
Kiinteistö
1. kerroksen valoisa ja avara toimisto, jossa upea loungealue, erikokoisia neuvottelutiloja, avotoimistoa, varastotiloja ja wc-tilat. Tavallista korkeampi huonekorkeus lisää avaruutta.
Triotto on uudistettu yrityspuisto joka sijaitsee Metsälässä, joka on tunnettu teollisesta historiastaan ja rennosta elämäntyylistään. Se on ekologisesti uudistettu toimistokiinteistö, joka tarjoaa pääkonttoritasoisen kokemuksen kaiken
kokoisille vuokralaisille.
Triottossa yhdistyvät keskeinen sijainti, kätevät palvelut sekä rentouttavan vehreä työpäiväkokemus.
Triottoon on helppo tulla mistä tahansa, mutta se on silti riittävän kaukana ydinkeskustan hälinästä. Triotto sijaitsee aivan Käpylän juna-aseman, suurten autoteiden ja pyöräreitti Baanan lähellä, joten sinne pääsee helposti niin junalla, autolla kuin pyörälläkin. Myöskään Helsinki-Vantaan lentoasema ei ole kaukana.
Trioton palvelut: vastaanotto, ravintola, josta saa lounasta, kokoustarjoilut ja jossa voi järjestää tapahtumia, varattavissa olevat kokoustilat, yhteinen työskentelylounge, kuntosali, jonka yhteydestä löytyy myös pukukaapit ja suihkut, takapihan terassi, parkkipaikat, myös sähkölataus, pyörien säilytys.
Vuokrattavaan pinta-alaan lisätään 17 m ²jyvitysosuus yhteiskäyttöisistä aula-, sosiaali- ja kuntosalitiloista.
Triotto on uudistettu yrityspuisto joka sijaitsee Metsälässä, joka on tunnettu teollisesta historiastaan ja rennosta elämäntyylistään. Se on ekologisesti uudistettu toimistokiinteistö, joka tarjoaa pääkonttoritasoisen kokemuksen kaiken
kokoisille vuokralaisille.
Triottossa yhdistyvät keskeinen sijainti, kätevät palvelut sekä rentouttavan vehreä työpäiväkokemus.
Triottoon on helppo tulla mistä tahansa, mutta se on silti riittävän kaukana ydinkeskustan hälinästä. Triotto sijaitsee aivan Käpylän juna-aseman, suurten autoteiden ja pyöräreitti Baanan lähellä, joten sinne pääsee helposti niin junalla, autolla kuin pyörälläkin. Myöskään Helsinki-Vantaan lentoasema ei ole kaukana.
Trioton palvelut: vastaanotto, ravintola, josta saa lounasta, kokoustarjoilut ja jossa voi järjestää tapahtumia, varattavissa olevat kokoustilat, yhteinen työskentelylounge, kuntosali, jonka yhteydestä löytyy myös pukukaapit ja suihkut, takapihan terassi, parkkipaikat, myös sähkölataus, pyörien säilytys.
Vuokrattavaan pinta-alaan lisätään 17 m ²jyvitysosuus yhteiskäyttöisistä aula-, sosiaali- ja kuntosalitiloista.
Vapautuu
Heti vapaa
Kerros
1 / 7
Energiatehokkuusluokka
C2018
Hissi
Ota yhteyttä
ScanReal Oy LKV
Opus Business Park
Hitsaajankatu 24
00810 Helsinki
info@scanreal.fi
Puh:
Näytä puhelinnumero
020 730 8830
Sopivat toimitilat yhdellä otolla!
Kartoitamme toimitilatarpeesi ja etsimme yrityksellesi parhaiten sopivat vapaat toimitilat. Koska vuokranantajat maksavat palvelumme, on tämä yrityksellesi veloituksetonta.
Palvelumme on tilanhakijalle ilmainen
Pyydä lisätietoa
