Vuokrataan varastotilat - Lieto
Vakiotie 13A, 21420 Lieto #10835850
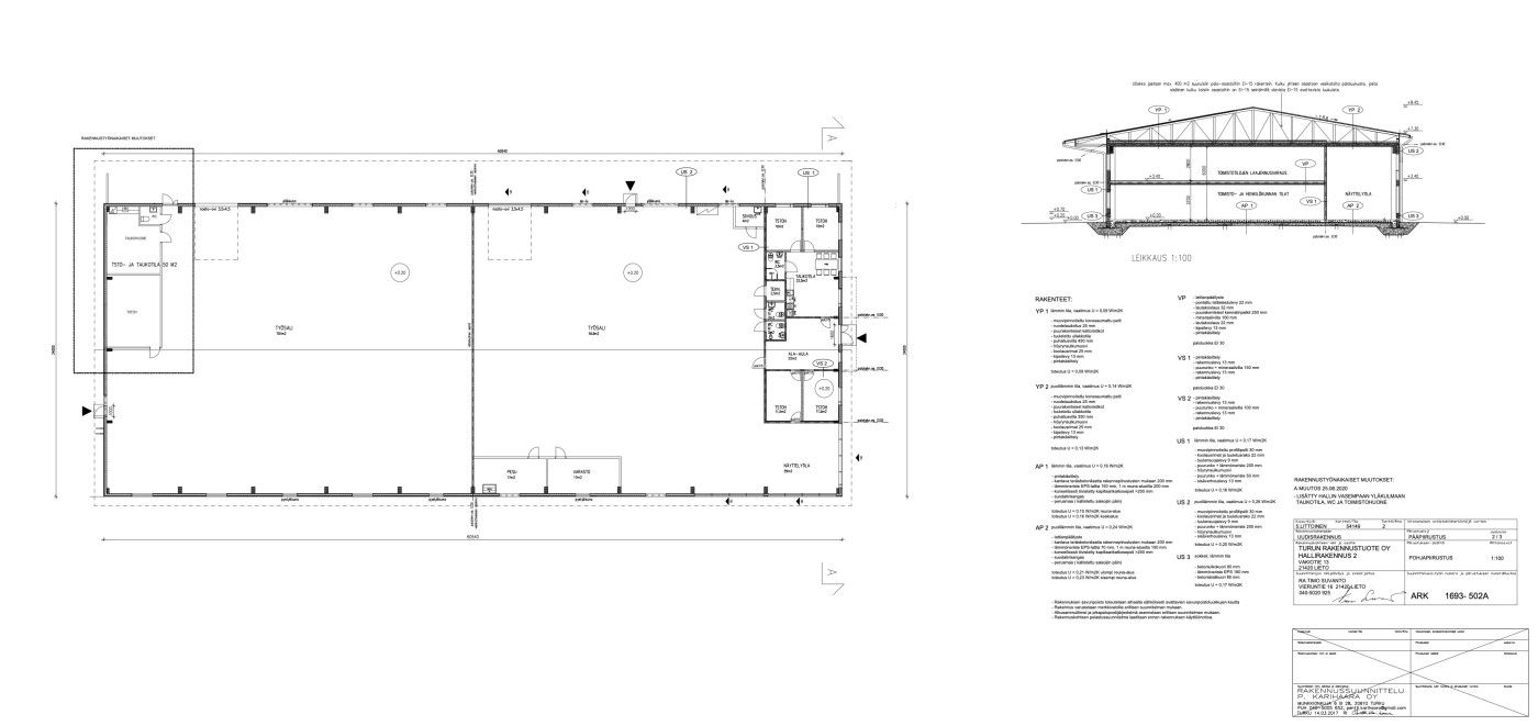
Vuokrattavana 720 m2 toimitilat Tuulissuon teollisuusalueella, osoitteessa Vakiotie 13a, Lieto.
Näkyvä sijainti Ohikulkutien varrella. Hallitilan lisäksi näyttävä ja valoisa showroom osasto sekä noin 100 m2 toimistotilat. Hallin puolella lattiakaivot, lattian kantavuus hyvää. Nosto-ovien korkeus 4,5 m.
Vuokrattavana 720 m2 toimitilat Tuulissuon teollisuusalueella, osoitteessa Vakiotie 13 A b, Lieto.
Näkyvä sijainti Ohikulkutien varrella. Tuotantotilan lisäksi näyttävä ja valoisa showroom osasto sekä 93 m2 toimistotilat. Hallin puolella lattiakaivot, lattian kantavuus hyvää. Nosto-ovien korkeus 4,2 m.
Jos nykyinen toimistotilan määrä ei ole riittävä, lisätilaa on mahdollista rakentaa 93 neliömetriä nykyisen toimistotilan toiseen kerrokseen.
Kiinteistöön tulee valokuitu.
Vuokrapyyntö 5 760 euroa/kk (8,00/m2) +alv. Sähkö ja vesi kulutuksen mukaan. Pihanhoidosta aiheutuneita kuluja jyvitetään vuokrattujen neliöiden mukaan.
Vapautuu 1.12.2025
Lisää toimitiloja www.rhg.fi
Kiinteistöön tulee valokuitu.
Vuokrapyyntö 5 760 euroa/kk (8,00/m2) +alv. Sähkö ja vesi kulutuksen mukaan. Pihanhoidosta aiheutuneita kuluja jyvitetään vuokrattujen neliöiden mukaan.
Vapautuu 1.12.2025
Lisää toimitiloja www.rhg.fi
RHG Real Estate
Hämeenkatu 2 B20, 20500 Turku
Tony Rosenblad
Hallituksen puheenjohtaja
Näytä puhelinnumero
+358 50 551 5375
