Vuokrataan tuotantotilat - Lieto
Vakiotie 13 A, 21420 Lieto #10835849
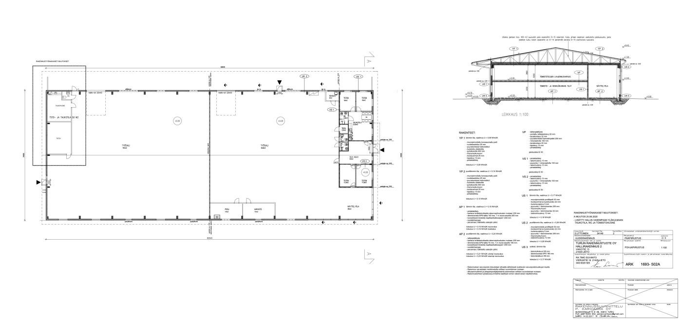
Vuokrattavana 720 m2 toimitilat Tuulissuon teollisuusalueella, osoitteessa Vakiotie 13 A b, Lieto.
Näkyvä sijainti Ohikulkutien varrella. Tuotantotilan lisäksi näyttävä ja valoisa showroom osasto sekä 93 m2 toimistotilat. Hallin puolella lattiakaivot, lattian kantavuus hyvää. Nosto-ovien korkeus 4,2 m.
Jos nykyinen toimistotilan määrä ei ole riittävä, lisätilaa on mahdollista rakentaa 93 neliömetriä nykyisen toimistotilan toiseen kerrokseen.
Kiinteistöön tulee valokuitu.
Vuokrapyyntö 5 760 euroa/kk (8,00/m2) +alv. Sähkö ja vesi kulutuksen mukaan. Pihanhoidosta aiheutuneita kuluja jyvitetään vuokrattujen neliöiden mukaan.
Vapautuu 1.12.2025
Lisää toimitiloja www.rhg.fi
RHG Real Estate
Hämeenkatu 2 B20, 20500 Turku
Tony Rosenblad
Hallituksen puheenjohtaja
Näytä puhelinnumero
+358 50 551 5375
