Vuokrataan toimistotilat, liiketilat, työtilat, muut tilat - Parainen
Tila 219 n. 199 m², Rantatie 30, 21600 Parainen #10835808
HETI VAPAANA TOIMISTOTILAA 199m2 PARAISTEN KESKUSTASSA
Osoite
Rantatie 30, 21600 Parainen
Tilatyyppi
Toimistotilaa
199 m2
Liiketilaa
199 m2
Työtilaa
199 m2
Muuta tilaa
199 m2
Yhteensä
199 m2
Tilajako
HETI VAPAAPA TOIMISTOTILAA 199m2 PARAISTEN KESKUSTASSA
Vuokra
1649 eur/kk
Vuokraan sisältyy lämpö
Kiinteistö
Koy Paraisten Virastotalo
Sijainti
Paraisten ydinkeskustan tuntumassa
Ympäristö
Näkyvä ja tunnettu paikka
Pysäköinti
Rakennuksen edustalla runsaasti ilmaista pysäköintitilaa.
Palvelut
Kaikki Paraisten keskustan palvelut kävelymatkan päässä
Kulkuyhteydet
Hyvät joka suuntaan
Muuta
Heti vapaana toimistotilaa 1992m2 Paraisten keskustassa kaupungintalon naapurissa.
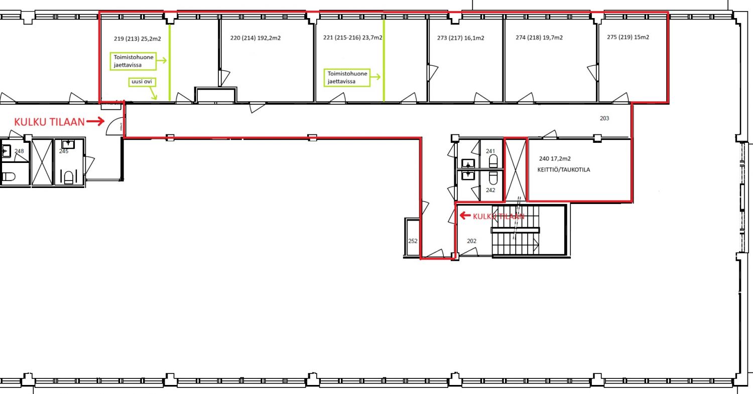
Tila nro 219.
- Siistiä, vaaleaa ja valoisaa tilaa
- kulku tilaan porraskäytävä / hissi
- Vuokraan sisältyy lämmitys
- Vuokran lisäksi sähkö ja vesimaksu
- Keittiö ja taukotila
- WC tilat 2 kpl
- Valokuitu nettiyhteys
- Mahdollisuus myös siivouspalveluun
- Mahdollista vuokrata myös ilman arvonlisäveroa
Tunnettu sijainti paraislaisille sekä helposti löydettävissä muualtakin tulleille.
Vuokrapyyntö 1649€/kk + sähkö + vesi + alv
Tilassa 6 toimistohuonetta (15m2-25m2), keittiö/neuvottelutila n. 17m2 ja wc-tilat.
Osan suuremmista toimistohuoneista voi jakaa kahteen osaan.
Kulku molempien porraskäytävien kautta.
Muutostyöt mahdollisia ja tarvittaessa voidaan miettiä myös suurempaa kokonaisuutta.
Normaalit sopimusehdot.
Luottotiedot tarkistetaan / takaaja.
Lisätiedot ja esittelyt:
Teemu Laaksonen
050-3738737
myynti@yritystiloja.fi
Tila nro 219.
- Siistiä, vaaleaa ja valoisaa tilaa
- kulku tilaan porraskäytävä / hissi
- Vuokraan sisältyy lämmitys
- Vuokran lisäksi sähkö ja vesimaksu
- Keittiö ja taukotila
- WC tilat 2 kpl
- Valokuitu nettiyhteys
- Mahdollisuus myös siivouspalveluun
- Mahdollista vuokrata myös ilman arvonlisäveroa
Tunnettu sijainti paraislaisille sekä helposti löydettävissä muualtakin tulleille.
Vuokrapyyntö 1649€/kk + sähkö + vesi + alv
Tilassa 6 toimistohuonetta (15m2-25m2), keittiö/neuvottelutila n. 17m2 ja wc-tilat.
Osan suuremmista toimistohuoneista voi jakaa kahteen osaan.
Kulku molempien porraskäytävien kautta.
Muutostyöt mahdollisia ja tarvittaessa voidaan miettiä myös suurempaa kokonaisuutta.
Normaalit sopimusehdot.
Luottotiedot tarkistetaan / takaaja.
Lisätiedot ja esittelyt:
Teemu Laaksonen
050-3738737
myynti@yritystiloja.fi
Vapautuu
Heti
Kerros
2 / 3
Näkyvällä paikalla
Hissi
Ota yhteyttä
A-Välitys
Lisätiedot ja esittelyt:
Teemu Laaksonen
Näytä puhelinnumero
0503738737
myynti@yritystiloja.fi
Pyydä lisätietoa
