Vuokrataan varastotilat - Vantaa
KOY Tikkurilan Talliosake 3 tila 155, Santaradantie 7, Tikkurila, 01380 Vantaa #10835803
Tikkurilan Talliosakkeelta monikäyttöinen kulmavarasto, autotalli, harraste-, toimitila 155.
Osoite
Santaradantie 7, 01380 Vantaa
Tilatyyppi
Varastotilaa
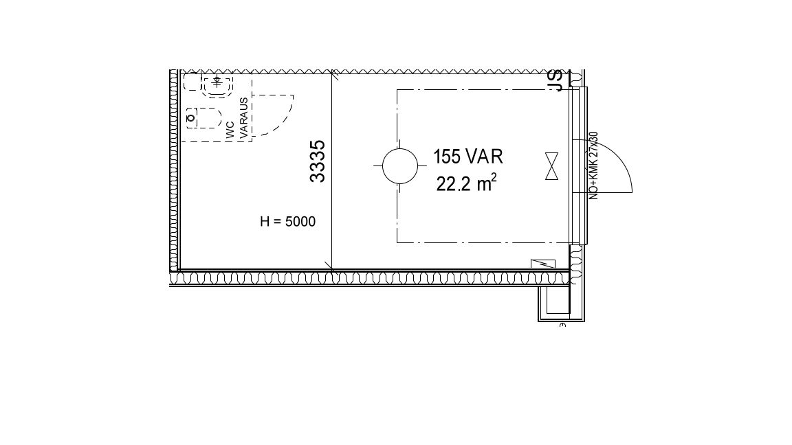
22 m2
Vuokra
435,00 €/kk
Kiinteistö
KOY Tikkurilan Talliosake 3
Sijainti
Tikkurilan Talliosake 3 sijaitsee lähellä Kehä III:sta ja Lahdenväylää. Lyhyt matka mm. Tikkurilan asemalle.
Muuta
Autolla sisään ajettava tila. Tilamitat: 6,60 (Pituus) 3,35 (Leveys) 5,00 (Korkeus). Ovimitat: 2,70 (Leveys) 3,00 (Korkeus).
Käyttötarkoitusesimerkkejä: - toimitila - varastotila - yrityksen työtarvikevarasto / kalustovarasto - kimppatalli - harrastetila - bändikämppä - autotalli - moottoripyörätalli - mönkijätalli. Tila ei sovellu autokorjaamoksi eikä autopesulaksi.
Sisäkuvat toistaiseksi viitteelliset päädyn toisesta kulmatilasta.
Tila on sähkölämmitteinen. Vuokralainen tekee tilaan oman sähkösopimuksen. Vesi- ja sähkömaksu kulutuksen mukaan. Vakuus kahden kuukauden vuokraa vastaava määrä. Haetaan pitkäaikaista vuokralaista. Yritysasiakkaille vuokraan lisätään alv 25,5%. Luottotiedot tarkistetaan.
Talliosake tuottaa joustavasti muunneltavia hallitiloja ympäri Suomen, joita yritykset ja yksityishenkilöt käyttävät tukikohtinaan erilaisille toiminnoille: yritys- ja liiketoimintaan, varastointiin sekä harrastuksiin.
Käyttötarkoitusesimerkkejä: - toimitila - varastotila - yrityksen työtarvikevarasto / kalustovarasto - kimppatalli - harrastetila - bändikämppä - autotalli - moottoripyörätalli - mönkijätalli. Tila ei sovellu autokorjaamoksi eikä autopesulaksi.
Sisäkuvat toistaiseksi viitteelliset päädyn toisesta kulmatilasta.
Tila on sähkölämmitteinen. Vuokralainen tekee tilaan oman sähkösopimuksen. Vesi- ja sähkömaksu kulutuksen mukaan. Vakuus kahden kuukauden vuokraa vastaava määrä. Haetaan pitkäaikaista vuokralaista. Yritysasiakkaille vuokraan lisätään alv 25,5%. Luottotiedot tarkistetaan.
Talliosake tuottaa joustavasti muunneltavia hallitiloja ympäri Suomen, joita yritykset ja yksityishenkilöt käyttävät tukikohtinaan erilaisille toiminnoille: yritys- ja liiketoimintaan, varastointiin sekä harrastuksiin.
Vapautuu
01.07.2026
Katutasossa
Näkyvällä paikalla
Ota yhteyttä
Talliosake Oy
Jani Sanevuori
Aluemyyntipäällikkö,
Etelä-Suomi, Vuokrauspalvelu, LVV
Näytä puhelinnumero
050 361 4814
Pyydä lisätietoa
