Vuokrataan varastotilat - Nurmijärvi
Ilvesvuorenkatu 17, 01900 Nurmijärvi #10835712
Uutta logistiikkatilaa !!!
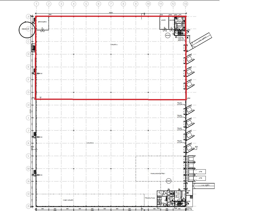
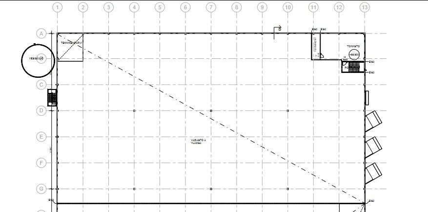
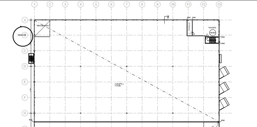
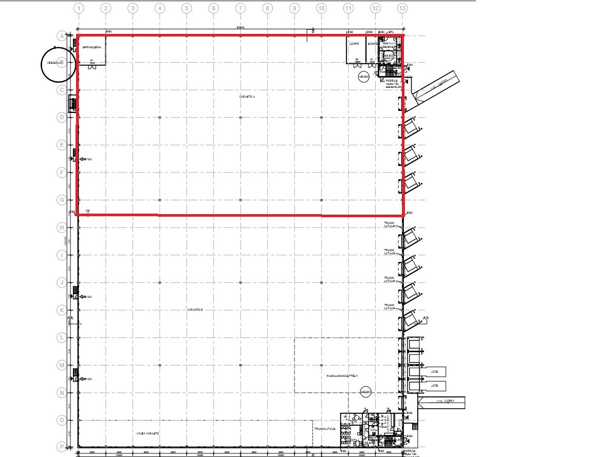
Vuokrataan 2024 valmistunutta logistiikkatilaa reilu 4000 m2. Tilan vapaakorkeus n 11,8 m. Tilassa sosiaalitilaa + pukuhuonetilaa sekä 2. kerroksessa toimistotilaa. Rekkataskuja sekä sisäänajoramppi.
Lisätietoa: Mika / 045 261 6555
Kohteella ei ole lain edellyttämää energiatodistusta tai energialuokka ei tiedossa.
Lisää kohteita: www.premises.fi
Osoite
Ilvesvuorenkatu 17, 01900 Nurmijärvi
Tilatyyppi
Varastotilaa
4075 m2
Ota yhteyttä
CRE PREMISES
Puh. Näytä puhelinnumero 020 7290 710
Vantaankoskentie 14
01670 VANTAA
Pyydä lisätietoa
