Vuokrataan liiketilat - Raisio
Kalustekatu 1A, 20320 Raisio #10835709
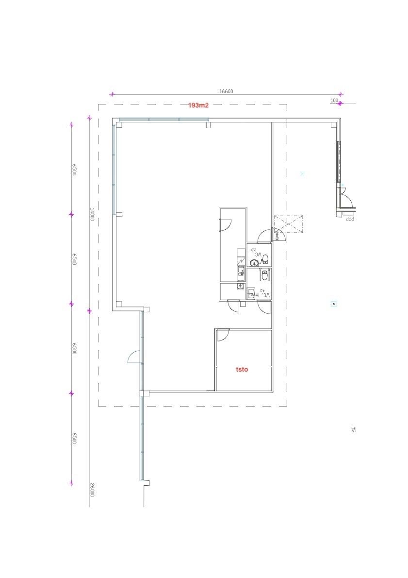
Vuokrattavana noin 193 m² liiketila erinomaisella sijainnilla vilkkaan ohikulkutien varrella, osoitteessa Kalustekatu 1a, Raisio.
Saman pihapiirin tunnettuja toimijoita ovat mm. Byggmax, VTR Workwear, KL Varaosat, Novart Turku, Vepsäläinen ja Kruunukaluste
Alueella on vahva kaupallinen vetovoima.
Tiloissa toimii tällä hetkellä sisustusalan yritys.
Vapautuminen onnistuu joustavasti ja tarvittaessa nopeallakin aikataululla.
Kysy lisätietoja!
Ei lain edellyttämää energiatodistusta.
RHG Real Estate
Hämeenkatu 2 B20, 20500 Turku
Näytä puhelinnumero
020 734 4020
Tony Rosenblad
Hallituksen puheenjohtaja
Näytä puhelinnumero
+358 50 551 5375
