Vuokrataan toimistotilat - Espoo
Sinikalliontie 3, Mankkaa, 02630 Espoo #10835684
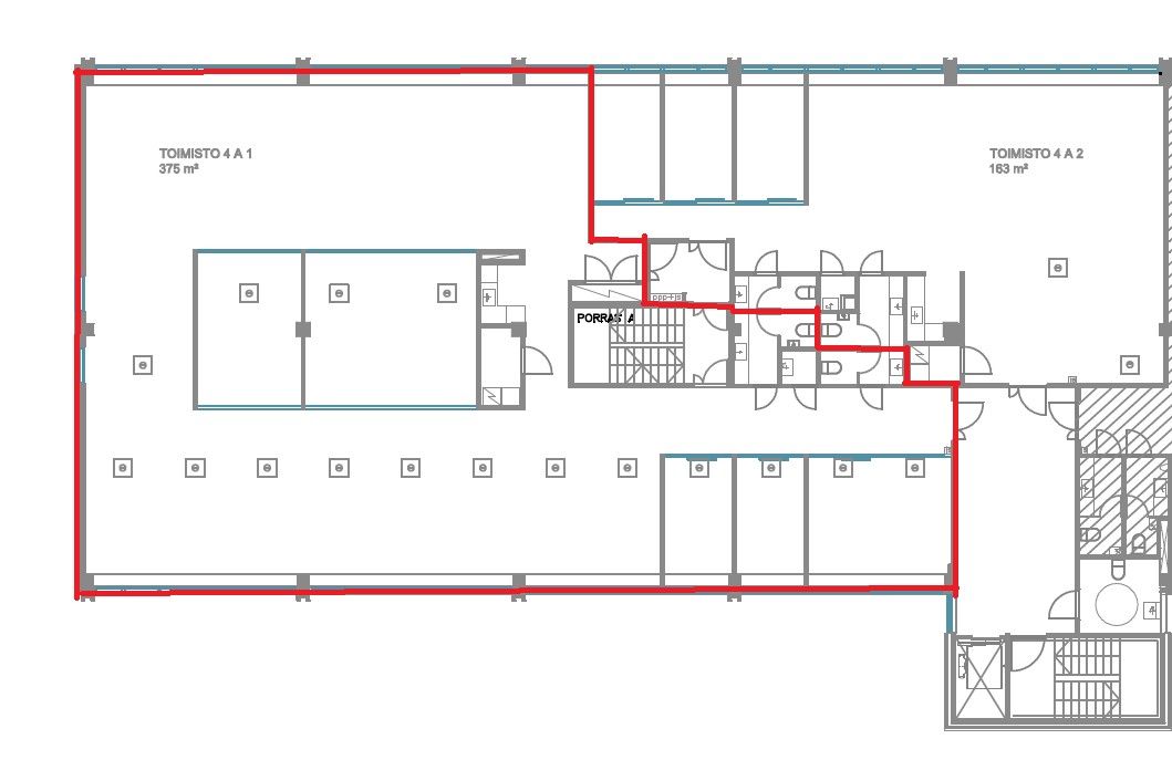
Vuokrattavana laadukas toimistotila Espoon Blue Berry -kiinteistön 4.kerroksesta. Tila tarjoaa monipuolisia mahdollisuuksia liiketoimintasi tarpeisiin. Avotilan lisäksi tilassa on useita toimistohuoneita, atk-pistokkeet, erinomainen valaistus sekä viihtyisät sosiaali- ja keittiötilat. Tilaan kulkee myös hissi.
Kiinteistön piha-alueella on runsaasti parkkipaikkoja ja lisäksi tarjolla on sähkölatauspaikkoja.
Blue Berryssä on myös lounasravintola, sekä Mankkaan Supermarketin palvelut vain lyhyen kävelymatkan päässä.
Kiinteistö sijaitsee erinomaisten liikenneyhteyksien varrella, julkisilla kulkuvälineillä. Lisäksi oman auton käyttäjille Helsinkiin ajomatka kestää vain 10 minuuttia.
Vuokraan lisätään voimassa oleva alv.
Ota yhteyttä ja kysy lisää!
www.blanctoimitilat.fi
Harri Laisto, Kaupanvahvistaja, LKV, Yrittäjä
+358 40 536 5590
harri.laisto@blanckiinteisto.com

Blanc Toimitilat
Harri Laisto
Toimitila-asiantuntija, CEO, Kaupanvahvistaja, LKV
Näytä puhelinnumero
+358405365590