Vuokrataan toimistotilat - Helsinki
Kaisaniemenkatu 13, Kaisaniemi, 00100 Helsinki #10835647
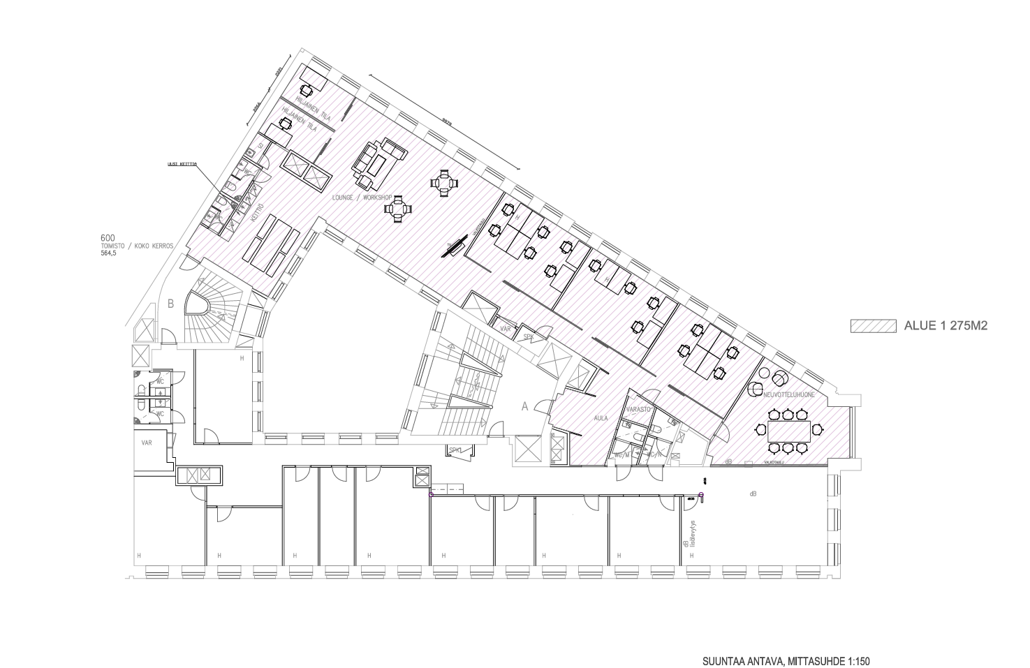
Huoneisiin jaettu toimistotila hyvällä paikalla Kaisaniemessä kaikkien julkisten kulkuvälineiden lähellä. Tila on nykyisellään koppikonttoria, mutta pohjaratkaisu joustaa vuokalaisen tarpeet ja toiveet huomioiden, esim. pohjakuvassa kuvatulla tavalla. Huom. Sisäkuvat ovat kuvia aiemmista tilaratkaisuista. Ota yhteyttä ja sovi esittely, vuokrauspalvelumme on tilanhakijoille maksuton.
Osoite
Kaisaniemenkatu 13, 00100 Helsinki
Tilatyyppi
Toimistotilaa
275 m2
Kiinteistö
Arkkitehti Yrjö Lindgrenin suunnittelema Kaisaniemenkatu 13 on 1920-luvulla valmistunut näyttävä punatiilirakennus, jota voidaan pitää Kaisaniemen maamerkkirakennuksena. Keskeisen sijaintinsa vuoksi kiinteistöä palvelee lähistön palvelut Kluuvissa sekä Rautatientorilla sekä välittömät julkisen liikenteen yhteydet metrosta ja bussista junaan. Ydinkeskustan tavoittaa kävellen parissa minuutissa.
Kulkuyhteydet
Kaikki vieressä - metro, raitiovaunut, juna bussit.
Muuta
Katso lisää kohteita kotisivujemme www.senaatinnotariaatti.fi hakukoneesta, sivustolta löytyy myös kohteita joita ei ole yleisessä jakelussa. Tai soita meille suoraan puh. 09 7745 100 ja kerro tarkemmin tilatarpeistanne, me löydämme teille parhaan mahdollisen tarjolla olevan toimitilaratkaisun.
Vapautuu
Heti
Kerros
6 / 8
Energiatehokkuusluokka
Ei lain edellyttämää energiatodistusta
Näkyvällä paikalla
Hissi
Liitetiedostot
Ota yhteyttä
Senaatin Notariaatti Oy LKV
Lämmittäjänkatu 4 A
FIN-00880 Helsinki
Tel:
Näytä puhelinnumero
+358 9 7745 100
Pyydä lisätietoa
