Vuokrataan - Raisio
Sitomokuja 6, 21200 Raisio #10835523
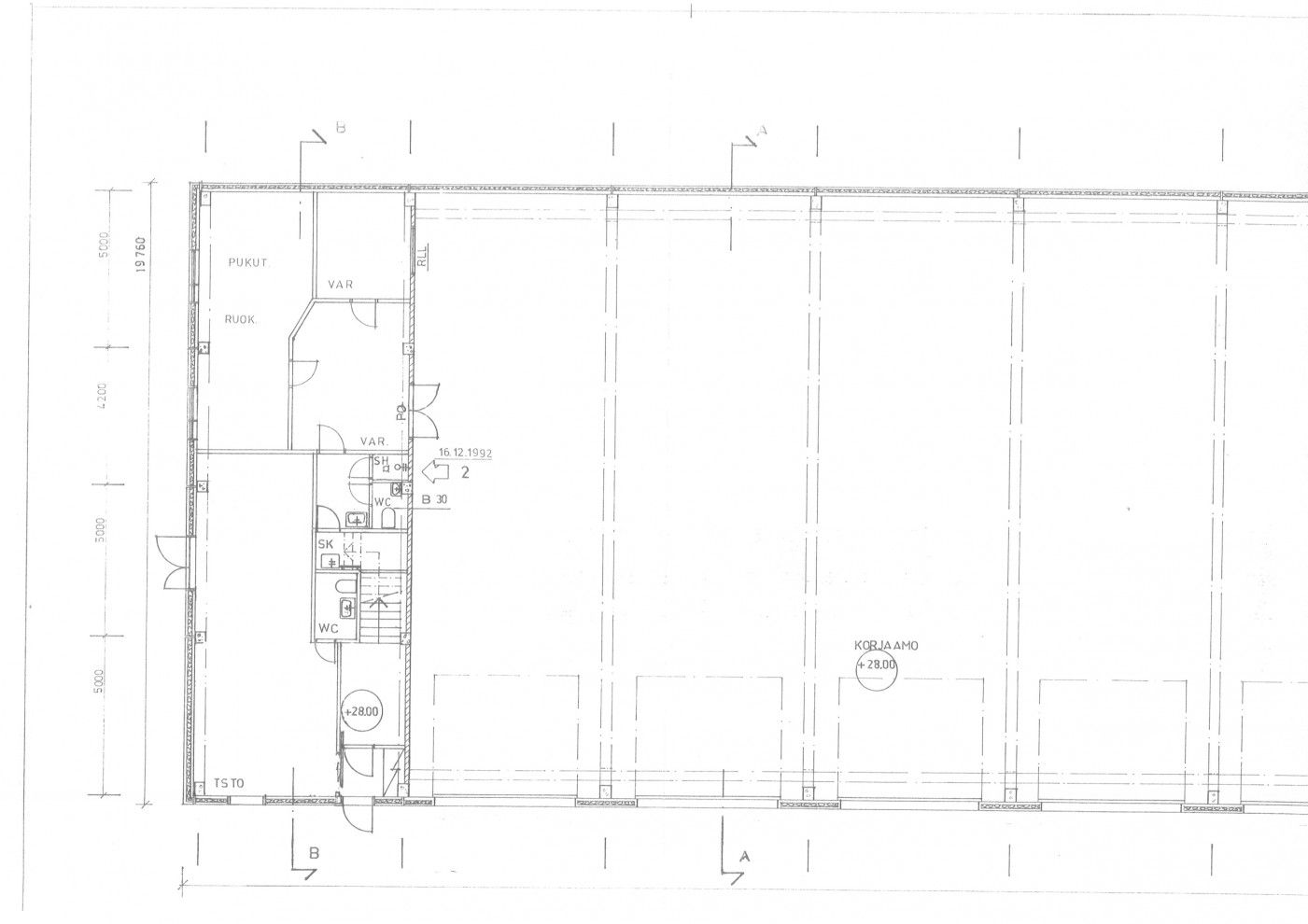
Vuokrattavana 140m2:n hallitila Raisiossa Haunisten teollisuus-alueella osoitteessa Sitomokuja 6, Raisio.
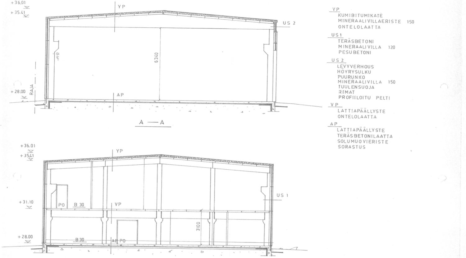
Hallin vapaa korkeus 6,3m, lattiakaivoja 1 kpl. Nosto-oven koko 4,50 m x 4,50 m. Tila käsittää hallitilaa 120m2 jossa vapaa korkeus 6m. Varastotila on 20m2. Tilassa on wc ja pieni toimisto
Sopii tuotanto-varasto käyttöön.
Vuokrapyyntö 900 euroa/kk + alv sisältäen noin 15 asteen peruslämmön. Sähkö ja vesi kulutuksen mukaan.
Vapautuu 1.10.2025
Lisää toimitiloja www.rhg.fi
RHG Real Estate
Hämeenkatu 2 B20, 20500 Turku
Näytä puhelinnumero
020 734 4020
Tony Rosenblad
Hallituksen puheenjohtaja
Näytä puhelinnumero
+358 50 551 5375
