Vuokrataan toimistotilat - Helsinki
Siltasaarenkatu 12, Hakaniemi, 00530 Helsinki #10835506
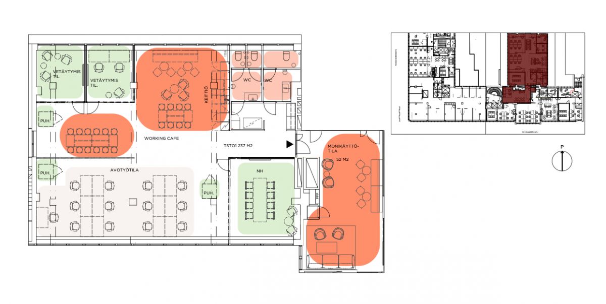
Vuokrataan upea ja täysin remontoitu muuttovalmis 7. kerroksen toimistotila Hakaniemestä. Toimisto on remontoitu laadukkailla ja vastuullisilla materiaaleilla ja toimiva tilaratkaisu vastaa nykytyöelämän vaatimuksia.
Sitasaarenkatu 12 kiinteistön tiloja uudistetaan tämän päivän tarpeisiin sopiviksi, mutta 50-luvun tyylistä henkeä kunnioittaen. Perinteikkään Paasitalon tilat ovat erinomaisten palveluiden ääressä. Lähialueen valikoimaan lukeutuu esimerkiksi monipuolinen valikoima lounasravintoloita, kahviloita, päivittäistavarakauppoja sekä vaateliikkeitä. Upeat näkymät Hakaniemen yli tarjoava kiinteistö valmistui saneerauksesta vuonna 2020 ja jatkaa kehittymistään.
Erinomaiset julkiset kulkuyhteydet, metroasema ja linja-auto- sekä raitiovaunupysäkit ovat talon edustalla. Autoilijoille vuokrattavissa pysäköintipaikkoja talon alta parkkihallista.
Lisätietoja soita 020 730 4530 tai info@repoint.fi. Palvelumme on tilanhakijalle ilmainen.
Hissi
Repoint Toimitilat Oy
Itälahdenkatu 22 B, 00210 Helsinki
Näytä puhelinnumero
020 730 4530
Lisätietoja soita Näytä puhelinnumero 020 730 4530 tai info@repoint.fi
https://repoint.fi/