Myydään tuotantotilat, varastotilat, työtilat, muut tilat - Espoo
Juvantasku 5, Juvanmalmi, 02920 Espoo #10835449
Myytävänä monikäyttöinen teollisuusvarasto- ja tuotantokäyttöön soveltuva tila, loistavien yhteyksien varrelta Espoon Juvanmalmilta.
Osoite
Juvantasku 5, 02920 Espoo
Tilatyyppi
Tuotantotilaa
472 m2
Varastotilaa
472 m2
Työtilaa
472 m2
Muuta tilaa
111 m2
Yhteensä
472 m2
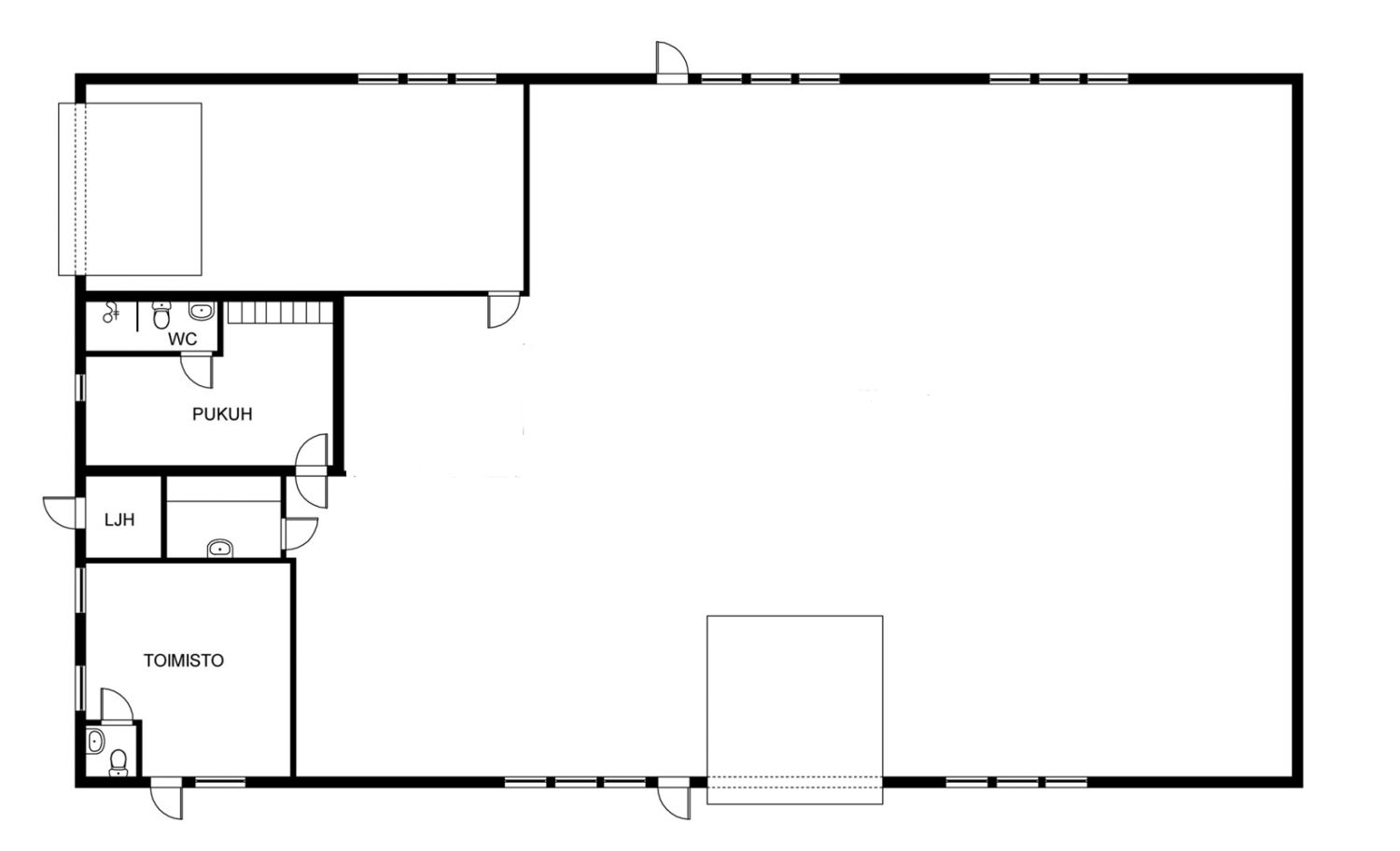
Pohjapiirros
Tila soveltuu
Autokorjaamo
Myyntihinta
580 000€
Kiinteistö
Myytävä 472 m2 tila sijaitsee hallirakennuksen päädyssä, josta löytyy yhteensä 3 lohkoa. Koko kiinteistön koko on 996 m2 ja se sijaitsee 2651 m2 tontilla, joka tarjoaa runsaat piha-alueet.
Tehokas ja selkeänmuotoinen varasto-ja tuotantotila on itsessään vapaakorkeudeltaan 6 metriä mahdollistaen monenlaisen toiminnan. Tilasta löytyy 2 kpl nosto-ovia, joista toinen on 5 metriä korkea helpottaen kaikkea tavarankuljettamista ja logistiikkaa. Tilasta löytyy myös erillinen huolto, työskentely tai varastointitilaksi soveltuva matalampi hallitila omalla nosto-ovellaan sekä toimistoksi tai vastaanottotilaksi soveltuva huone ensimmäisestä kerroksesta. Tilaan on rakennettu myös parviratkaisu joka helpottaa tavaroiden varastoimista kakkoskerroksessa. Toisesta kerroksesta löytyy myös hyvin toimistoksi tai neuvottelutilaksi soveltuvia huoneratkaisuja. Tilaa 2-kerroksessa on yhteensä 111m2, jotka eivät kuulu mukaan lattiapinta-alaan. Tilasta löytyy myös runsas sähkökapasiteetti, koneellinen ilmanvaihto lämmöntalteenotolla sekä lattiakaivot erilaisia tuotantotoimintoja varten.
Tehokas ja selkeänmuotoinen varasto-ja tuotantotila on itsessään vapaakorkeudeltaan 6 metriä mahdollistaen monenlaisen toiminnan. Tilasta löytyy 2 kpl nosto-ovia, joista toinen on 5 metriä korkea helpottaen kaikkea tavarankuljettamista ja logistiikkaa. Tilasta löytyy myös erillinen huolto, työskentely tai varastointitilaksi soveltuva matalampi hallitila omalla nosto-ovellaan sekä toimistoksi tai vastaanottotilaksi soveltuva huone ensimmäisestä kerroksesta. Tilaan on rakennettu myös parviratkaisu joka helpottaa tavaroiden varastoimista kakkoskerroksessa. Toisesta kerroksesta löytyy myös hyvin toimistoksi tai neuvottelutilaksi soveltuvia huoneratkaisuja. Tilaa 2-kerroksessa on yhteensä 111m2, jotka eivät kuulu mukaan lattiapinta-alaan. Tilasta löytyy myös runsas sähkökapasiteetti, koneellinen ilmanvaihto lämmöntalteenotolla sekä lattiakaivot erilaisia tuotantotoimintoja varten.
Sijainti
Kohde sijaitsee loistavien kulkuyhteyksien varrella Espoon Juvanmalmilla. Kiinteistöltä on vain minuutin matka Kehä III:lle, joka mahdollistaa sujuvat yhteydet ympäri pääkaupunkiseutua omalla autolla. Kohteen edustalta löytyy myös bussipysäkki josta kulkevat esimerkiksi linjat 521k ja 582v tarjoten sujuvat yhteydet aina Leppävaaraan saakka. Noin kilometrin päästä löytyy myös pysäkki josta suora yhteys Helsingin keskustaan saakka.
Palvelut
Kiinteistön läheisyydestä löytyy lounasravintoloita, päivittäistavarakauppa sekä runsaasti erilaisia erikoistarvikkeiden valmistukeen ja myyntiin keskittyneitä yrityksiä useilta eri toimialoilta.
Kulkuyhteydet
Kiinteistölle hyvät yhteydet omalla autolla Kehä III:sta pitkin useasta erisuunnasta. Linja-autopysäkit löytyvät myös kiinteistön lähistöltä tarjoten sujuvat yhteydet Espooseen, Vantaalle ja Helsingin keskustaan saakka.
Muuta
Kohde sijaitsee Espoon kaupungin vuokratontilla, joka on mahdollista lunastaa itselle vuokrakauden aikana.
Vapautuu
Heti
Rakennusvuosi
2006
Kerros
1
Katutasossa
Ota yhteyttä
MAP Tilat Oy
Mika Hermaala
mika.hermaala@maptilat.fi
Näytä puhelinnumero
040 192 1313
Energiakuja 3, 00180 Helsinki
Pyydä lisätietoa
