Vuokrataan toimistotilat - Oulu
Isokatu 32, Keskusta, 90100 Oulu #10835366
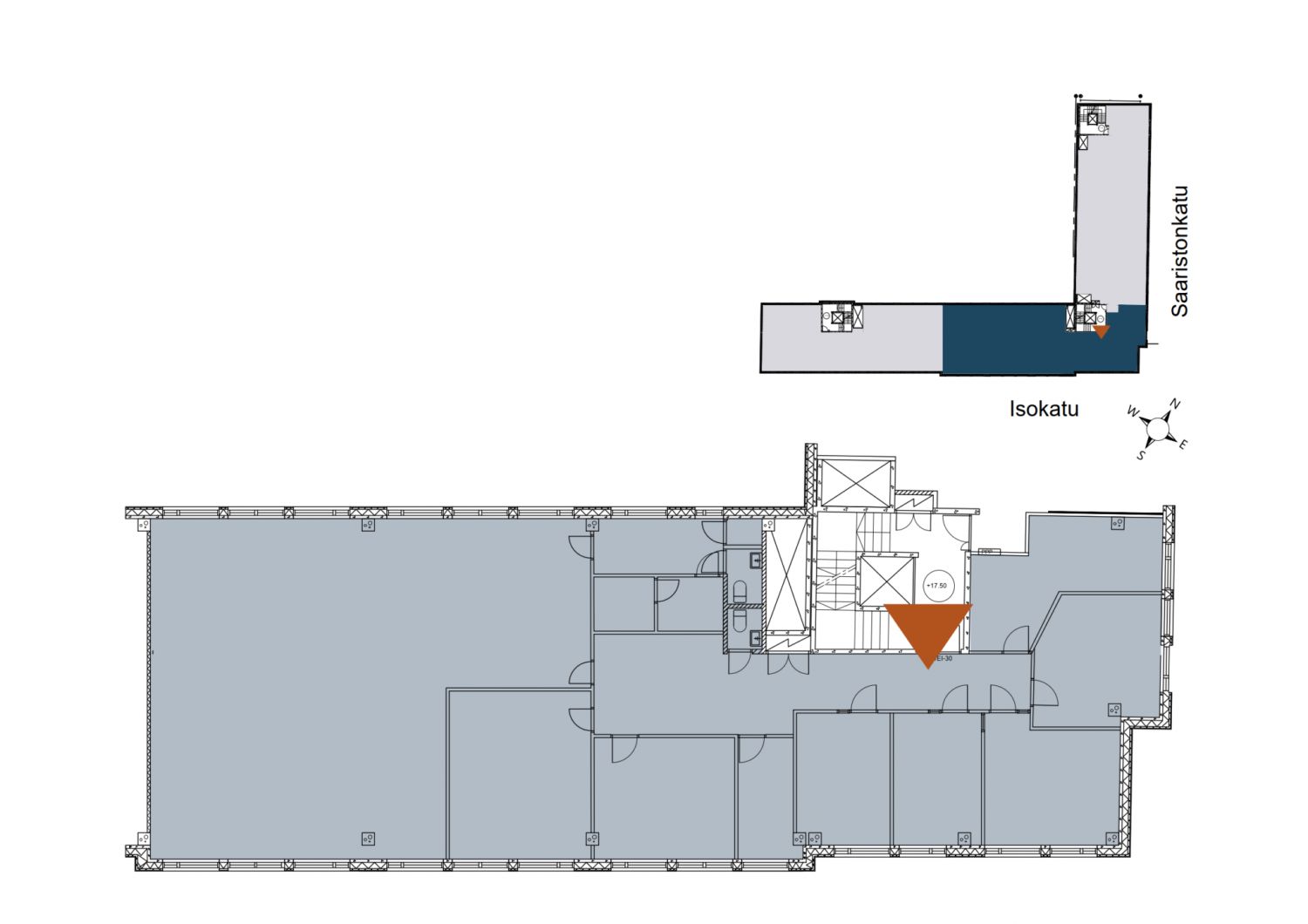
Toimistotila 316 m2 keskusta
Osoite
Isokatu 32, 90100 Oulu
Tilatyyppi
Toimistotilaa
316 m2
Kiinteistö
Vuokrataan toimistotila
Vuokrataan 4 krs. 316 m² toimistotila. Tilat sisältävät useamman toimistohuoneen, kaksi neuvotteluhuonetta, saunan sekä avaraa tilaa sosiaali- keittiötiloineen. Pysäköinti autoille ja pyörille on sisäpihalla.
Sijainti
Osoite on Isokatu 32 eli aivan Oulun ydinkeskustassa kaikkien palvelujen äärellä.
Suunnitellaan järkevä ja viihtyisä toimitila yrityksellesi. Ota yhteyttä, niin mennään tutustumaan paikan päälle!
Vuokrataan 4 krs. 316 m² toimistotila. Tilat sisältävät useamman toimistohuoneen, kaksi neuvotteluhuonetta, saunan sekä avaraa tilaa sosiaali- keittiötiloineen. Pysäköinti autoille ja pyörille on sisäpihalla.
Sijainti
Osoite on Isokatu 32 eli aivan Oulun ydinkeskustassa kaikkien palvelujen äärellä.
Suunnitellaan järkevä ja viihtyisä toimitila yrityksellesi. Ota yhteyttä, niin mennään tutustumaan paikan päälle!
Vapautuu
Kysy
Ota yhteyttä
Logistila Oy
Kiilakiventie 1, 90250 OULU
Sami Karppinen
Näytä puhelinnumero
+358401994722
Pyydä lisätietoa
