Vuokrataan toimistotilat - Oulu
Hoitajanrinne 1, Kastelli, 90220 Oulu #10835365
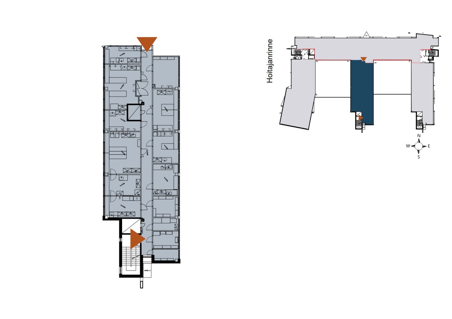
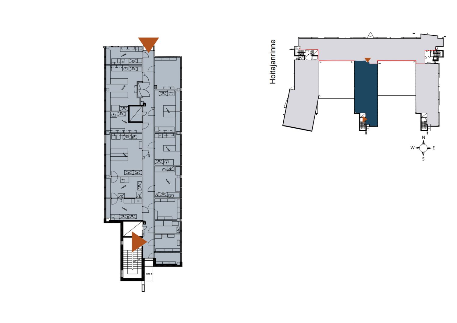
Toimistotila 268 m2
Osoite
Hoitajanrinne 1, 90220 Oulu
Tilatyyppi
Toimistotilaa
268 m2
Kiinteistö
Vuokrattavana
Aapistieltä Kastellista vuokrattavana 268 m2 monipuolinen toimistotila. Tästä kohteesta voimme helposti muokata yrityksellesi edustavat toimistotilat. Pihalta vuokrattavissa autopaikkoja tarpeen mukaan. Kiinteistössä lounasravintola ja auditorio. Tiloja yhdisteltävissä myös isommiksi kokonaisuuksiksi.
Sijainti
Oulun Yliopistollisen Sairaalan naapurissa lähellä keskustaa. Hyvät kulkuyhteydet joka puolelle Oulua.
Suunnitellaan tästä yrityksellesi toimiva ja viihtyisä tukikohta hyvältä sijainnilta.
Aapistieltä Kastellista vuokrattavana 268 m2 monipuolinen toimistotila. Tästä kohteesta voimme helposti muokata yrityksellesi edustavat toimistotilat. Pihalta vuokrattavissa autopaikkoja tarpeen mukaan. Kiinteistössä lounasravintola ja auditorio. Tiloja yhdisteltävissä myös isommiksi kokonaisuuksiksi.
Sijainti
Oulun Yliopistollisen Sairaalan naapurissa lähellä keskustaa. Hyvät kulkuyhteydet joka puolelle Oulua.
Suunnitellaan tästä yrityksellesi toimiva ja viihtyisä tukikohta hyvältä sijainnilta.
Vapautuu
Kysy
Ota yhteyttä
Logistila Oy
Kiilakiventie 1, 90250 OULU
Sami Karppinen
Näytä puhelinnumero
+358401994722
Pyydä lisätietoa
