Vuokrataan toimistotilat - Oulu
Aapistie 1, Kastelli, 90220 Oulu #10835364
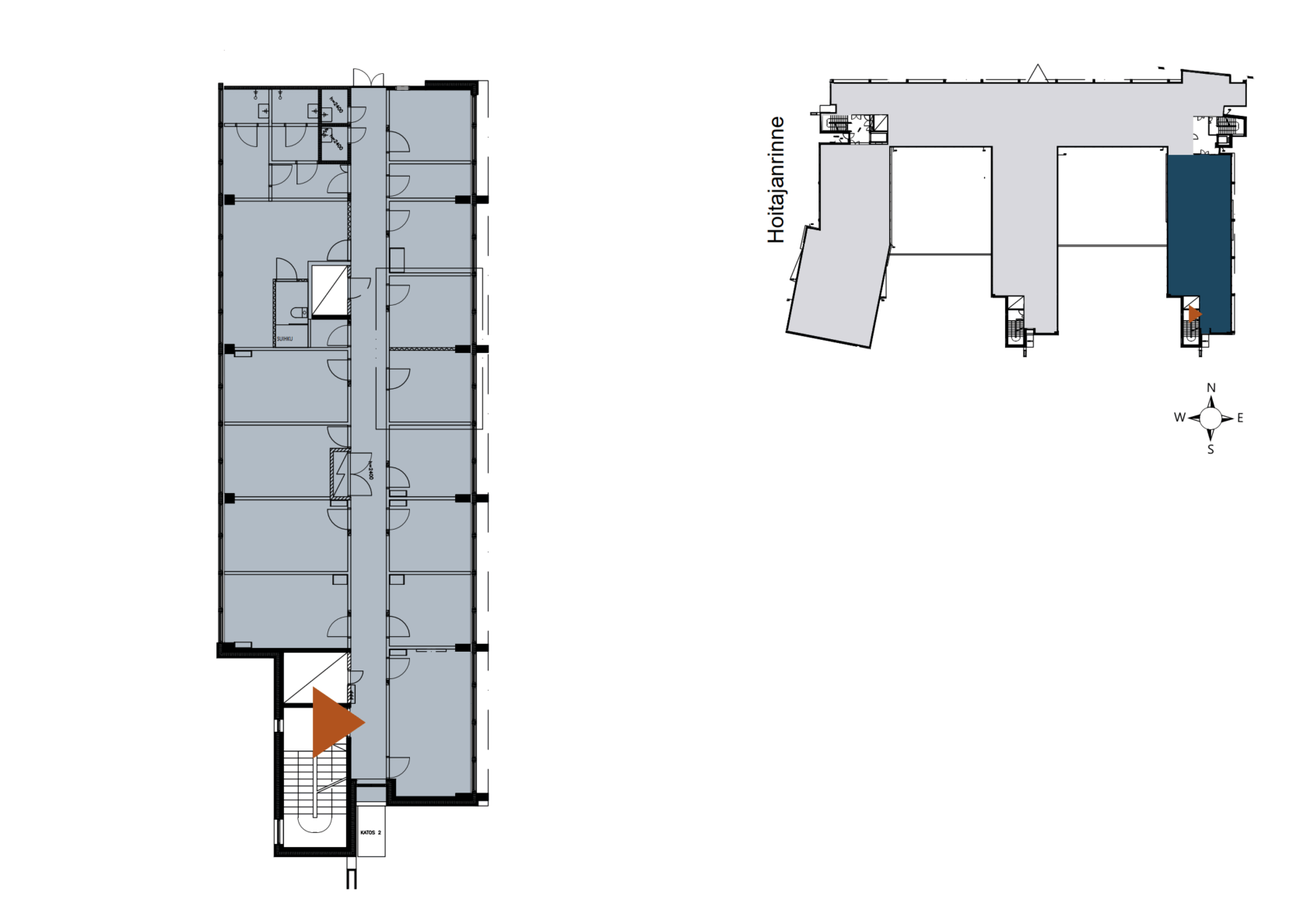
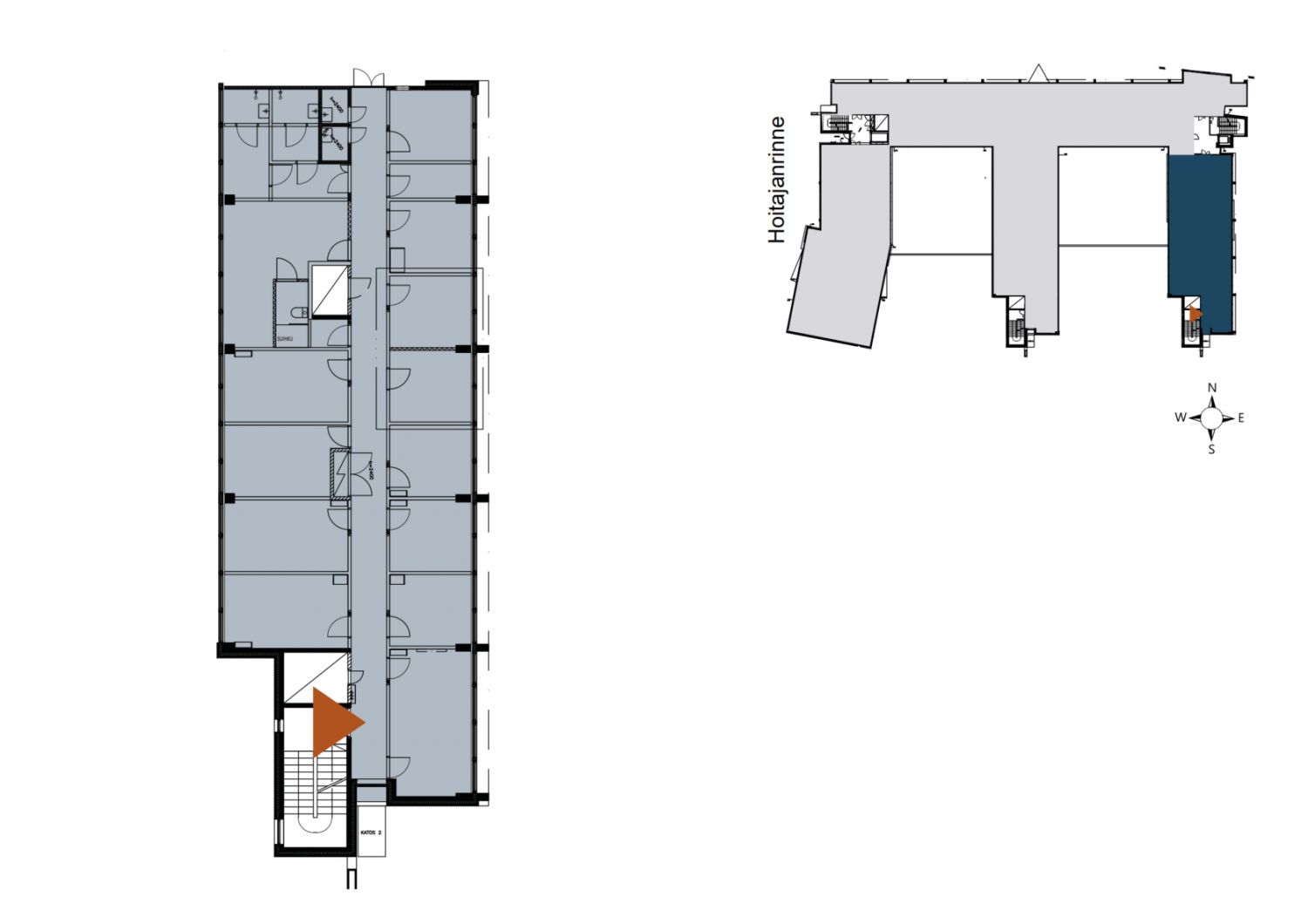
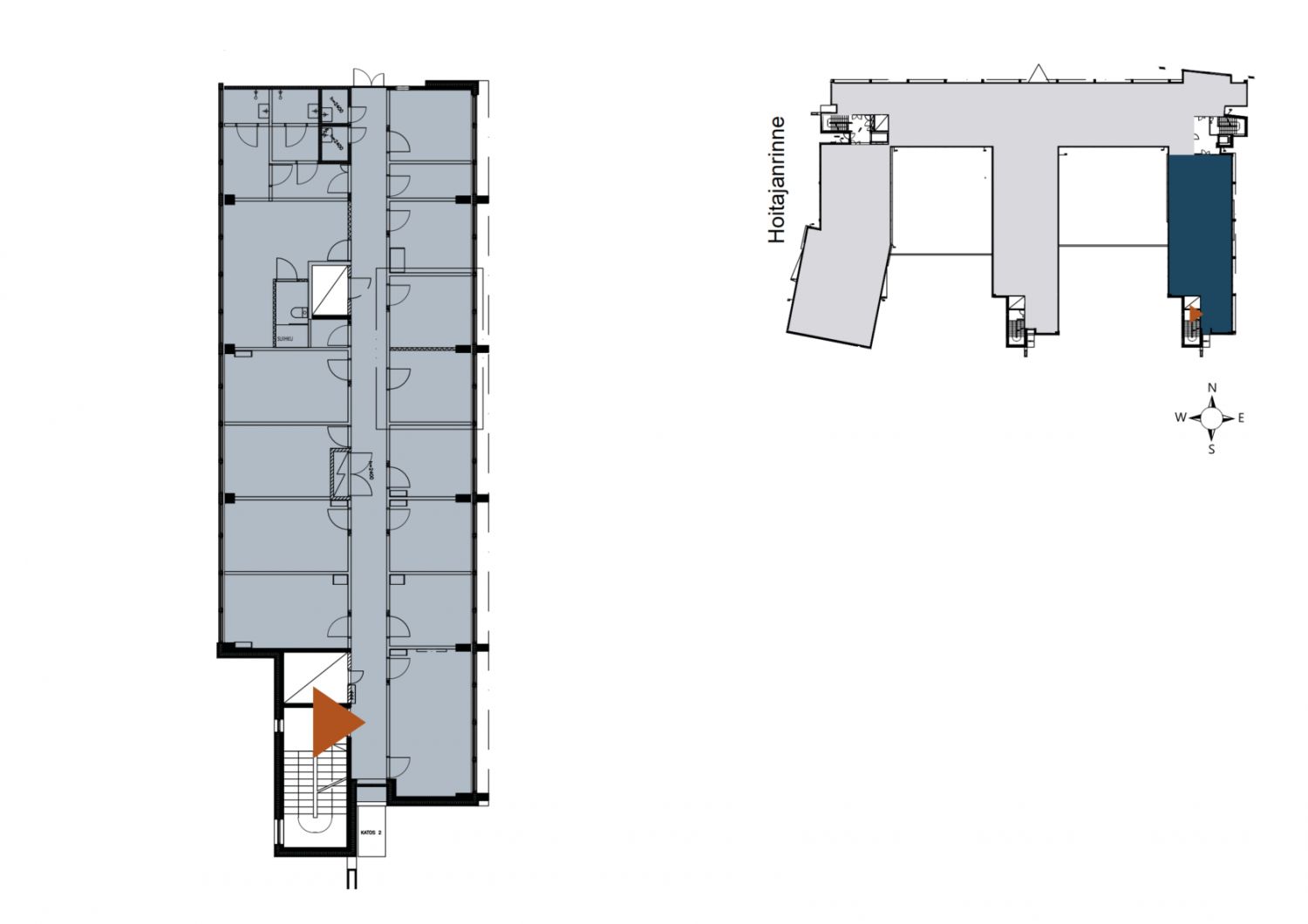
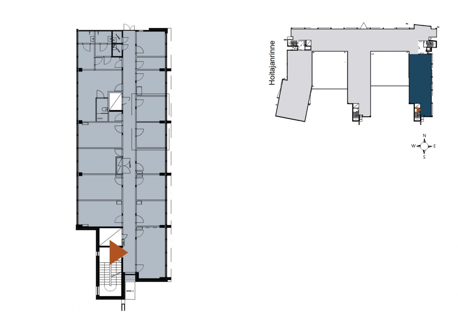
Toimistotila 249 m2
Osoite
Aapistie 1, 90220 Oulu
Tilatyyppi
Toimistotilaa
249 m2
Pohjapiirros
Kiinteistö
Vuokrattavana
Aapistieltä Kastellista vuokrattavana 249 m2 toimistotila. Tästä kohteesta voimme helposti muokata yrityksellesi edustavat toimistotilat. Pihalta vuokrattavissa autopaikkoja tarpeen mukaan. Kiinteistössä lounasravintola ja auditorio. Tiloja yhdisteltävissä myös isommiksi kokonaisuuksiksi.
Sijainti
Oulun Yliopistollisen Sairaalan naapurissa lähellä keskustaa. Hyvät kulkuyhteydet joka puolelle Oulua.
Suunnitellaan tästä yrityksellesi toimiva ja viihtyisä tukikohta hyvältä sijainnilta.
Aapistieltä Kastellista vuokrattavana 249 m2 toimistotila. Tästä kohteesta voimme helposti muokata yrityksellesi edustavat toimistotilat. Pihalta vuokrattavissa autopaikkoja tarpeen mukaan. Kiinteistössä lounasravintola ja auditorio. Tiloja yhdisteltävissä myös isommiksi kokonaisuuksiksi.
Sijainti
Oulun Yliopistollisen Sairaalan naapurissa lähellä keskustaa. Hyvät kulkuyhteydet joka puolelle Oulua.
Suunnitellaan tästä yrityksellesi toimiva ja viihtyisä tukikohta hyvältä sijainnilta.
Vapautuu
Kysy
Ota yhteyttä
LogisTila Oy
Kiilakiventie 1, 90250 OULU
Sami Karppinen
Näytä puhelinnumero
+358401994722
Pyydä lisätietoa
