Vuokrataan toimistotilat - Helsinki

Jaakonkatu 3, Kamppi, 00100 Helsinki #10835330

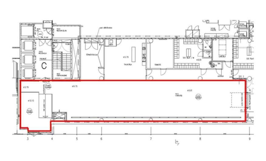
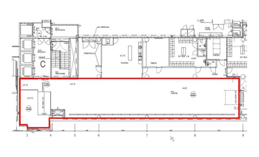
Helsingin Graniittitalossa kellarikerroksessa sijaitseva toimisto-/varastotila.

Osoite
Jaakonkatu 3, 00100 Helsinki
Tilatyyppi
Toimistotilaa
234 m2
Pohjapiirros
Kiinteistö
Kiinteistö sijaitsee aivan Helsingin ydinkeskustassa Kampin kauppakeskuksen vieressä.
Pysäköinti
Ei ilmaista pysäköintimahdollisuutta.
Kulkuyhteydet
Erinomaiset kulkuyhteydet julkisilla liikennevälineillä. Sijainti aivan Helsingin ydinkeskustassa, noin 500m Helsingin rautatieasemalta.
Vapautuu
Heti
Rakennusvuosi
1985
Ota yhteyttä
Pyydä lisätietoa

Kohteesta Jaakonkatu 3, Helsinki

 

B2B palvelut

MARKKINOINTI

Tavoita oikea kohderyhmä!

LASTAUSRATKAISUT

Mainos
Lastauksien ratkaisut tehokkaammin ja turvallisemmin