Myydään tuotantotilat - Pori
Mikkolantie 10, 00640 Pori #10835320
Myydään loistopaikalta Porista teollisuushalli n. 3350 m2
Osoite
Mikkolantie 10, 00640 Pori
Tilatyyppi
Tuotantotilaa
3350 m2
Kiinteistö
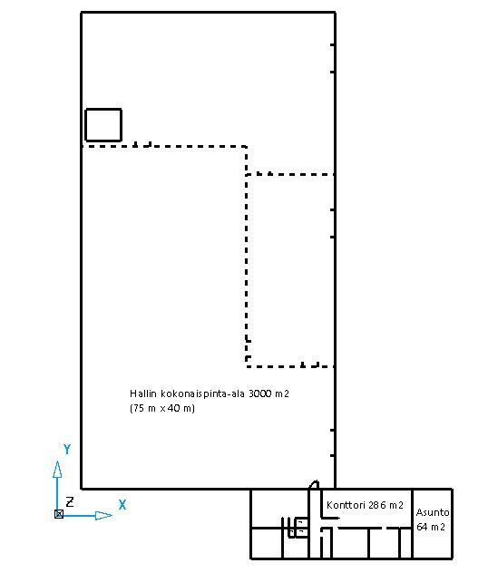
Hyvällä paikalla sijaitseva teollisuushalli 3000 m2 ja erillinen toimisto (johon sisältyy asunto 64 m2) noin 3500 m2. Halli jaettu nyt kolmeen osaan, mahdollista muuntaa yhdeksi isoksi tilaksi. Kaukolämpö, sprinkleri, oma sähkömuuntamo, 3 suurta nosto-ovea ja useita pylväsnostureita. Hallin korkeus keskellä 10 metriä, laidoilla noin 6 metriä. Tilassa lattiakaivot, ei kuitenkaan öljynerotuskaivoja. Suuri asfaltoitu piha-alue, kaupungin vuokratontti pitkällä sopimuksella. Soita ja kysy lisää.
Sijainti
Sijaitsee hyvällä paikalla Helsingin-, ja Tampereentien liittymien vieressä. Samalla alueella mm. Prisma, Citymarket, Motonet, Biltelma, Tokmanni, Power, Jysk, Byggmax ja Jula.
Vapautuu
Heti
Näkyvällä paikalla
Ota yhteyttä
Comreal Oy LKV
Anna-Maija Hyppönen
Näytä puhelinnumero
050 534 8001
P.
Näytä puhelinnumero
020 744 1000
Läkkisepänkuja 6, 00620 Helsinki
Comreal Oy on kasvava ja osaava kiinteistöalan palveluntuottaja kiinteistöjen omistajille ja käyttäjille.
Kiinteistö on sijoittajalle hyvä sijoitus vain, jos siellä on tyytyväiset asiakkaat, eli vuokralaiset. Siksi laadukas asiakaspalvelu on toiminnan lähtökohta.
Pyydä lisätietoa
