Vuokrataan toimistotilat, tuotantotilat, varastotilat - Pirkkala
Jasperintie 334 A, 33960 Pirkkala #10835309
Varasto-, tuotanto- ja toimistotilaa Pirkkalasta
Osoite
Jasperintie 334 A, 33960 Pirkkala
Tilatyyppi
Toimistotilaa
2143 m2
Tuotantotilaa
2143 m2
Varastotilaa
2143 m2
Yhteensä
2143 m2
Muuta
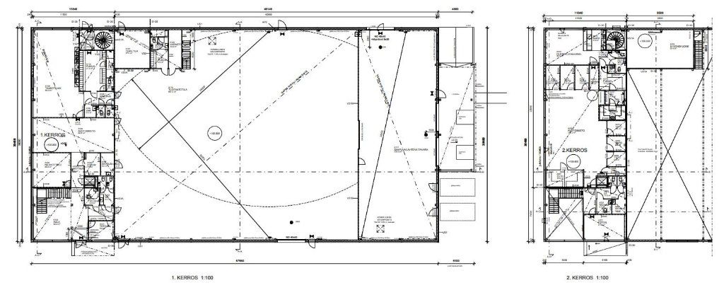
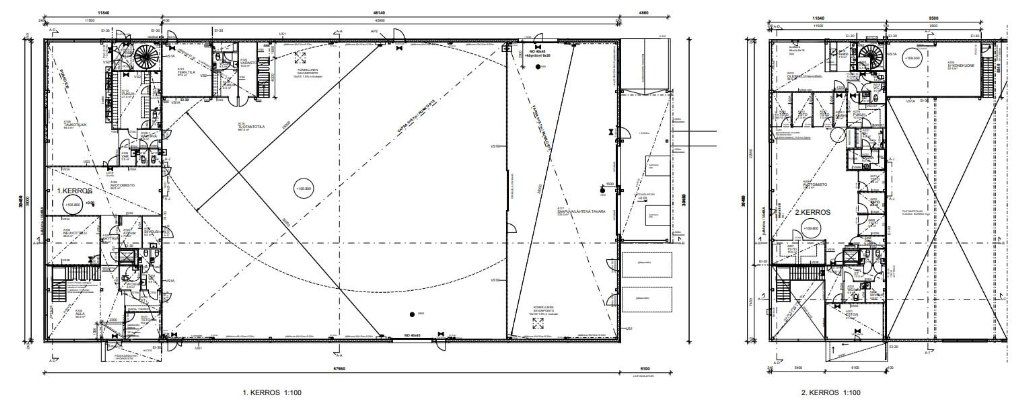
Vuokrattavana toimitilaa näkyvällä paikalla Pirkkalan Vähä-Vaitissa, osoitteessa Jasperintie 334 A. Kiinteistö sijaitsee suoraan ohitustien varrella, mikä takaa erinomaisen saavutettavuuden eri puolilta kaupunkia. Vuokrattavan tilan kokonaispinta-ala on 2143 m², josta noin 1450 m² on korkeaa ja selkeälinjaista hallitilaa. Toimistotilat jakautuvat kahteen kerrokseen ja niiden yhteenlaskettu pinta-ala on noin 682 m².
Hallin puolella on kaksi nosto-ovea, lastauslaituri sekä kaksi kuormaussiltaa, jotka helpottavat tavaravirtojen käsittelyä. Tilat tarjoavat toimivan ja käytännöllisen kokonaisuuden logistiikka- tai tuotantotoimintaan. Rakennuksessa on käytettävissä pukuhuoneet sekä hallin että toimistojen yhteydessä, ja lisäksi kiinteistössä on oma sauna.
Kohteella on runsaasti pysäköintitilaa, ja alueella on myös sähköautojen latauspisteet vuokralaisten käytettävissä.
Tervetuloa tutustumaan, varaathan välittäjältä oman esittelyaikasi. Voit kysyä meiltä myös muita sopivia vaihtoehtoja, kauttamme löydät juuri Teidän tarpeisiinne sopivat tilat. Palvelumme on tilanhakijalle veloitukseton!
Hallin puolella on kaksi nosto-ovea, lastauslaituri sekä kaksi kuormaussiltaa, jotka helpottavat tavaravirtojen käsittelyä. Tilat tarjoavat toimivan ja käytännöllisen kokonaisuuden logistiikka- tai tuotantotoimintaan. Rakennuksessa on käytettävissä pukuhuoneet sekä hallin että toimistojen yhteydessä, ja lisäksi kiinteistössä on oma sauna.
Kohteella on runsaasti pysäköintitilaa, ja alueella on myös sähköautojen latauspisteet vuokralaisten käytettävissä.
Tervetuloa tutustumaan, varaathan välittäjältä oman esittelyaikasi. Voit kysyä meiltä myös muita sopivia vaihtoehtoja, kauttamme löydät juuri Teidän tarpeisiinne sopivat tilat. Palvelumme on tilanhakijalle veloitukseton!
Vapautuu
Kysy
Kerros
1-2
Ota yhteyttä
Tuloskiinteistöt Oy
Finlaysoninkatu 4, 33210 Tampere
Näytä puhelinnumero
050 502 4639
Sanna Eerilä-Vänni
Director, Partner
Näytä puhelinnumero
+358 50 5024639
Pyydä lisätietoa
