Vuokrataan toimistotilat, tuotantotilat, varastotilat - Pirkkala
Jasperintie 334 C, 33960 Pirkkala #10835308
Varasto-, tuotanto- ja toimistotilaa Pirkkalasta
Osoite
Jasperintie 334 C, 33960 Pirkkala
Tilatyyppi
Toimistotilaa
1030 m2
Tuotantotilaa
1030 m2
Varastotilaa
1030 m2
Yhteensä
1030 m2
Muuta
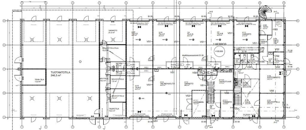
Vuokrattavana monikäyttöinen hallitila toimistolla Pirkkalan Vähä-Vaitissa, osoitteessa Jasperintie 334 C. Kokonaispinta-ala on 1030 m² ja tila vapautuu keväällä tai kesällä 2026. Tila koostuu korkeasta halliosuudesta ja toimistotiloista kahdessa kerroksessa.
Hallitilassa on useita nosto-ovia suoraan katuyhteydellä, mikä mahdollistaa sujuvan tavaraliikenteen. Tila soveltuu monipuoliseen käyttöön ja on jaettavissa 1â3 käyttäjän kesken. Hallitiloja voidaan muokata eri käyttötarkoituksiin tarpeen mukaan.
Toimistotilat sijaitsevat sekä hallin yhteydessä että toisessa kerroksessa. Toimitilassa on myös hyvät sosiaali- ja WC-tilat, jotka palvelevat käyttäjiä arjen toiminnassa. Kohteessa on sähköautojen latauspaikkoja ja runsaasti pysäköintitilaa.
Tervetuloa tutustumaan, varaathan välittäjältä oman esittelyaikasi. Voit kysyä meiltä myös muita sopivia vaihtoehtoja, kauttamme löydät juuri Teidän tarpeisiinne sopivat tilat. Palvelumme on tilanhakijalle veloitukseton!
Hallitilassa on useita nosto-ovia suoraan katuyhteydellä, mikä mahdollistaa sujuvan tavaraliikenteen. Tila soveltuu monipuoliseen käyttöön ja on jaettavissa 1â3 käyttäjän kesken. Hallitiloja voidaan muokata eri käyttötarkoituksiin tarpeen mukaan.
Toimistotilat sijaitsevat sekä hallin yhteydessä että toisessa kerroksessa. Toimitilassa on myös hyvät sosiaali- ja WC-tilat, jotka palvelevat käyttäjiä arjen toiminnassa. Kohteessa on sähköautojen latauspaikkoja ja runsaasti pysäköintitilaa.
Tervetuloa tutustumaan, varaathan välittäjältä oman esittelyaikasi. Voit kysyä meiltä myös muita sopivia vaihtoehtoja, kauttamme löydät juuri Teidän tarpeisiinne sopivat tilat. Palvelumme on tilanhakijalle veloitukseton!
Vapautuu
Kysy
Kerros
1-2
Ota yhteyttä
Tuloskiinteistöt Oy
Finlaysoninkatu 4, 33210 Tampere
Näytä puhelinnumero
050 502 4639
Sanna Eerilä-Vänni
Director, Partner
Näytä puhelinnumero
+358 50 5024639
Pyydä lisätietoa
