Vuokrataan liiketilat - Pirkkala
Autokeskuksentie 12, 33960 Pirkkala #10835307
Liiketilaa Pirkkalasta
Osoite
Autokeskuksentie 12, 33960 Pirkkala
Tilatyyppi
Liiketilaa
735 m2
Muuta
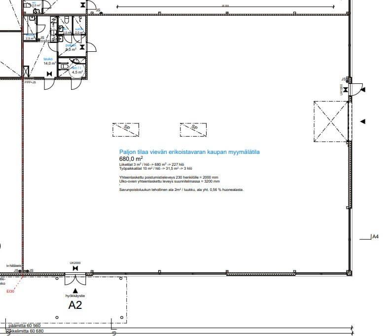
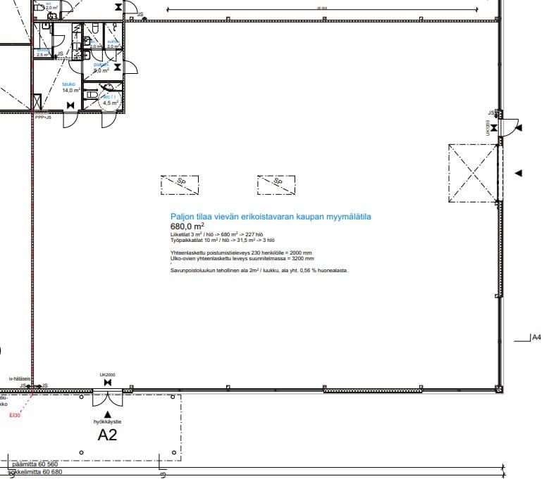
Vuokrattavana liiketila Pirkkalan Linnakalliossa osoitteessa Autokeskuksentie 12. Tila sijaitsee katutasossa ja sen pinta-ala on 735 m². Tilassa on pienet sosiaalitilat, nosto-ovi sekä erillinen sisäänkäynti, mikä mahdollistaa sujuvan logistiikan ja asiakasliikenteen.
Kohteessa on reilusti pihatilaa, joka soveltuu esimerkiksi ajoneuvojen pysäköintiin tai lastaukseen. Lisäksi kiinteistössä on sähköautojen latauspisteet. Tilan käyttötarkoitus on joustavasti muokattavissa esimerkiksi showroom-, liiketila-, varasto- tai pientuotantokäyttöön.
Toimitila vapautuu vuokrattavaksi 1.5.2026 alkaen.
Tervetuloa tutustumaan, varaathan välittäjältä oman esittelyaikasi. Voit kysyä meiltä myös muita sopivia vaihtoehtoja, kauttamme löydät juuri Teidän tarpeisiinne sopivat tilat. Palvelumme on tilanhakijalle veloitukseton!
Kohteessa on reilusti pihatilaa, joka soveltuu esimerkiksi ajoneuvojen pysäköintiin tai lastaukseen. Lisäksi kiinteistössä on sähköautojen latauspisteet. Tilan käyttötarkoitus on joustavasti muokattavissa esimerkiksi showroom-, liiketila-, varasto- tai pientuotantokäyttöön.
Toimitila vapautuu vuokrattavaksi 1.5.2026 alkaen.
Tervetuloa tutustumaan, varaathan välittäjältä oman esittelyaikasi. Voit kysyä meiltä myös muita sopivia vaihtoehtoja, kauttamme löydät juuri Teidän tarpeisiinne sopivat tilat. Palvelumme on tilanhakijalle veloitukseton!
Vapautuu
Kysy
Kerros
Katutaso
Ota yhteyttä
Tuloskiinteistöt Oy
Finlaysoninkatu 4, 33210 Tampere
Näytä puhelinnumero
050 502 4639
Sanna Eerilä-Vänni
Director, Partner
Näytä puhelinnumero
+358 50 5024639
Pyydä lisätietoa
