Vuokrataan toimistotilat - Kerava
Kytömaantie 14, 04200 Kerava #10835284
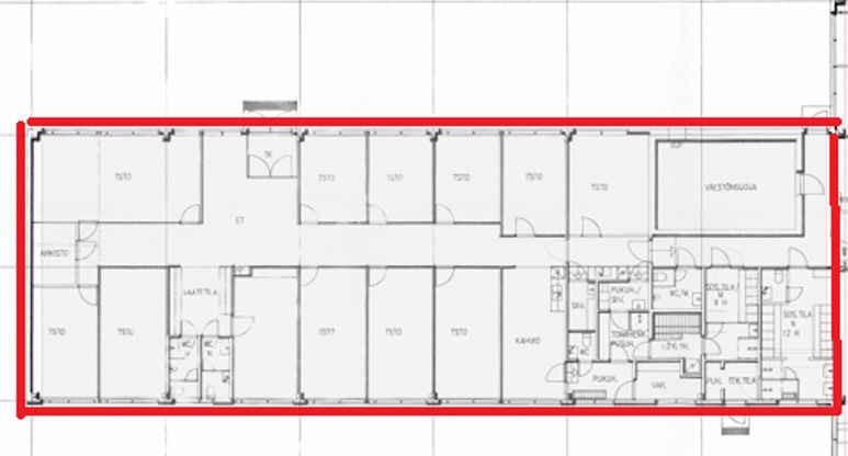
Vuokrataan Keravan Kytömaantie 14 kohteesta toimisto ja pukuhuonetilaa yhteensä n. 450 m2. Kiinteistöllä hyvät paikoitustilaa autoille.
Lisätietoja 045 261 6555/Mika, lisää kohteita www.premises.fi
Kohteella ei ole lain edellyttämää energiatodistusta tai energialuokka ei tiedossa.Kerros: 1
Osoite
Kytömaantie 14, 04200 Kerava
Tilatyyppi
Toimistotilaa
450 m2
Ota yhteyttä
CRE PREMISES
Puh. Näytä puhelinnumero 020 7290 710
Vantaankoskentie 14
01670 VANTAA
Pyydä lisätietoa
