Vuokrataan toimistotilat - Tampere
Hatanpään Valtatie 18, Ratina, 33100 Tampere #10835236
Toimistotilaa Ratinasta
Osoite
Hatanpään Valtatie 18, 33100 Tampere
Tilatyyppi
Toimistotilaa
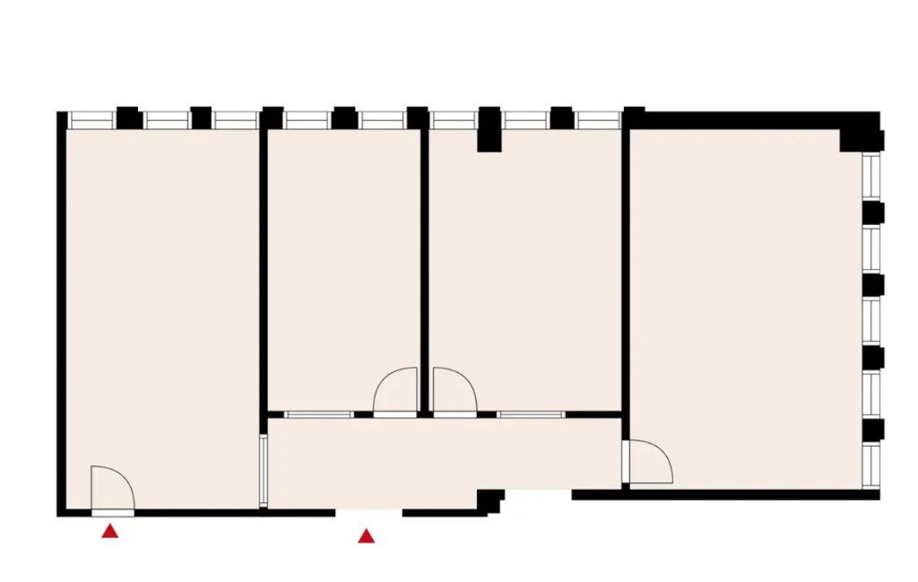
70 m2
Pysäköinti
Kyllä
Muuta
Vuokrataan siisti ja valoisa 70m² toimisto kiinteistön 4. kerroksesta. Tila koostuu neljästä erikokoisesta työhuoneesta ja näiden eteen on mahdollista tehdä oma aula. Remontoidaan täysin vuokralaisen tarpeiden mukaan. Yhteiskeittiö, sekä yhteiset WC-tilat käytävällä.
Talo tarjoaa vuokralaisten käyttöön ilmaiseksi 2 kpl neuvotteluhuoneita 1. kerroksesta, jotka vuokrataan varausjärjestelmän kautta. Kiinteistöllä oma parkkihalli, josta mahdollisuus saada pysäköintioikeus. Kellarista mahdollista vuokrata varastotilaa!
Huom! Kuvat remontoidusta 2.kerroksen tilasta, joka on lähes identtinen tämä tilan kanssa.
Tila on heti vapaa.
Tervetuloa tutustumaan, varaathan välittäjältä oman esittelyaikasi. Voit kysyä meiltä myös muita sopivia vaihtoehtoja, kauttamme löydät juuri Teidän tarpeisiinne sopivat tilat. Palvelumme on tilanhakijalle veloitukseton!
Talo tarjoaa vuokralaisten käyttöön ilmaiseksi 2 kpl neuvotteluhuoneita 1. kerroksesta, jotka vuokrataan varausjärjestelmän kautta. Kiinteistöllä oma parkkihalli, josta mahdollisuus saada pysäköintioikeus. Kellarista mahdollista vuokrata varastotilaa!
Huom! Kuvat remontoidusta 2.kerroksen tilasta, joka on lähes identtinen tämä tilan kanssa.
Tila on heti vapaa.
Tervetuloa tutustumaan, varaathan välittäjältä oman esittelyaikasi. Voit kysyä meiltä myös muita sopivia vaihtoehtoja, kauttamme löydät juuri Teidän tarpeisiinne sopivat tilat. Palvelumme on tilanhakijalle veloitukseton!
Vapautuu
Kysy
Kerros
4
Ota yhteyttä
Tuloskiinteistöt Oy
Finlaysoninkatu 4, 33210 Tampere
Näytä puhelinnumero
050 502 4639
Tara Särkinen
Commercial Real Estate Advisor
Näytä puhelinnumero
+358443187720
Sanna Eerilä-Vänni
Director, Partner
Näytä puhelinnumero
+358 50 5024639
Pyydä lisätietoa
