Vuokrataan toimistotilat - Tampere
Hatanpään Valtatie 18, Ratina, 33100 Tampere #10835227
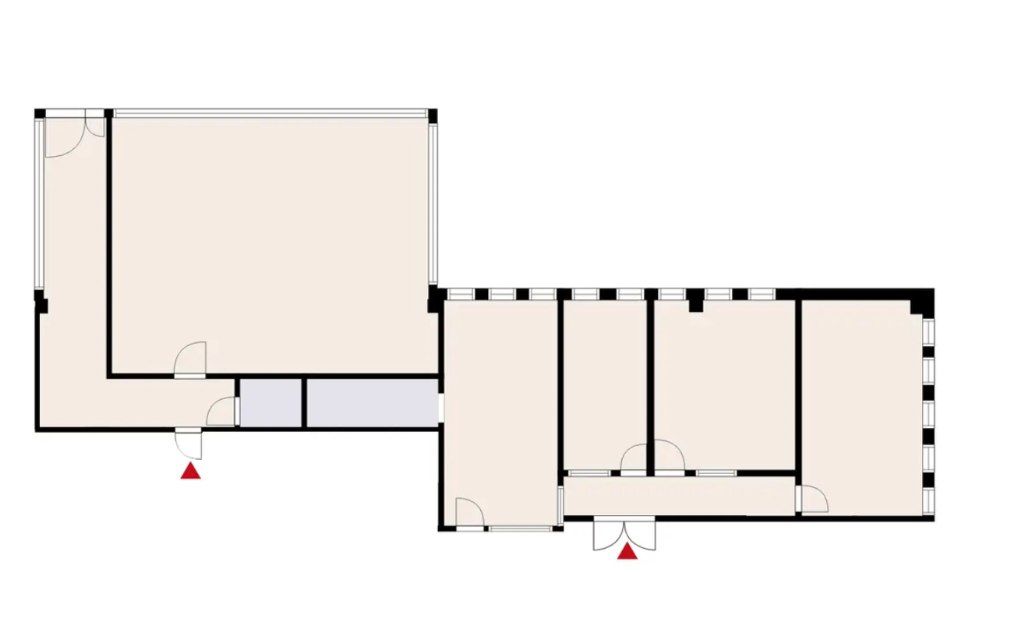
Toimistotilaa Ratinasta
Osoite
Hatanpään Valtatie 18, 33100 Tampere
Tilatyyppi
Toimistotilaa
178 m2
Pysäköinti
Kyllä
Muuta
Vuokrataan siisti 178m² toimistotila kiinteistön 3. kerroksesta. Tila koostuu useasta erikokoisesta työhuoneesta ja yhdestä isommasta ja erittäin valoisasta avotilasta. Remontoidaan täysin vuokralaisen tarpeiden mukaan. Yhteiset WC-tilat käytävällä.
Talo tarjoaa vuokralaisten käyttöön ilmaiseksi 2 kpl neuvotteluhuoneita 1. kerroksesta, jotka vuokrataan varausjärjestelmän kautta. Kiinteistöllä oma parkkihalli, josta mahdollisuus saada pysäköintioikeus. Kellarista mahdollista vuokrata varastotilaa!
Huom! Kuvat showroomista/mallitoimistosta.
Tila on heti vapaa.
Tervetuloa tutustumaan, varaathan välittäjältä oman esittelyaikasi. Voit kysyä meiltä myös muita sopivia vaihtoehtoja, kauttamme löydät juuri Teidän tarpeisiinne sopivat tilat. Palvelumme on tilanhakijalle veloitukseton!
Talo tarjoaa vuokralaisten käyttöön ilmaiseksi 2 kpl neuvotteluhuoneita 1. kerroksesta, jotka vuokrataan varausjärjestelmän kautta. Kiinteistöllä oma parkkihalli, josta mahdollisuus saada pysäköintioikeus. Kellarista mahdollista vuokrata varastotilaa!
Huom! Kuvat showroomista/mallitoimistosta.
Tila on heti vapaa.
Tervetuloa tutustumaan, varaathan välittäjältä oman esittelyaikasi. Voit kysyä meiltä myös muita sopivia vaihtoehtoja, kauttamme löydät juuri Teidän tarpeisiinne sopivat tilat. Palvelumme on tilanhakijalle veloitukseton!
Vapautuu
Kysy
Kerros
3
Ota yhteyttä
Tuloskiinteistöt Oy
Finlaysoninkatu 4, 33210 Tampere
Näytä puhelinnumero
050 502 4639
Tara Särkinen
Commercial Real Estate Advisor
Näytä puhelinnumero
+358443187720
Sanna Eerilä-Vänni
Director, Partner
Näytä puhelinnumero
+358 50 5024639
Pyydä lisätietoa
