Vuokrataan toimistotilat, liiketilat - Helsinki
Porkkalankatu 3, Ruoholahti, 00180 Helsinki #10835208
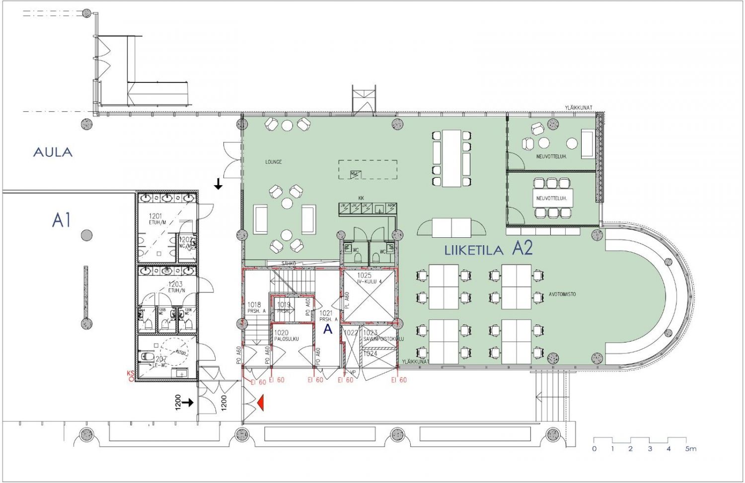
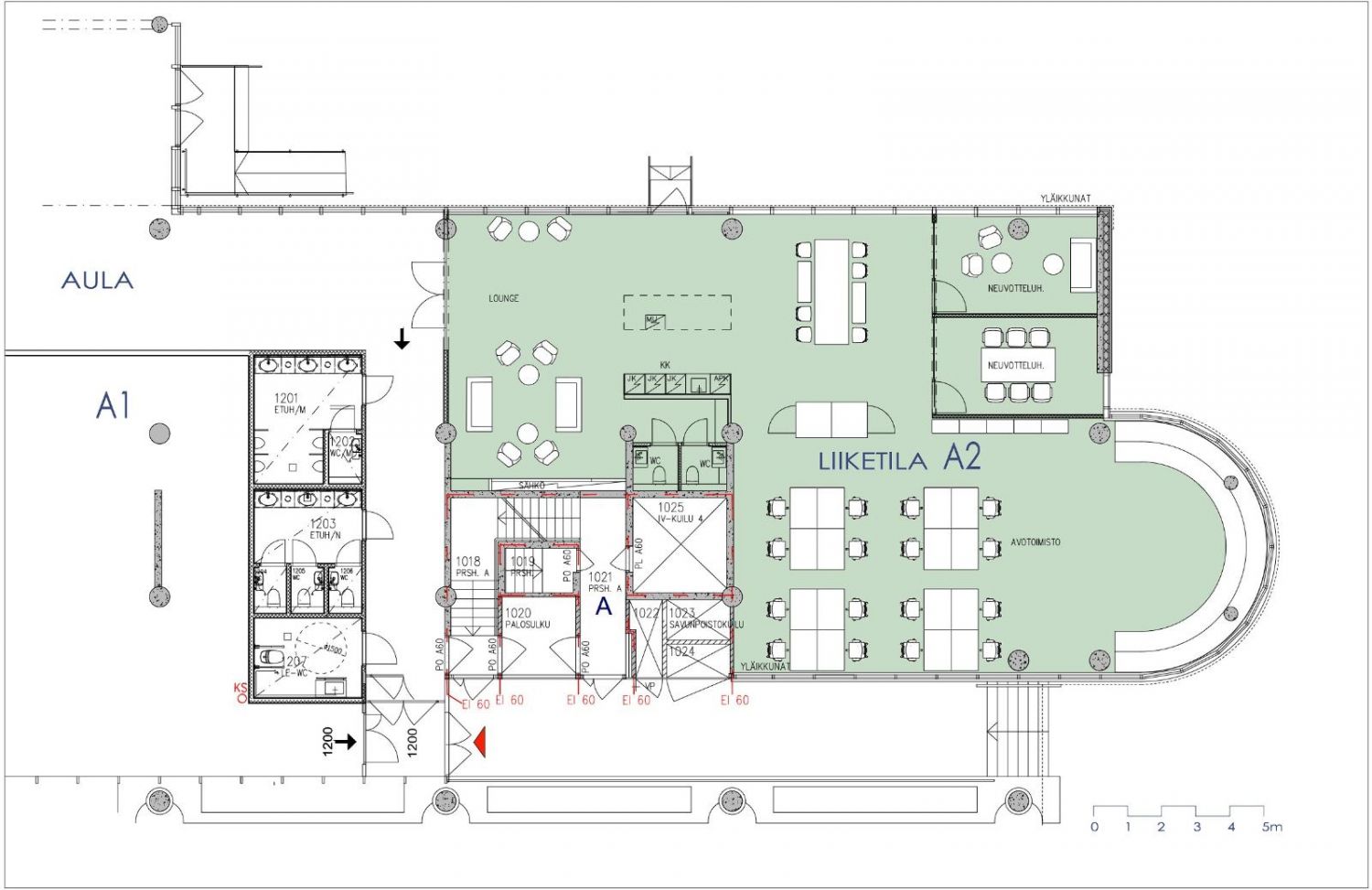
Vuokrataan Helsingin Ruoholahdesta ensimmäisen kerroksen 238 m² remontoitu liike-/toimistotila.
Keskeisen sijaintinsa ansiosta kiinteistöön on helppo saapua ja kaikki Ruoholahden palvelut ovat lähettyvillä. Julkisen liikenteen pysäkit sijaitsevat kiinteistön kupeessa, ja Ruoholahden metroasemalle on vain lyhyt kävelymatka.
Kiinteistön palveluina aulapalvelut, neuvotteluhuoneita ja monipuoliset liikuntatilat mm. palloiluhalli ja uima-allasosasto.
Kysy rohkeasti lisätietoja ja sovitaan käynti kohteella jo tänään!
Hissi
Hausala Oy
Erkkilänkatu 11, 33100 Tampere
Näytä puhelinnumero
050 472 7077
Mikko Ranta
Näytä puhelinnumero
050 360 6500
Mika Savikko
Näytä puhelinnumero
050 472 7077
