Vuokrataan toimistotilat - Tampere
Biokatu 10, Kauppi, 33520 Tampere #10835195
Monipuolista toimistotilaa Kaupin alueelta
Osoite
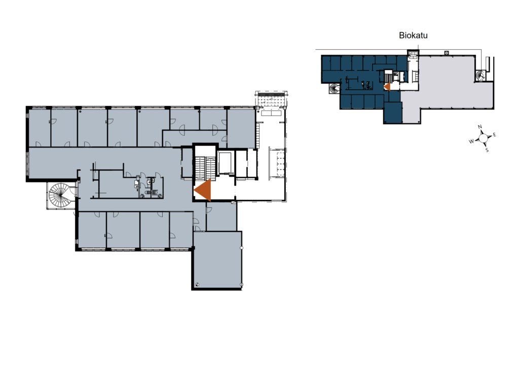
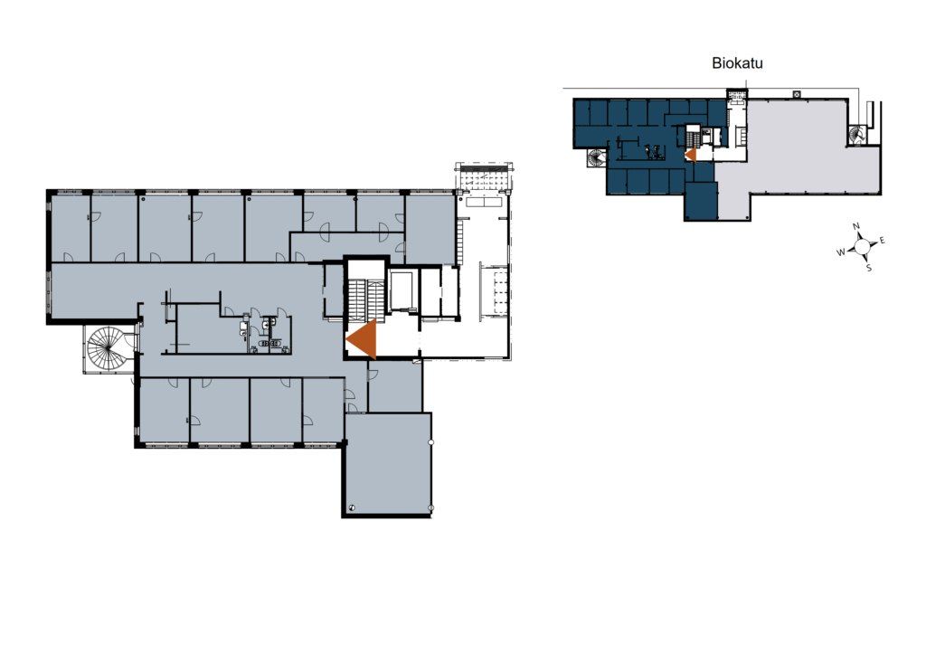
Biokatu 10, 33520 Tampere
Tilatyyppi
Toimistotilaa
376 m2
Pysäköinti
Kyllä
Muuta
Vuokrattavana toimistotila Tampereen Kaupin alueella, erinomaisella sijainnilla Biokatulla. Tila sijaitsee osoitteessa Biokatu 10, rakennuksen 2. kerroksessa. Pinta-alaa on yhteensä 376 m², ja kokonaisuus tarjoaa mahdollisuuksia monenlaiseen yritystoimintaan.
Toimistotilaan on helppo saapua sekä julkisilla kulkuvälineillä että omalla autolla. Kaupin alue tunnetaan hyvistä liikenneyhteyksistään ja toimivasta ympäristöstään yrityksille. Rakennus tarjoaa mahdollisuuden muokata tiloja käyttäjän tarpeiden mukaisesti, mikä mahdollistaa tilan räätälöinnin erilaisiin toimistokonsepteihin.
Tila vapautuu sopimuksen mukaan. Tilan muunneltavuus ja saavutettavuus tekevät siitä joustavan vaihtoehdon yrityksille, jotka etsivät toimivaa ja helposti saavutettavaa toimitilaa Tampereen seudulla.
Tervetuloa tutustumaan, varaathan välittäjältä oman esittelyaikasi. Voit kysyä meiltä myös muita sopivia vaihtoehtoja, kauttamme löydät juuri Teidän tarpeisiinne sopivat tilat. Palvelumme on tilanhakijalle veloitukseton!
Toimistotilaan on helppo saapua sekä julkisilla kulkuvälineillä että omalla autolla. Kaupin alue tunnetaan hyvistä liikenneyhteyksistään ja toimivasta ympäristöstään yrityksille. Rakennus tarjoaa mahdollisuuden muokata tiloja käyttäjän tarpeiden mukaisesti, mikä mahdollistaa tilan räätälöinnin erilaisiin toimistokonsepteihin.
Tila vapautuu sopimuksen mukaan. Tilan muunneltavuus ja saavutettavuus tekevät siitä joustavan vaihtoehdon yrityksille, jotka etsivät toimivaa ja helposti saavutettavaa toimitilaa Tampereen seudulla.
Tervetuloa tutustumaan, varaathan välittäjältä oman esittelyaikasi. Voit kysyä meiltä myös muita sopivia vaihtoehtoja, kauttamme löydät juuri Teidän tarpeisiinne sopivat tilat. Palvelumme on tilanhakijalle veloitukseton!
Vapautuu
Kysy
Rakennusvuosi
2001
Kerros
2
Ota yhteyttä
Tuloskiinteistöt Oy
Finlaysoninkatu 4, 33210 Tampere
Näytä puhelinnumero
050 502 4639
Sanna Eerilä-Vänni
Director, Partner
Näytä puhelinnumero
+358 50 5024639
Pyydä lisätietoa
