Vuokrataan toimistotilat, tuotantotilat, varastotilat - Pirkkala
Jasperintie 334, Pirkkala, 33960 Pirkkala #10835163
Vuokrattavana selkeää ja korkeaa hallitilaa näkyvällä paikalla, suoraan ohitustien varrella. Kiinteistölle on helppo saavutettavuus joka puolelta kaupunkia.
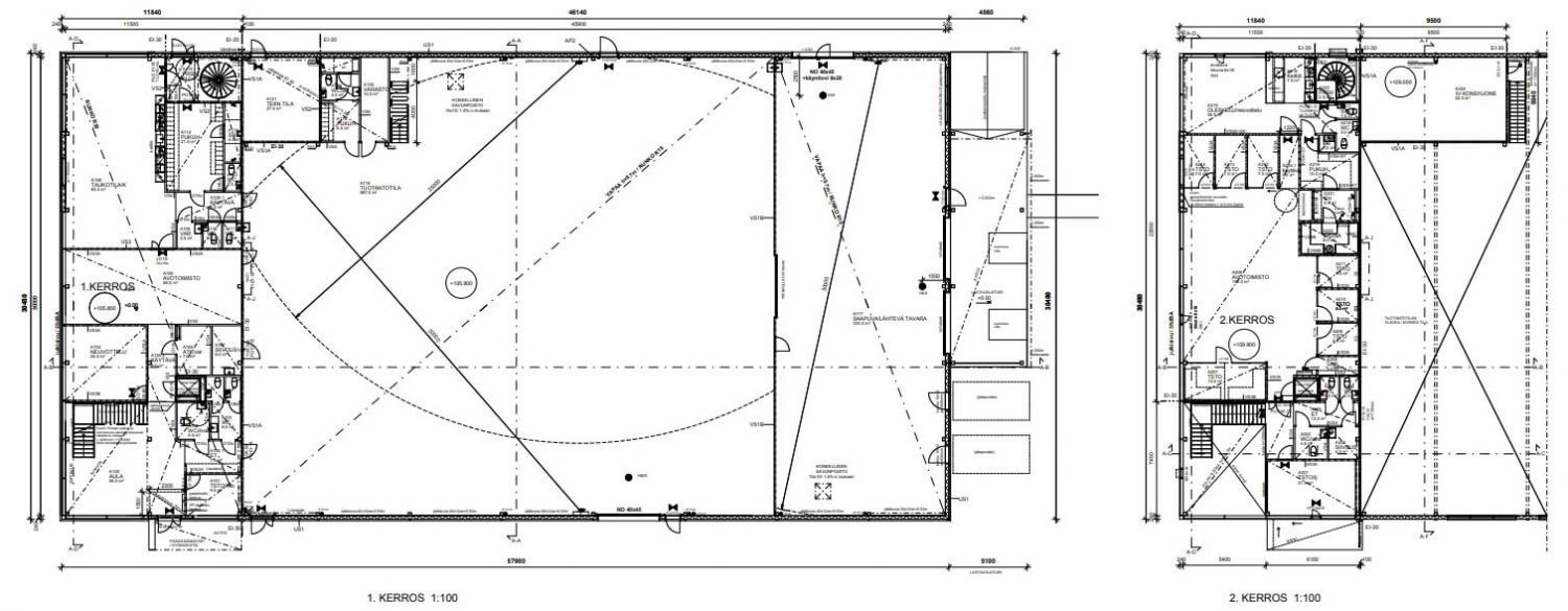
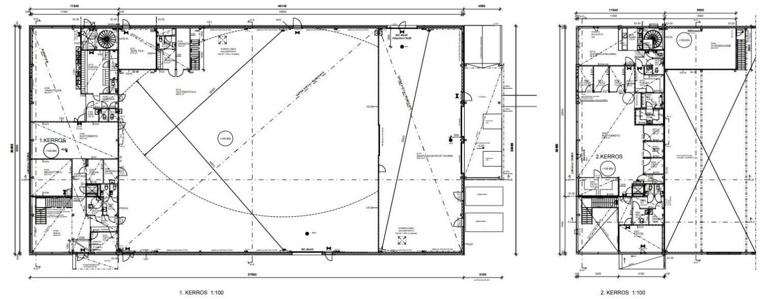
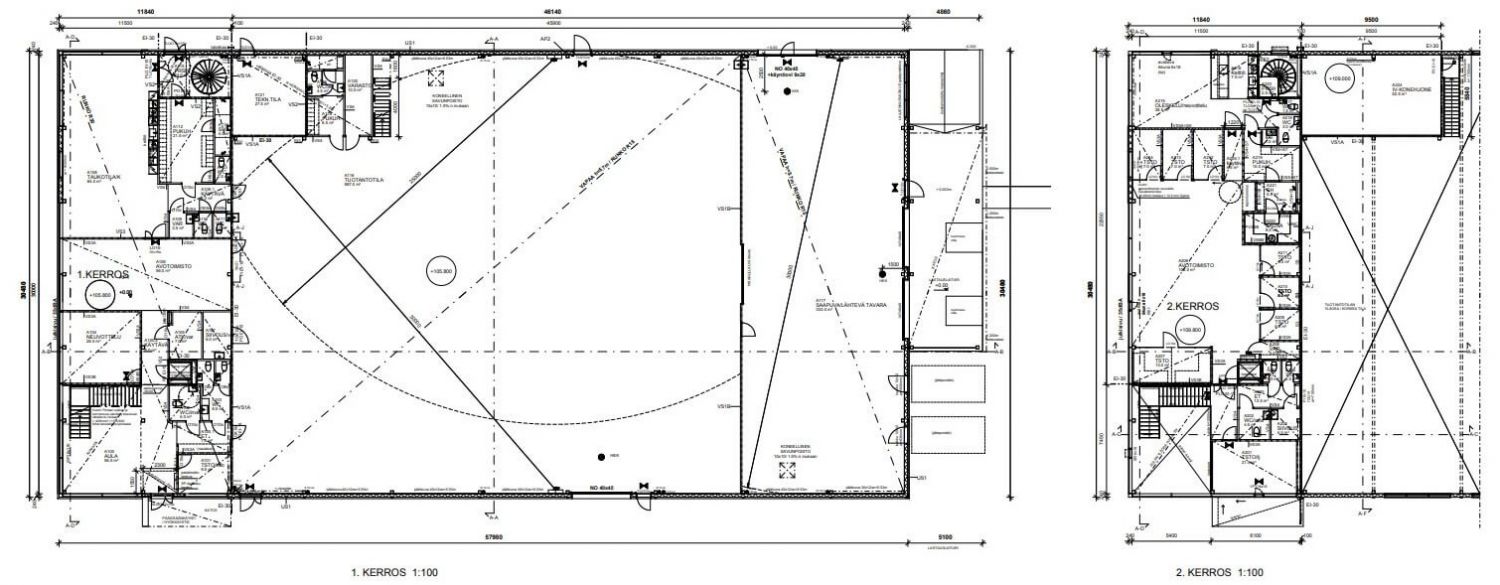
Vuokrattavan toimitilan kokonaispinta-ala on 2143 m2, josta noin 1450 m2 on korkeaa ja avaraa hallitilaa. Toimistoa löytyy kahdessa kerroksessa yhteensä noin 682 m2 - tilavat huoneet isoilla ikkunoilla tarjoavat valoisan ja viihtyisän työympäristön.
Hallissa on kaksi nosto-ovea sekä lastauslaituri, jossa kaksi kuormaussiltaa helpottavat tavaraliikennettä. Tilat on varustettu pukuhuoneilla sekä hallin että toimiston puolella - lisäksi käytössä on oma sauna.
Kohteella on hyvin parkkipaikkoja saatavilla.
Lisätiedot ja kohde-esittelyt 020 7290 710, lisää kohteita premises.fi
Kohteella ei ole lain edellyttämää energiatodistusta tai energialuokka ei tiedossa.Kerros: 1-2
CRE PREMISES
Puh. Näytä puhelinnumero 020 7290 710
Vantaankoskentie 14
01670 VANTAA
