Vuokrataan liiketilat - Pirkkala
Autokeskuksentie 12, 33960 Pirkkala #10835162
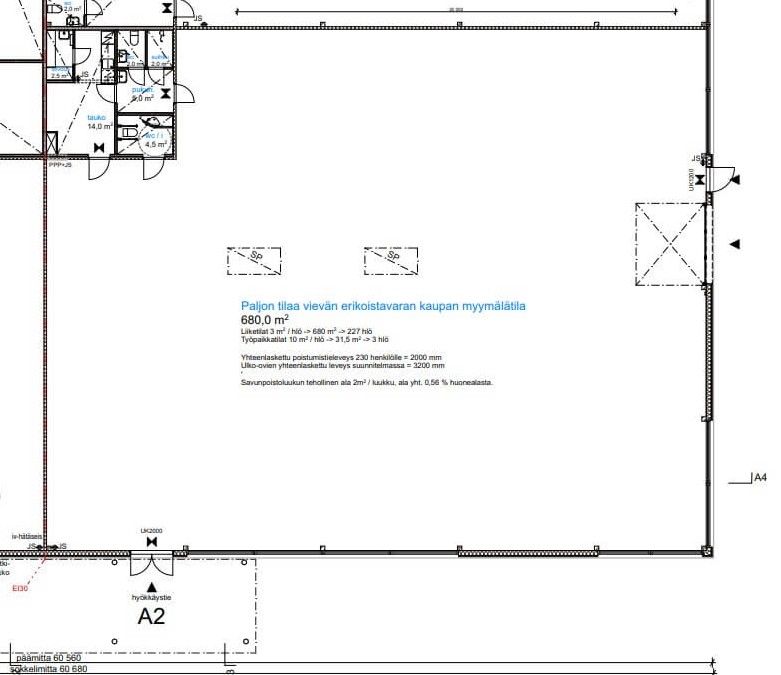
Vapautumassa vuokrattavaksi 1.5.2026 alkaen näyttävä liiketila. Toimitila on katutasossa ja se sisältää pienet sosiaalitilat. Tilassa on nosto-ovi sekä erillinen sisäänkäynti. Kohteella on pihatilaa runsaasti. Toimitila soveltuu hyvin showroom/liiketilakäyttöön, varastoksi tai pientuotannon käyttöön.
Lisätietoja 0200 7290 710. lisää kohteita www.premises.fi
Kohteella ei lainedellyttämää energiatodistusta tiedossa.Kerros: 1
Osoite
Autokeskuksentie 12, 33960 Pirkkala
Tilatyyppi
Liiketilaa
735 m2
Ota yhteyttä
CRE PREMISES
Puh. Näytä puhelinnumero 020 7290 710
Vantaankoskentie 14
01670 VANTAA
Pyydä lisätietoa
