Vuokrataan toimistotilat - Helsinki
Ruoholahdenkatu 14, Kamppi, Kamppi, 00180 Helsinki #10835112
60-luvun kiinteistöön on remontoitu moderneja ja muunneltavia tiloja.
Osoite
Ruoholahdenkatu 14, Kamppi, 00180 Helsinki
Tilatyyppi
Toimistotilaa
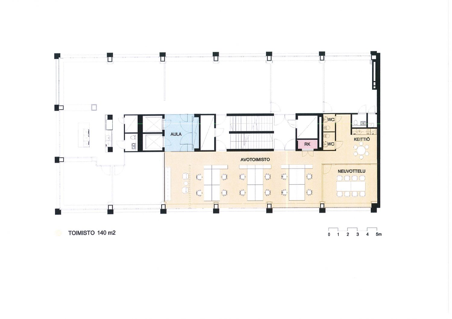
140 m2
Kiinteistö
Vuokrataan kiinteistön 6. kerroksen 140 m²:n toimistotila. Upeat näkymät Ruoholahden villoihin ja Kampin kortteleihin. Ikkunoista tulvii luonnonvaloa. Tilassa alkuperäiset tiikkiset ikkunapenkit ja karmit.
Sijainti
Lähellä Kampin keskustaa.
Pysäköinti
Kiinteistöllä oma autohalli sekä sisäpihalla pysäköintipaikkoja.
Palvelut
Kampin palvelut noin 10 minuutin kävelymatkan päässä.
Kulkuyhteydet
Raitiovaunupysäkki kiinteistön edessä. Kampista metro- ja bussiyhteydet.
Muuta
Pyöräparkki sekä huoltopiste kiinteistön kellarikerroksessa. Suihkutilat sekä pukuhuoneet kuivauskaapeilla.
Vapautuu
Heti
Energiatehokkuusluokka
Ei lain edellyttämää energiatodistusta
Ota yhteyttä
Comreal Oy LKV
Tuula Leikas
Näytä puhelinnumero
040 531 3722
P.
Näytä puhelinnumero
020 744 1000
Läkkisepänkuja 6, 00620 Helsinki
Comreal Oy on kasvava ja osaava kiinteistöalan palveluntuottaja kiinteistöjen omistajille ja käyttäjille.
Kiinteistö on sijoittajalle hyvä sijoitus vain, jos siellä on tyytyväiset asiakkaat, eli vuokralaiset. Siksi laadukas asiakaspalvelu on toiminnan lähtökohta.
Pyydä lisätietoa
