Vuokrataan toimistotilat - Lappeenranta
Kauppakatu 32, keskusta, 53100 Lappeenranta #10835036
Edustava ja moderni toimistotila Lappeenrannan ytimessä
Tartu tilaisuuteen – nyt tarjolla laadukas toimistotila Lappeenrannan parhaalla paikalla, aivan ydinkeskustassa, vilkkaan kävelykatu Oleksin varrella.
Tämä toisen kerroksen toimistotila on tyylikkäästi viimeistelty ja tarjoaa miellyttävän työympäristön hyvän ilmanvaihdon ja tehokkaan jäähdytyksen ansiosta. Suuret ikkunat tuovat runsaasti luonnonvaloa ja avarat näkymät kaupunkimaisemaan.
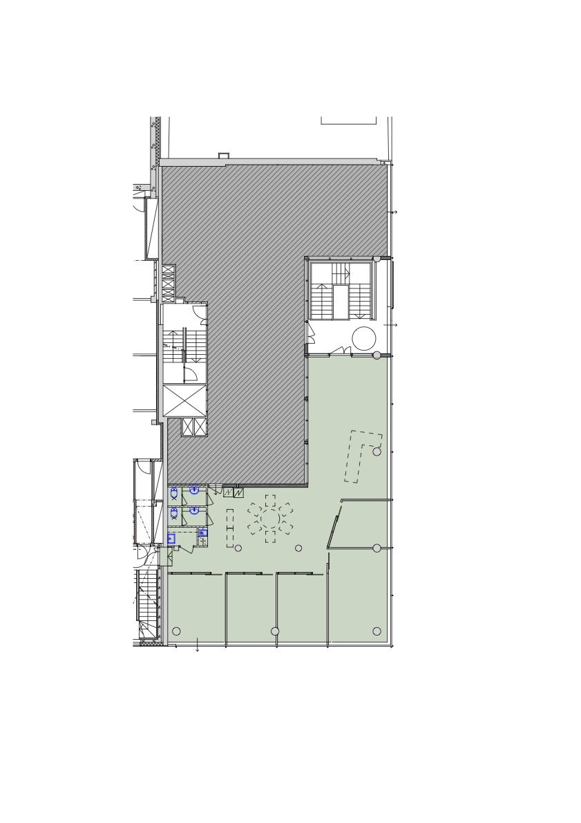
Tilaa voidaan tarvittaessa muokata asiakkaan tarpeiden mukaan. Tila on merkitty pohjakuvaan vihreällä ja on pinta-alaltaan 180,4 m2. Pohjakuva voi joiltain osin hieman poiketa tämänhetkisestä tilanteesta.
Tänne on helppo saapua – keskeinen sijainti takaa erinomaiset kulkuyhteydet. Lisäksi kiinteistön alakerrassa on tarjolla autopaikkoja tarpeen mukaan.
Näkyvyyttä riittää, sillä Oleksilla liikkuu päivittäin runsaasti ihmisiä – loistava mahdollisuus myös brändisi esille tuomiseen.
Tilassa on joustavat mahdollisuudet muokata kokonaisuus yrityksesi tarpeisiin. Tule ja ihastu – täällä viihdyt varmasti!
Sovi esittely!
