Vuokrataan toimistotilat - Lappeenranta
Kauppakatu 32, keskusta, 53100 Lappeenranta #10835035
Edustava ja moderni toimistotila Lappeenrannan ytimessä
Harvoin tarjolla oleva, laadukas toimistotila Lappeenrannan parhaalla paikalla, aivan ydinkeskustassa, vilkkaan kävelykatu Oleksin varrella.
Tämä toisen kerroksen toimistotila on tyylikkäästi viimeistelty ja tarjoaa miellyttävän työympäristön hyvän ilmanvaihdon ja tehokkaan jäähdytyksen ansiosta. Suuret ikkunat tuovat runsaasti luonnonvaloa ja avarat näkymät kaupunkimaisemaan.
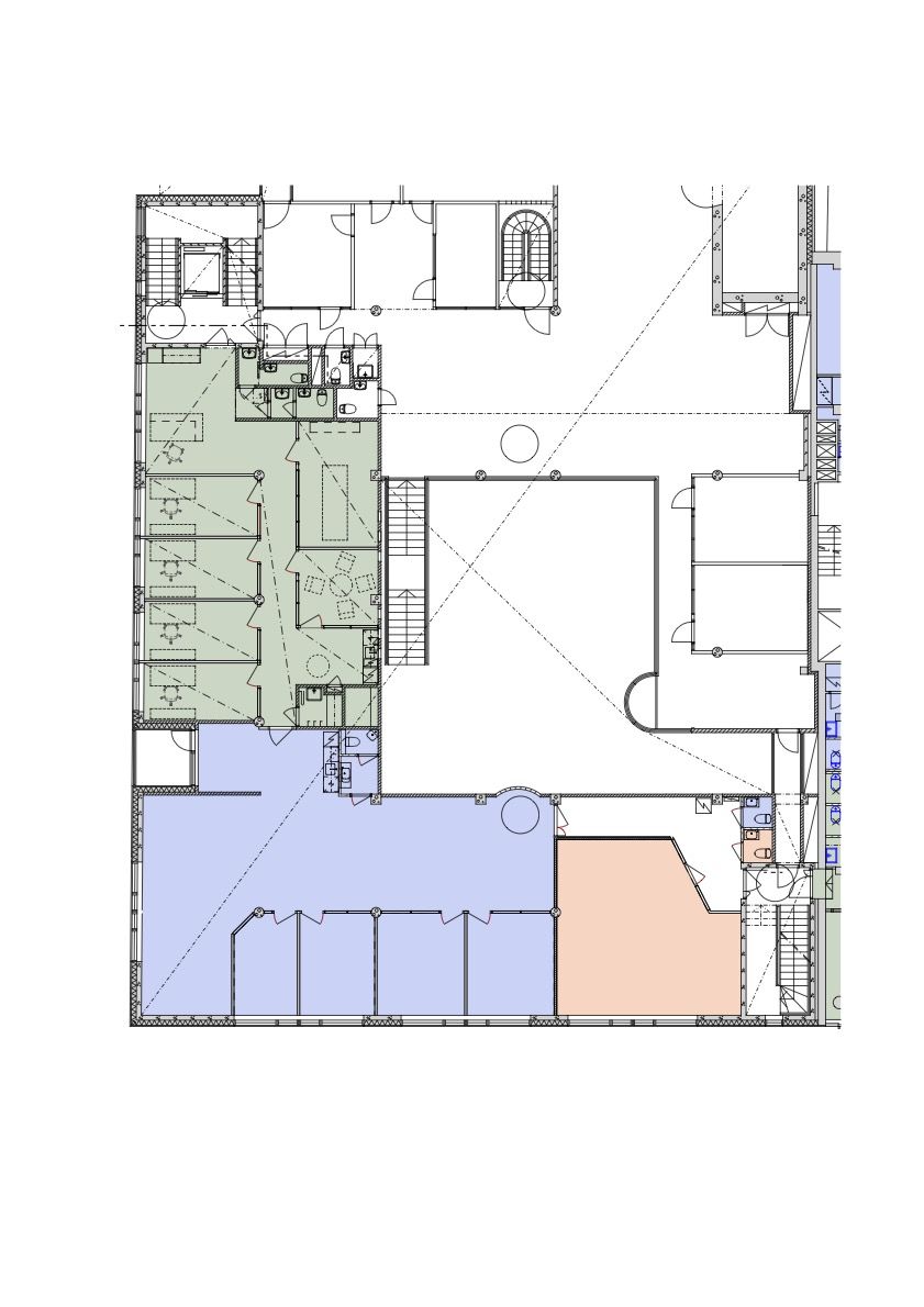
Tiloja voi aina muokata tarvittavasti. Pohjakuvassa sinisellä näkyvä tila on 166,5 m2 ja ruskealla näkyvä tila 48,0 m2 eli yhteensä 214,5 m2. Nuo tilat voidaan vuokrata yhdessä tai erikseen. Pohjakuva voi hieman poiketa tämänhetkisestä.
Tänne on helppo saapua – keskeinen sijainti takaa erinomaiset kulkuyhteydet. Lisäksi kiinteistön alakerrassa on tarjolla autopaikkoja tarpeen mukaan.
Näkyvyyttä riittää, sillä Oleksilla liikkuu päivittäin runsaasti ihmisiä – loistava mahdollisuus myös brändisi esille tuomiseen.
Tilassa on joustavat mahdollisuudet muokata kokonaisuus yrityksesi tarpeisiin. Tule ja ihastu – täällä viihdyt varmasti!
Sovi esittely!
