Vuokrataan toimistotilat, tuotantotilat, varastotilat - Pirkkala
Jasperintie 334 A, 33960 Pirkkala #10834994
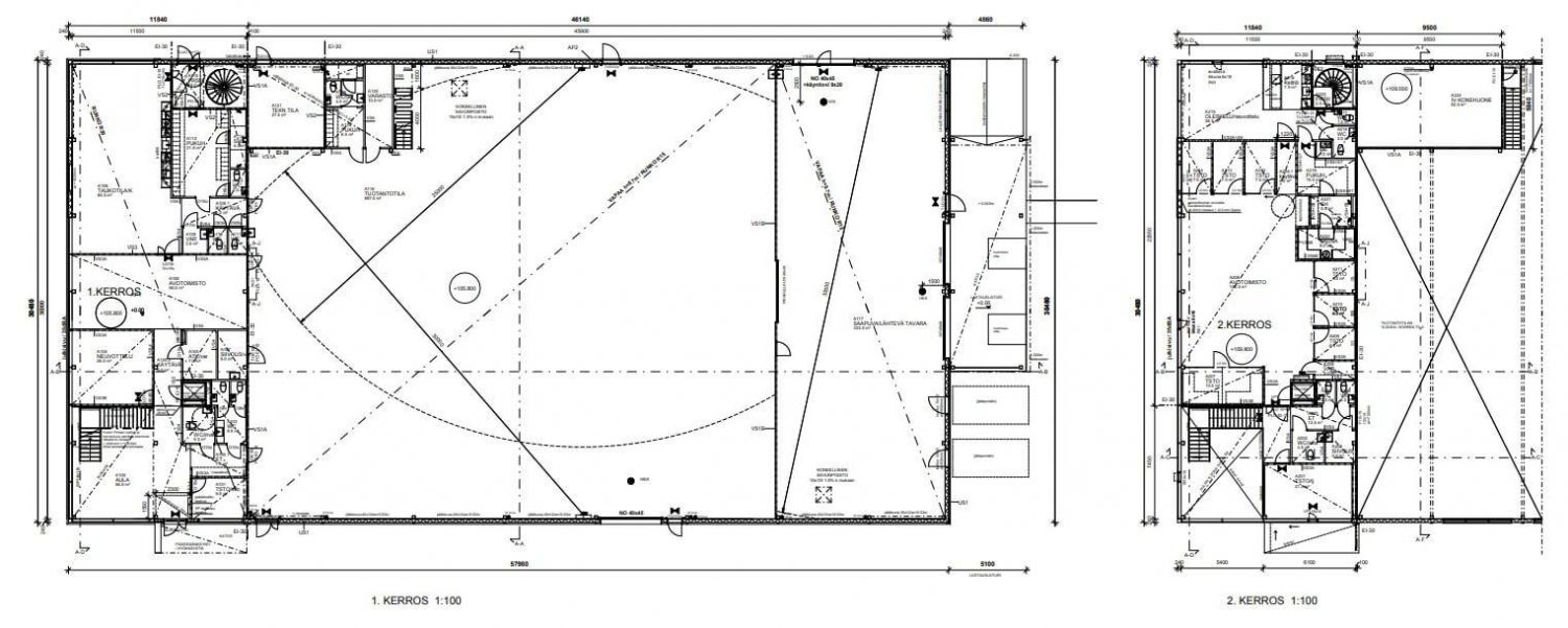
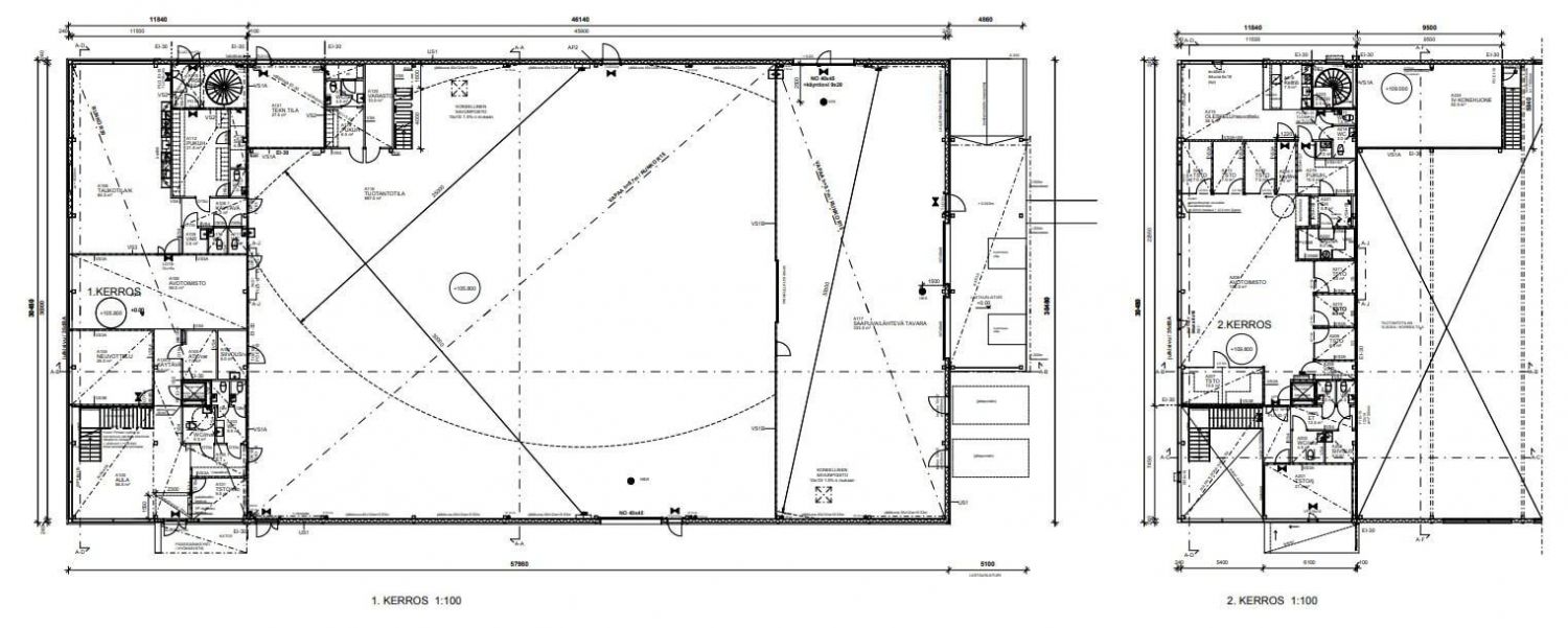
Vuokrattavana 2 143 m² monikäyttöinen toimitila Pirkkalasta. Tämä tila soveltuu tuotanto-, työskentely- tai varastotilaksi.
Tilasta on korkeaa ja avaraa varastohallia 1 450 m². Hallissa on kaksi nosto-ovea sekä lastauslaituri, jossa kaksi kuormaussiltaa. Toimistoa löytyy kahdessa kerroksessa yhteensä noin 682 m². Tilavat huoneet isoilla ikkunoilla.
Lisäksi tiloissa on pukuhuoneita, sauna- ja edustustilat. Kohteella on hyvin parkkipaikkoja saatavilla.
Kysy rohkeasti lisätietoja ja varaa esittelyaikasi jo tänään!
Katutasossa
Näkyvällä paikalla
Hausala Oy
Erkkilänkatu 11, 33100 Tampere
Näytä puhelinnumero
050 472 7077
Mikko Ranta
Näytä puhelinnumero
050 360 6500
Mika Savikko
Näytä puhelinnumero
050 472 7077
