Vuokrataan toimistotilat, tuotantotilat, varastotilat - Pirkkala
Jasperintie 334 B, 33960 Pirkkala #10834993
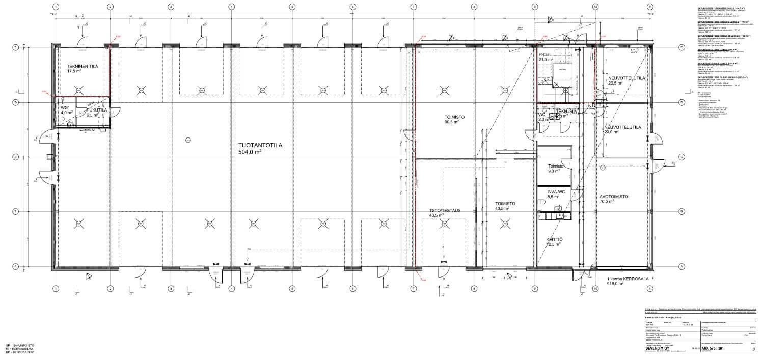
Vuokrataan 1 118 m² monikäyttöinen toimitila Pirkkalasta. Uudenveroinen ja näyttävä liikekiinteistö tarjoaa yritykselle erinomaisen ja näkyvän sijainnin ohitustien varrella, aivan Pirkkalan ABC:n vastapäätä ja vain lyhyen matkan päässä lentokentästä. Sijainti takaa loistavat kulkuyhteydet sekä vahvan näkyvyyden.
Tilasta osa on korkeaa ja avaraa varastohallia. Hallissa on käytössä kolme maantason nosto-ovea. Ovien määrää voidaan lisätä tarvittaessa helpohkosti. Toimistoa tilasta löytyy kahdessa kerroksessa.
Kysy rohkeasti lisätietoja ja varaa esittelyaikasi jo tänään!
Näkyvällä paikalla
Hausala Oy
Erkkilänkatu 11, 33100 Tampere
Näytä puhelinnumero
050 472 7077
Mikko Ranta
Näytä puhelinnumero
050 360 6500
Mika Savikko
Näytä puhelinnumero
050 472 7077
