Vuokrataan toimistotilat, tuotantotilat, varastotilat - Pirkkala
Jasperintie 334 C, 33960 Pirkkala #10834992
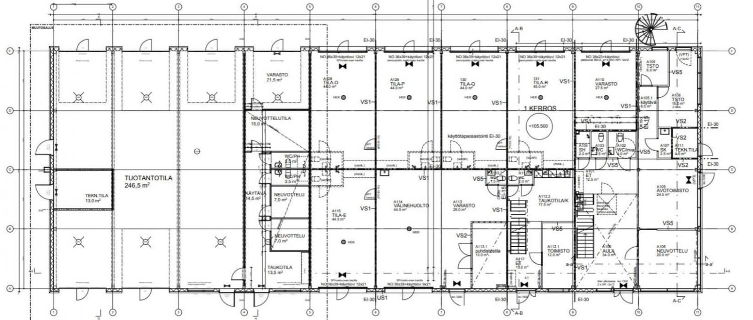
Vuokrataan 1 030 m² monikäyttöinen toimitila Pirkkalasta. Tämä tila soveltuu tuotanto-, työskentely- tai varastotilaksi. Tilaa voidaan myös tarvittaessa jakaa pienempiin osiin.
Tilasta osa on korkeaa ja avaraa varastohallia. Toimistoa tilasta löytyy kahdessa kerroksessa.
Kysy rohkeasti lisätietoja ja varaa esittelyaikasi jo tänään!
Osoite
Jasperintie 334 C, 33960 Pirkkala
Tilatyyppi
Toimistotilaa
1030 m2
Tuotantotilaa
1030 m2
Varastotilaa
1030 m2
Yhteensä
1030 m2
Kiinteistö
Jasperintie 334 C
Vapautuu
Kysy
Ota yhteyttä
Hausala Oy
Erkkilänkatu 11, 33100 Tampere
Näytä puhelinnumero
050 472 7077
Mikko Ranta
Näytä puhelinnumero
050 360 6500
Mika Savikko
Näytä puhelinnumero
050 472 7077
Pyydä lisätietoa
