Vuokrataan toimistotilat - Vantaa
Ratatie 11, Tikkurila, 01300 Vantaa #10834990
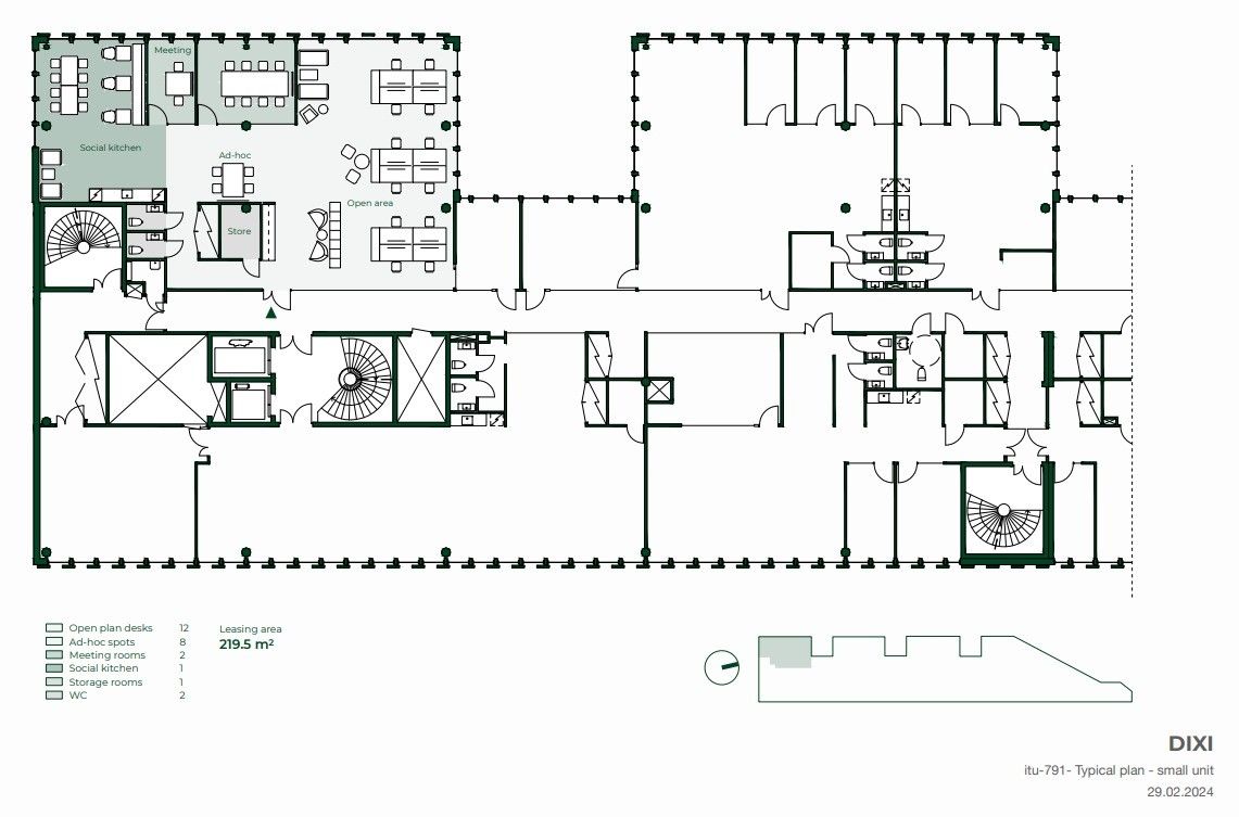
Tikkurilan Dixi Office Center ei ole vain toimisto – se on strateginen valinta.
Saavutettavuus, joka ei jätä ketään ulkopuolelle:
Sijainti tekee Dixistä mahdollisesti Vantaan saavutettavimman toimistokohteen. Täällä yrityksesi on näkyvillä, saavutettavissa ja keskellä kasvavaa, urbaania solmukohtaa, jossa liikkuu päivittäin tuhansia ihmisiä – työntekijöitä, asiakkaita ja yhteistyökumppaneita.
Juna-asema suoraan rakennuksen yhteydessä – lähes kaikki lähijunat ja useat kaukojunat pysähtyvät Tikkurilassa.
Suorat yhteydet Helsinki-Vantaan lentoasemalle – vain 8 minuutin junamatka.
Kehä III ja Lahdenväylä aivan vieressä – erinomainen saavutettavuus myös autolla.
Tuleva Vantaan ratikka pysähtyy Dixin edustalla – tulevaisuuden liikenneinfra on jo rakenteilla
Palvelut, jotka tukevat työpäivää ja hyvinvointia:
Dixi Office Center on osa monipuolista kauppakeskusta, jossa toimii yli 50 liikettä ja palvelua. Tämä tarkoittaa useita lounasravintoloita ja kahviloita – ei enää kiireisiä siirtymiä ruokailuun. Päivittäistavarakaupat, apteekki, kuntosali ja erikoisliikkeet – kaikki saman katon alla. Lisäksi aulapalvelut, lastauslaiturit, hissit ja pysäköintihalli – sujuva arki yrityksille ja vieraille!
Moderni ympäristö, joka kehittyy jatkuvasti:
Tikkurila on yksi pääkaupunkiseudun nopeimmin kehittyvistä keskuksista. Uudet asuin- ja toimitilakorttelit ovat jo muuttaneet alueen ilmettä ja tuovat yhä lisää toimijoita ja asukkaita alueelle. Dixi on tämän kehityksen ytimessä – tarjoten modernit ja muuntojoustavat tilat kaiken kokoisille yrityksille dynaamisessa ympäristössä.
Lisätietoja löydät kotisivuilta: https://dixiofficecenter.fi/ ja kauppakeskuksen palveluista: https://dixi.fi/
Lisätiedot ja esittelyt:
Jenni Selänne
Leasing Manager, LKV, LVV
jenni.selanne@colliers.com
p. 040 680 7723
