Vuokrataan toimistotilat - Helsinki
Pieni Roobertinkatu 11, Kaartinkaupunki, 00130 Helsinki #10834963
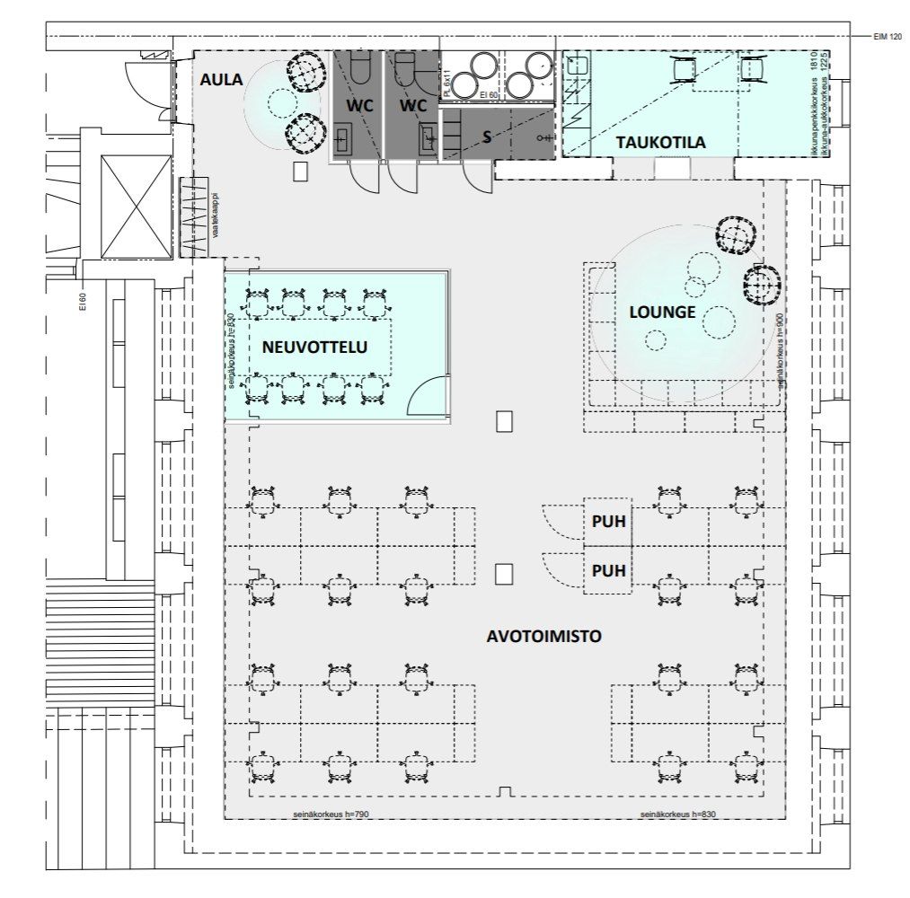
Siistiä toimistotilaa Helsingistä
Osoite
Pieni Roobertinkatu 11, 00130 Helsinki
Tilatyyppi
Toimistotilaa
173 m2
Muuta
Vuokrattavana 173 m² siistiä toimistotilaa rakennuksen 4. kerroksessa.
Tila sijaitsee erinomaisella sijainnilla ja tarjoaa toimivan ratkaisun eri toimialojen yrityksille. Hyvä saavutettavuus ja alueen kattavat palvelut tukevat sujuvaa työarkea.
Toimistotila on heti vapaa ja sopii erinomaisesti yritykselle, joka etsii käytännöllistä ja helposti saavutettavaa toimitilaa tuleviin tarpeisiin.
Tervetuloa tutustumaan, varaathan välittäjältä oman esittelyaikasi. Voit kysyä meiltä myös muita sopivia vaihtoehtoja, kauttamme löydät juuri Teidän tarpeisiinne sopivat tilat. Palvelumme on tilanhakijalle veloitukseton!
Tila sijaitsee erinomaisella sijainnilla ja tarjoaa toimivan ratkaisun eri toimialojen yrityksille. Hyvä saavutettavuus ja alueen kattavat palvelut tukevat sujuvaa työarkea.
Toimistotila on heti vapaa ja sopii erinomaisesti yritykselle, joka etsii käytännöllistä ja helposti saavutettavaa toimitilaa tuleviin tarpeisiin.
Tervetuloa tutustumaan, varaathan välittäjältä oman esittelyaikasi. Voit kysyä meiltä myös muita sopivia vaihtoehtoja, kauttamme löydät juuri Teidän tarpeisiinne sopivat tilat. Palvelumme on tilanhakijalle veloitukseton!
Vapautuu
Kysy
Kerros
4
Ota yhteyttä
Tuloskiinteistöt Oy
Rikhardinkatu 2 B 5, 00130 Helsinki
Näytä puhelinnumero
(09) 6841 620
Jorma Ryynänen
Commercial Real Estate Advisor LKV, LVV
Näytä puhelinnumero
+358 40 708 4064
Otto Ahtola
Commercial Real Estate Advisor
Näytä puhelinnumero
+358 40 042 2830
Pyydä lisätietoa
