Vuokrataan toimistotilat - Helsinki
Osmontie 38, Käpylä, 00610 Helsinki #10834962
Toimistotilaa Helsingistä
Osoite
Osmontie 38, 00610 Helsinki
Tilatyyppi
Toimistotilaa
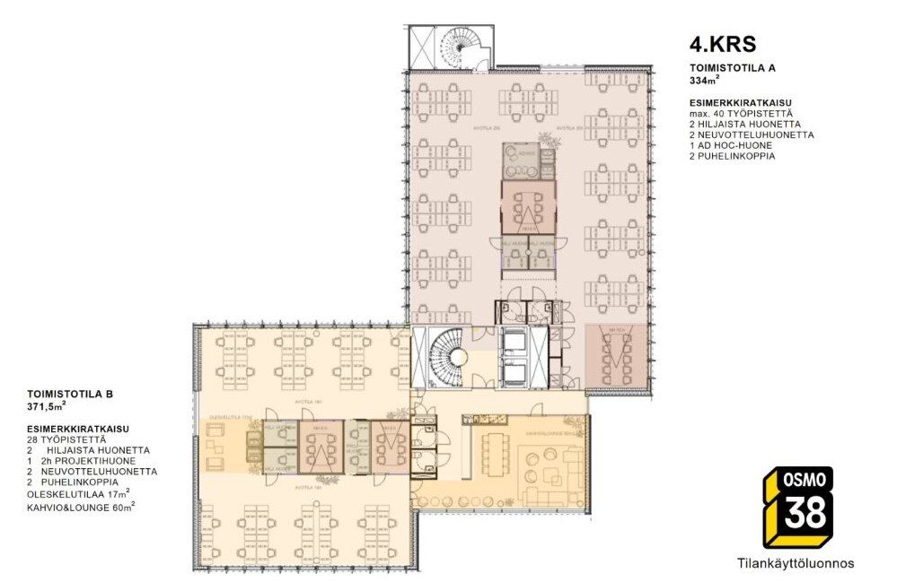
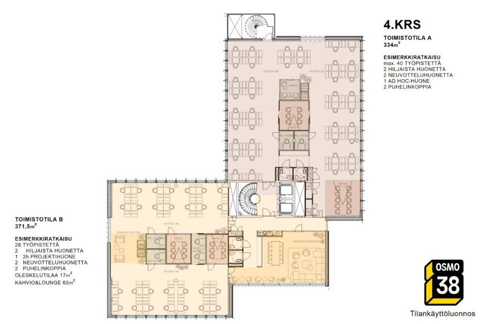
1412 m2
Muuta
Vuokrattavana 1 412 m² toimistotilaa Helsingin Käpylästä.
Tila sijaitsee rakennuksen 4.â5. kerroksessa ja vapautuu marraskuussa 2025.
Toimistokokonaisuus on valoisa ja tarjoaa monipuoliset mahdollisuudet eri toimialojen yrityksille.
Tilaa on mahdollista muokata käyttäjän tarpeiden mukaan, mikä mahdollistaa toimivan ratkaisun niin avo- kuin huonetoimistoa kaipaaville. Erinomainen sijainti ja sujuvat liikenneyhteydet tekevät kohteesta helposti saavutettavan.
Sisäkuvat ovat havainnekuvia.
Tervetuloa tutustumaan, varaathan välittäjältä oman esittelyaikasi. Voit kysyä meiltä myös muita sopivia vaihtoehtoja, kauttamme löydät juuri Teidän tarpeisiinne sopivat tilat. Palvelumme on tilanhakijalle veloitukseton!
Tila sijaitsee rakennuksen 4.â5. kerroksessa ja vapautuu marraskuussa 2025.
Toimistokokonaisuus on valoisa ja tarjoaa monipuoliset mahdollisuudet eri toimialojen yrityksille.
Tilaa on mahdollista muokata käyttäjän tarpeiden mukaan, mikä mahdollistaa toimivan ratkaisun niin avo- kuin huonetoimistoa kaipaaville. Erinomainen sijainti ja sujuvat liikenneyhteydet tekevät kohteesta helposti saavutettavan.
Sisäkuvat ovat havainnekuvia.
Tervetuloa tutustumaan, varaathan välittäjältä oman esittelyaikasi. Voit kysyä meiltä myös muita sopivia vaihtoehtoja, kauttamme löydät juuri Teidän tarpeisiinne sopivat tilat. Palvelumme on tilanhakijalle veloitukseton!
Vapautuu
Kysy
Kerros
4-5
Ota yhteyttä
Tuloskiinteistöt Oy
Rikhardinkatu 2 B 5, 00130 Helsinki
Näytä puhelinnumero
(09) 6841 620
Jorma Ryynänen
Commercial Real Estate Advisor LKV, LVV
Näytä puhelinnumero
+358 40 708 4064
Nina Meyke
Commercial Real Estate Advisor
Näytä puhelinnumero
+358 50 466 1519
Pyydä lisätietoa
