Vuokrataan toimistotilat - Helsinki
Kansakoulukatu 3, Kamppi, 00100 Helsinki #10834935
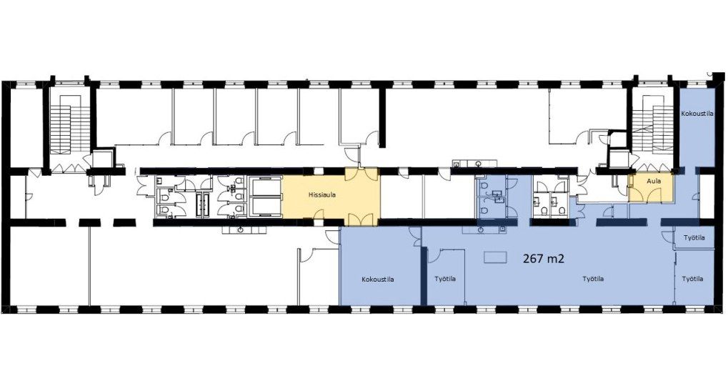
Siistiä toimistotilaa Helsingistä
Osoite
Kansakoulukatu 3, 00100 Helsinki
Tilatyyppi
Toimistotilaa
267 m2
Muuta
Vuokrattavana siistiä 267 m² toimistotilaa Helsingin keskustasta.
Tila sijaitsee rakennuksen 3. kerroksessa ja on heti vapaa uudelle käyttäjälle. Toimisto soveltuu erinomaisesti yritykselle, joka arvostaa keskeistä sijaintia ja toimivia tilaratkaisuja.
Erinomainen sijainti takaa hyvät liikenneyhteydet ja palvelut lähettyvillä, mikä tukee työskentelyä ja helpottaa asiakkaiden ja henkilökunnan liikkumista.
Sisäkuvat ovat havainnekuvia.
Tervetuloa tutustumaan, varaathan välittäjältä oman esittelyaikasi. Voit kysyä meiltä myös muita sopivia vaihtoehtoja, kauttamme löydät juuri Teidän tarpeisiinne sopivat tilat. Palvelumme on tilanhakijalle veloitukseton!
Tila sijaitsee rakennuksen 3. kerroksessa ja on heti vapaa uudelle käyttäjälle. Toimisto soveltuu erinomaisesti yritykselle, joka arvostaa keskeistä sijaintia ja toimivia tilaratkaisuja.
Erinomainen sijainti takaa hyvät liikenneyhteydet ja palvelut lähettyvillä, mikä tukee työskentelyä ja helpottaa asiakkaiden ja henkilökunnan liikkumista.
Sisäkuvat ovat havainnekuvia.
Tervetuloa tutustumaan, varaathan välittäjältä oman esittelyaikasi. Voit kysyä meiltä myös muita sopivia vaihtoehtoja, kauttamme löydät juuri Teidän tarpeisiinne sopivat tilat. Palvelumme on tilanhakijalle veloitukseton!
Vapautuu
Kysy
Kerros
3
Ota yhteyttä
Tuloskiinteistöt Oy
Rikhardinkatu 2 B 5, 00130 Helsinki
Näytä puhelinnumero
(09) 6841 620
Jorma Ryynänen
Commercial Real Estate Advisor LKV, LVV
Näytä puhelinnumero
+358 40 708 4064
Otto Ahtola
Commercial Real Estate Advisor
Näytä puhelinnumero
+358 40 042 2830
Pyydä lisätietoa
