Vuokrataan toimistotilat, liiketilat, näyttelytilat - Helsinki
Runeberginkatu 43, Töölö, 00101 Helsinki #10834923
Vuokrataan arkkitehti Lars Sonckin suunnittelemasta talosta,
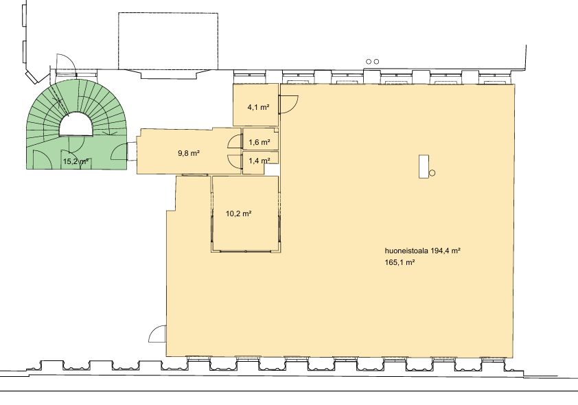
hyvällä sijainnilta Helsingin Töölöstä, toimisto-, showroom-tyyppistä tilaa 195 m2.
Tila on kiinteistö 2. kerroksessa.
Tila pääosin avotilaa, 2 vessaa ja minikeittiö. Tilat ovat erittäin valoisat lukuisten ikkunoiden vuoksi. Tiloissa palkkijäähdytys.
Lisätiedot: Mika / 045 261 6555
Tilasta ei ole teetetty energiantodistusta tai sitä ei ole saatavilla.Kerros: 2
Osoite
Runeberginkatu 43, 00101 Helsinki
Tilatyyppi
Toimistotilaa
195 m2
Liiketilaa
195 m2
Näyttelytilaa
195 m2
Yhteensä
195 m2
Ota yhteyttä
CRE PREMISES
Puh. Näytä puhelinnumero 020 7290 710
Vantaankoskentie 14
01670 VANTAA
Pyydä lisätietoa
