Vuokrataan toimistotilat - Espoo
Vaisalantie 2-8, Otaniemi, 02130 Espoo #10834889
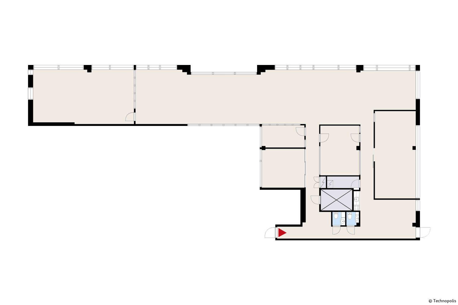
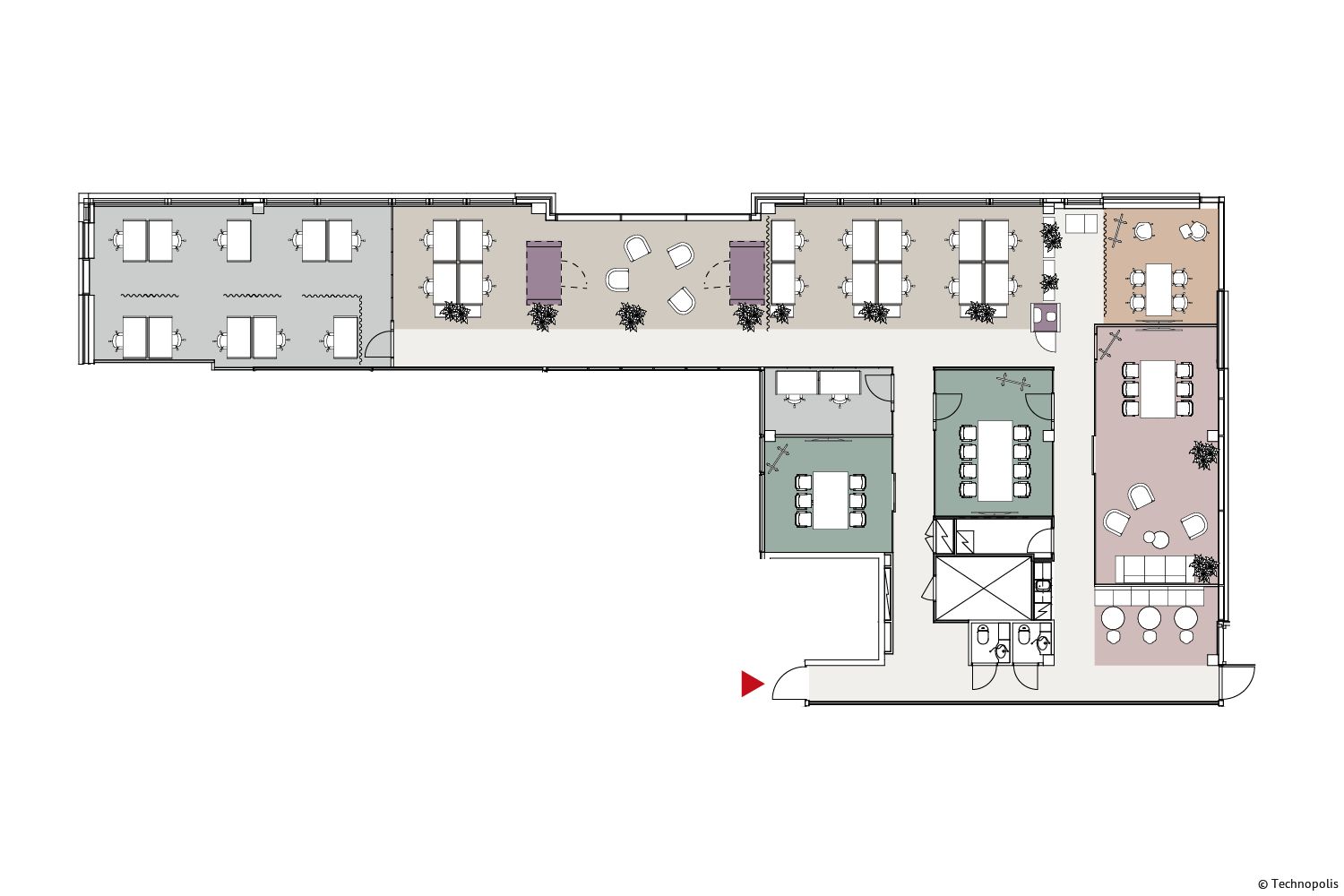
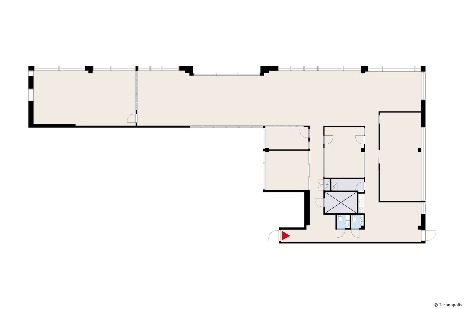
Vuokrattavana edustava ylimmän kerroksen 370 m² toimitila Technopolis Otaniemessä Espoossa, jossa hyvin toimiva pohjaratkaisu. Tässä valoisassa ja tilavassa toimistossa on runsaasti avotilaa, useita huoneita, oma keittiö sekä wc-tilat. Toimitilasta on saatavilla valmis sovituskuva, josta näkee tarkemman työpistemäärän ja tilan toiminnot. Tila on yhdistettävissä viereisen 215 m² tilan kanssa. Toimitila sijaitsee Innopoli 3 -rakennuksessa, ja tilassa on ilmastointi, joka takaa miellyttävän lämpötilan ympäri vuoden.
Tila on vuokrattavissa myös kalustettuna, lisäksi saatavilla työtilan suunnittelu- ja muuttopalvelut helpottamaan muuttoa. Ota yhteyttä ja tule tutustumaan paikan päälle.
Technopolis Otaniemi sijaitsee lähellä Aalto-yliopiston metroasemaa, pikaraitiotien ja bussireittien varrella. Lisäksi Suomen vilkkain liikenneväylä Kehä I kulkee aivan kampuksen vierestä. Parkkipaikkoja on erittäin hyvin saatavilla autoilijoiden tarpeisiin.
Technopolis Otaniemen kampuksen monipuolisten palveluiden ansiosta sinä voit keskittyä liiketoimintaasi. Palveluihin kuuluvat ystävällinen aulapalvelu, monipuolinen valikoima kokoustiloja, useita erinomaisia ravintoloita ja useampi hyvin varusteltu kuntosali. Lisäksi kampukselta löytyy kampaamoita, hammasklinikka, eläinlääkäriasema ja kaksi autopesulaa.
Technopolis
Elektroniikkatie 8 FIN-90590 Oulu
Näytä puhelinnumero
046 712 0000
Heta Lindman
Näytä puhelinnumero
050 336 5815
Hanna Peltola
Näytä puhelinnumero
050 514 3746
Nina Torkkeli
Näytä puhelinnumero
040 532 9787
Technopolis on työympäristöjen asiantuntija. Tarjoamme joustavia ja tehokkaita toimitiloja sekä niihin liittyviä palveluita. Hoidamme kaiken työtilojen suunnittelusta sekä aula- ja kokouspalveluista ravintoloihin ja siivoukseen. Asiakaskokemus ja sen kehittäminen ovat toimintamme ytimessä. Meillä on 14 kampusta, joissa toimii 1200 asiakasyritystä ja niiden 35 000 työntekijää neljässä maassa Euroopassa.
https://technopolisglobal.com/fi