Vuokrataan toimistotilat - Helsinki
Vanhanlinnantie 3, Itäkeskus, 00900 Helsinki #10834740
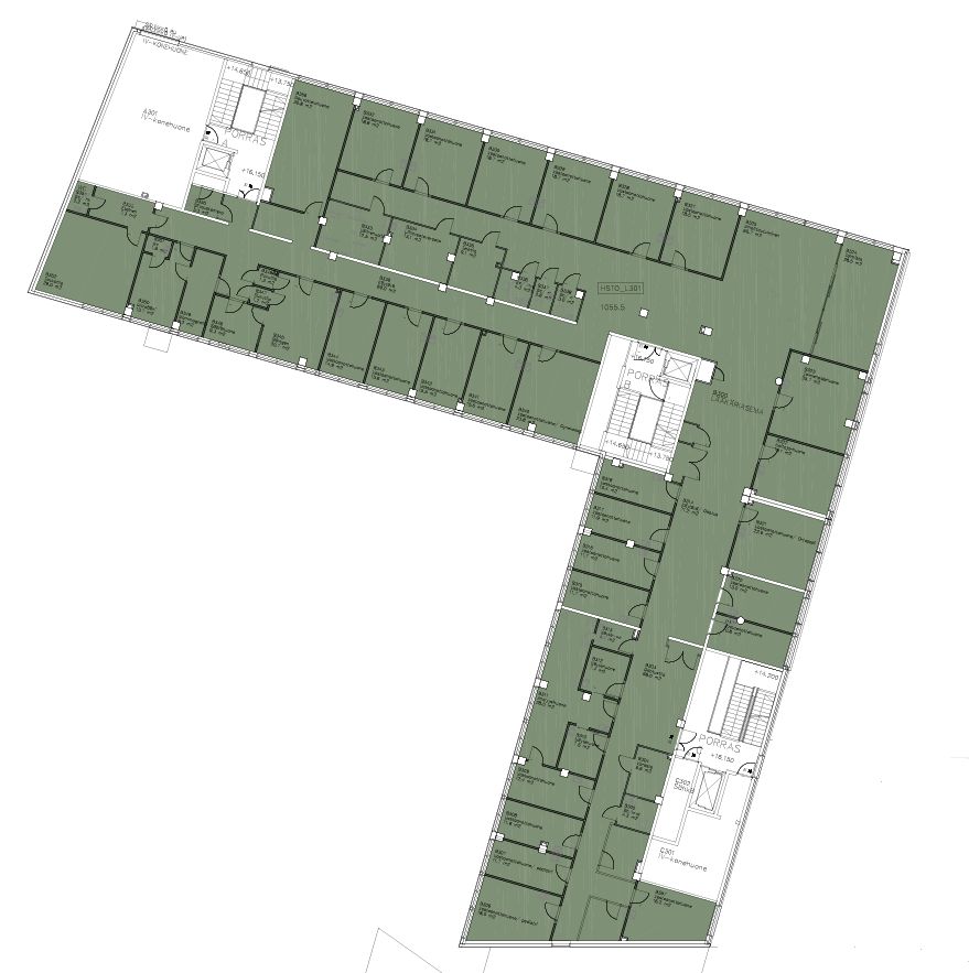
Vuokrattavana aikaisemmin lääkäriasemana toiminut toimitila.
Osoite
Vanhanlinnantie 3, 00900 Helsinki
Tilatyyppi
Toimistotilaa
1055,5 m2
Kiinteistö
Vuokrattavana aikaisemmin lääkäriasemana toiminut toimitila. Tila koostuu useista vesipisteellisistä työhuoneista.
Sijainti
Itäkeskus, Helsinki
Pysäköinti
Kiinteistön hallissa
Palvelut
Kauppakeskus Itiksen palvelut.
Kulkuyhteydet
- Metro
- Bussi
- Oma auto
- Bussi
- Oma auto
Vapautuu
30.04.2026
Kerros
3
Energiatehokkuusluokka
Ei lain edellyttämää energiatodistusta
Näkyvällä paikalla
Hissi
Ota yhteyttä
REALIUM OY LKV
Tammasaarenkatu 1, 00180 Helsinki
Vaihde:
Näytä puhelinnumero
010 326 346
Tuomo Mäkelä
tuomo.makela@realium.fi
p.
Näytä puhelinnumero
044 050 1158
Joel Keto
joel.keto@realium.fi
p.
Näytä puhelinnumero
045 317 0330
KAIKKI TILAVAIHTOEHDOT KERRALLA!
SOITA - MEILAA JA TILAA NÄYTTÖ!
Ilmainen palvelu tilanhakijoille.
Kartoitamme parhaat tilavaihtoehdot.
Kaikki kohteet eivät ole netissä.
Pyydä lisätietoa
