Vuokrataan toimistotilat - Helsinki
Runeberginkatu 5, Helsinki, Suomi, Kamppi, 00100 Helsinki #10834709
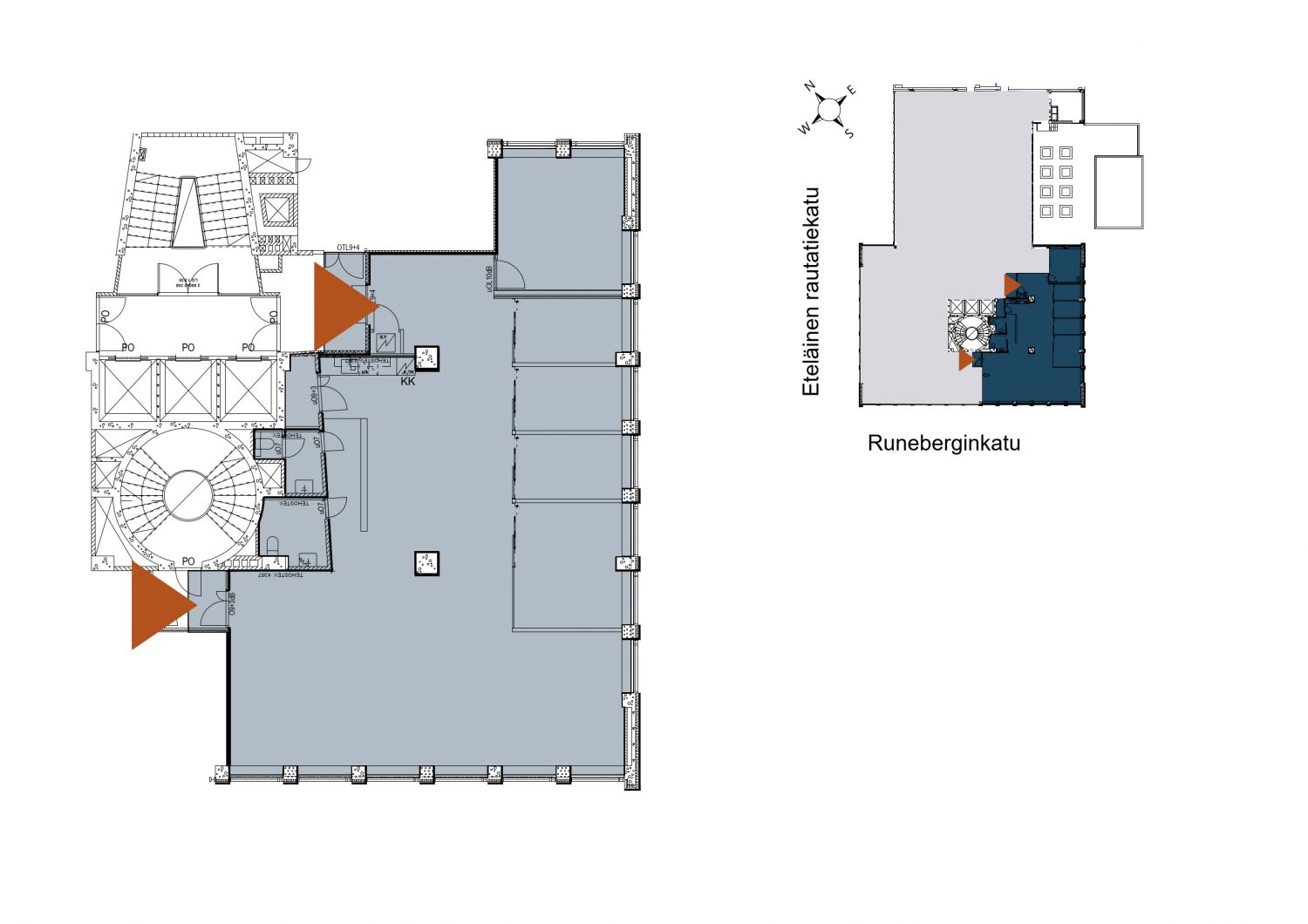
Autotalokorttelin Runskivuori-toimistotalo sijaitsee näyttävällä paikalla Kampissa.
Osoite
Runeberginkatu 5, Helsinki, Suomi, 00100 Helsinki
Tilatyyppi
Toimistotilaa
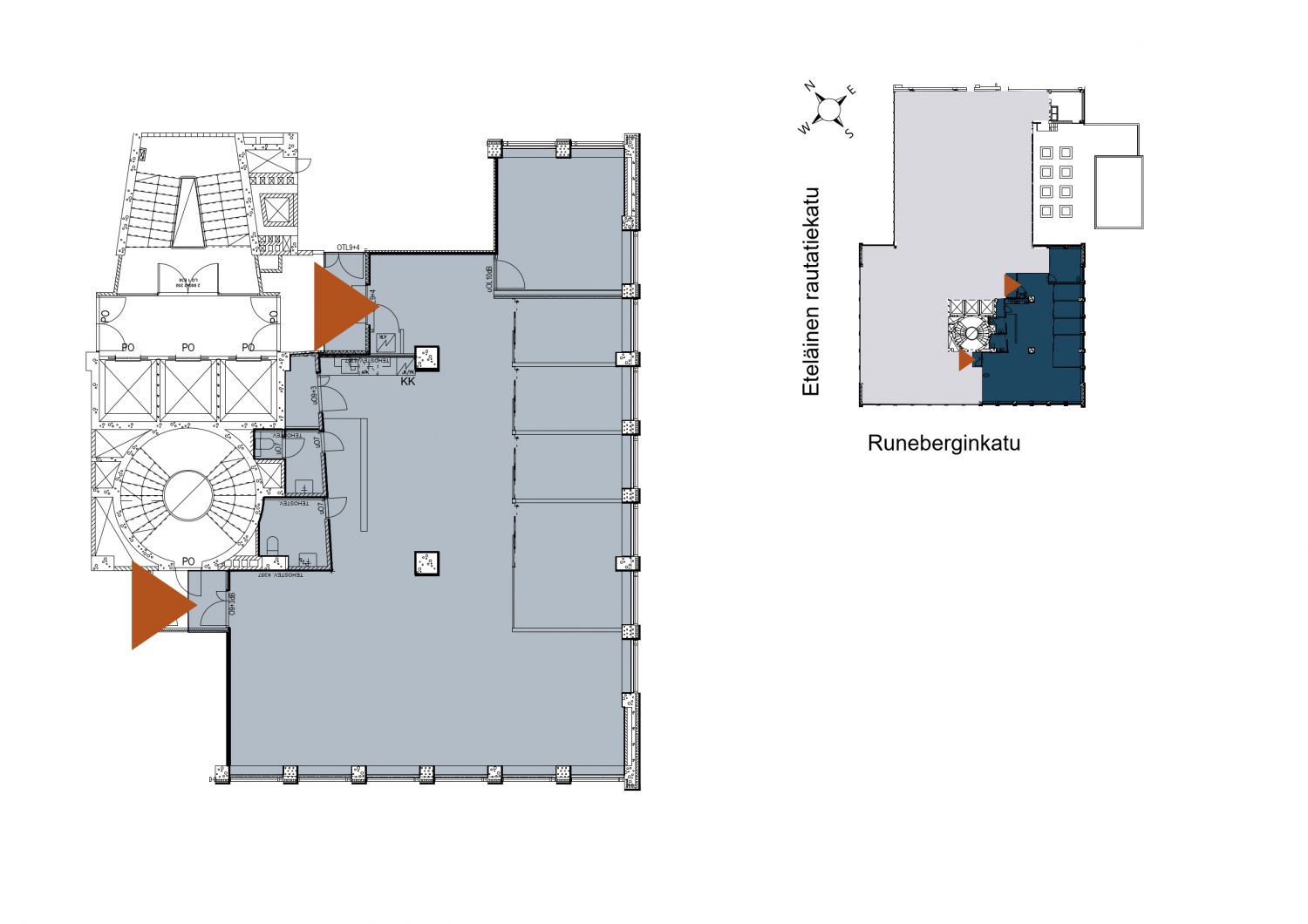
209 m2
Kiinteistö
Helsingin Runeberginkatu 5
Ympäristö
Metroasema: 100 m, Raitiovaunupysäkki: 200 m, Juna-asema: 800 m, Bussipysäkki: alle 100 m, Lentoasema: 19,4 km
Kulkuyhteydet
Valokuitu
Muuta
Kuvaus: Tarjolla moderni ja monipuolinen monitilatoimisto Helsingin Kampissa. Tämä toimisto tarjoaa erinomaiset puitteet niin pienille kuin suurillekin yrityksille. Toimisto on suunniteltu tukemaan erilaisia työskentelytapoja ja -tarpeita, ja se sisältää muun muassa:
Avoimet työtilat: Valoisat ja avarat tilat, jotka mahdollistavat joustavan työskentelyn.
Neuvotteluhuoneet: Useita eri kokoisia neuvotteluhuoneita, jotka soveltuvat niin pieniin palavereihin kuin suurempiin kokouksiin.
Hiljaiset työtilat: Erilliset tilat keskittymistä vaativaan työhön.
Yhteiset tilat: Mukavat ja viihtyisät taukotilat, joissa voi rentoutua ja verkostoitua kollegoiden kanssa.
Teknologia: Modernit IT-ratkaisut ja nopeat verkkoyhteydet.
Lisätiedot ja yhteydenotot: Jos olet kiinnostunut tästä upeasta toimistotilasta, ota yhteyttä ja sovi esittely. Tämä on tilaisuus, jota et halua jättää väliin!
Autotalokorttelin Runskivuori-toimistotalo sijaitsee näyttävällä paikalla Kampissa.
Avoimet työtilat: Valoisat ja avarat tilat, jotka mahdollistavat joustavan työskentelyn.
Neuvotteluhuoneet: Useita eri kokoisia neuvotteluhuoneita, jotka soveltuvat niin pieniin palavereihin kuin suurempiin kokouksiin.
Hiljaiset työtilat: Erilliset tilat keskittymistä vaativaan työhön.
Yhteiset tilat: Mukavat ja viihtyisät taukotilat, joissa voi rentoutua ja verkostoitua kollegoiden kanssa.
Teknologia: Modernit IT-ratkaisut ja nopeat verkkoyhteydet.
Lisätiedot ja yhteydenotot: Jos olet kiinnostunut tästä upeasta toimistotilasta, ota yhteyttä ja sovi esittely. Tämä on tilaisuus, jota et halua jättää väliin!
Autotalokorttelin Runskivuori-toimistotalo sijaitsee näyttävällä paikalla Kampissa.
Vapautuu
Kysy
Rakennusvuosi
1958
Kerros
4
Energiatehokkuusluokka
E2007
Ota yhteyttä
LähiTapiola Kiinteistövarainhoito Oy
Heli Jalonen
Vuokrauspäällikkö
Näytä puhelinnumero
040 823 3490
Pyydä lisätietoa
