Vuokrataan liiketilat - Helsinki
Runeberginkatu 5, Helsinki, Suomi, Kamppi, 00100 Helsinki #10834707
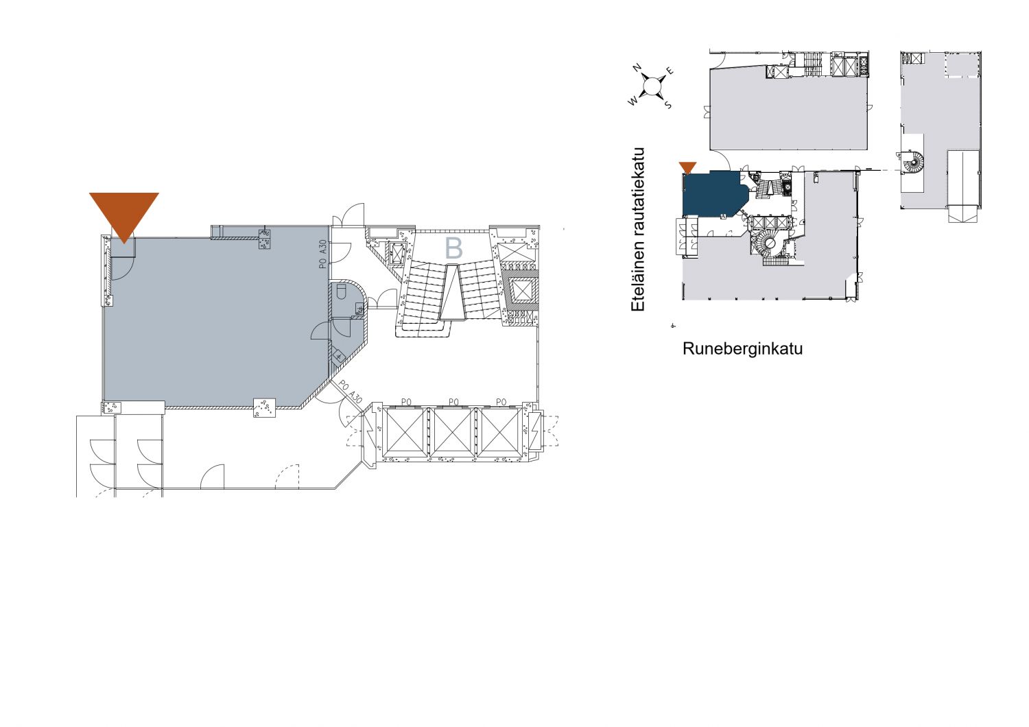
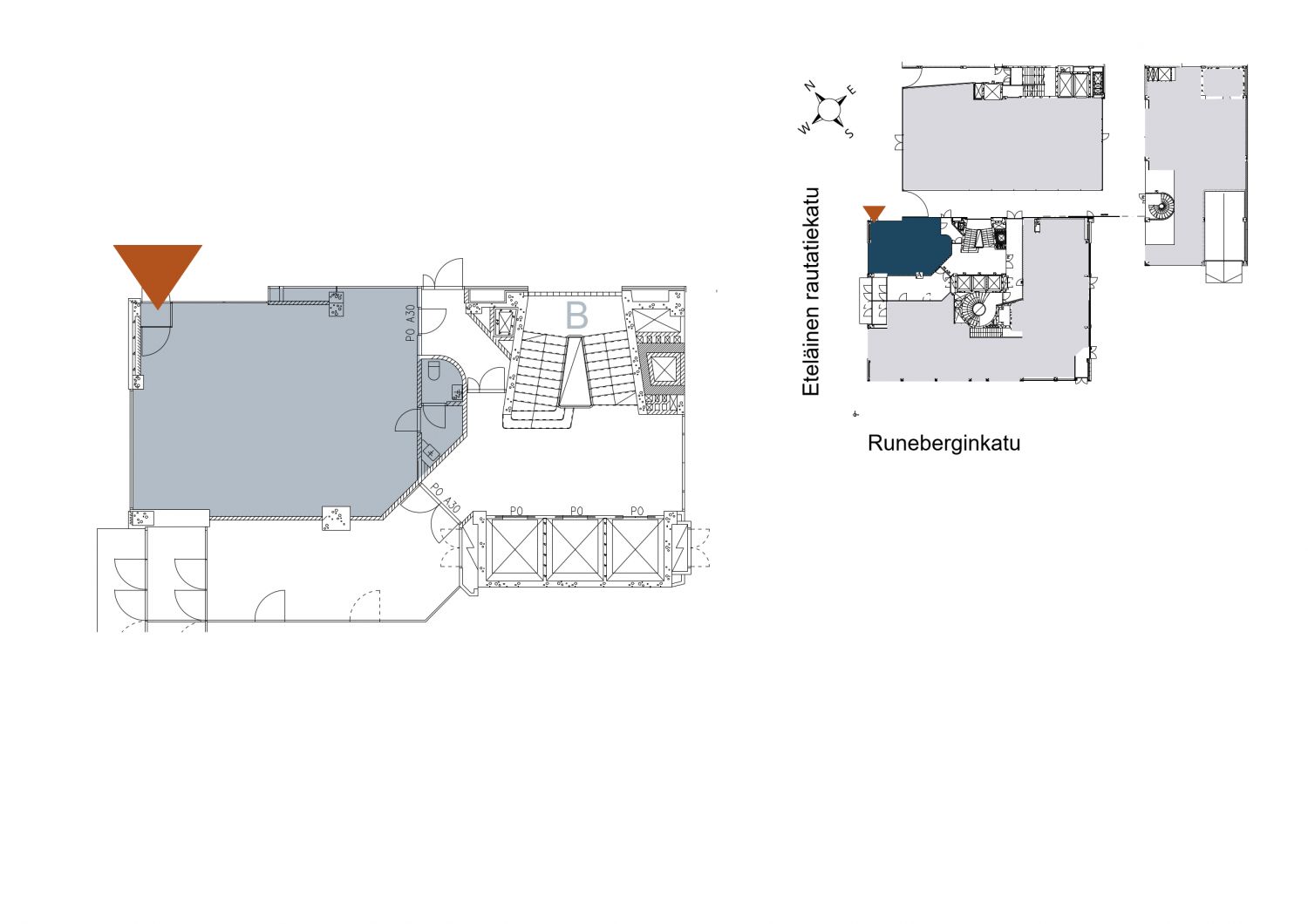
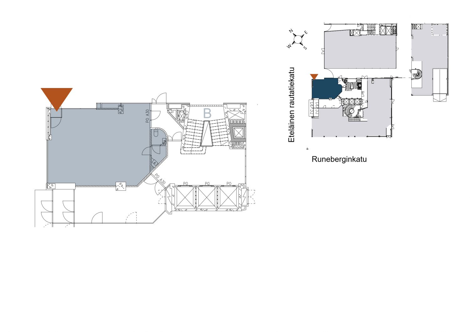
Autotalokorttelin Runskivuori-toimistotalo sijaitsee näyttävällä paikalla Kampissa.
Osoite
Runeberginkatu 5, Helsinki, Suomi, 00100 Helsinki
Tilatyyppi
Liiketilaa
66 m2
Kiinteistö
Helsingin Runeberginkatu 5
Ympäristö
Metroasema: 100 m, Raitiovaunupysäkki: 200 m, Juna-asema: 800 m, Bussipysäkki: alle 100 m, Lentoasema: 19,4 km
Kulkuyhteydet
Valokuitu
Muuta
Pieni näppärä katutason liiketila. Ei sovellu ravintolatoimintaan.
Kiinteistössä pysäköintihalli, pyöräilijöille pyöräparkit ja suihkutilat.
Autotalokorttelin Runskivuori-toimistotalo sijaitsee näyttävällä paikalla Kampissa.
Kiinteistössä pysäköintihalli, pyöräilijöille pyöräparkit ja suihkutilat.
Autotalokorttelin Runskivuori-toimistotalo sijaitsee näyttävällä paikalla Kampissa.
Vapautuu
Kysy
Rakennusvuosi
1958
Kerros
1
Energiatehokkuusluokka
E2007
Ota yhteyttä
LähiTapiola Kiinteistövarainhoito Oy
Heli Jalonen
Vuokrauspäällikkö
Näytä puhelinnumero
040 823 3490
Pyydä lisätietoa
