Vuokrataan liiketilat - Espoo
Länsituuli 1, Espoo, Suomi, Tapiola, 02100 Espoo #10834702
Länsikulma on Espoon Tapiolassa sijaitseva terveys- ja hyvinvointipalveluiden ”hyvän tuulen” talo.
Osoite
Länsituuli 1, Espoo, Suomi, 02100 Espoo
Tilatyyppi
Liiketilaa
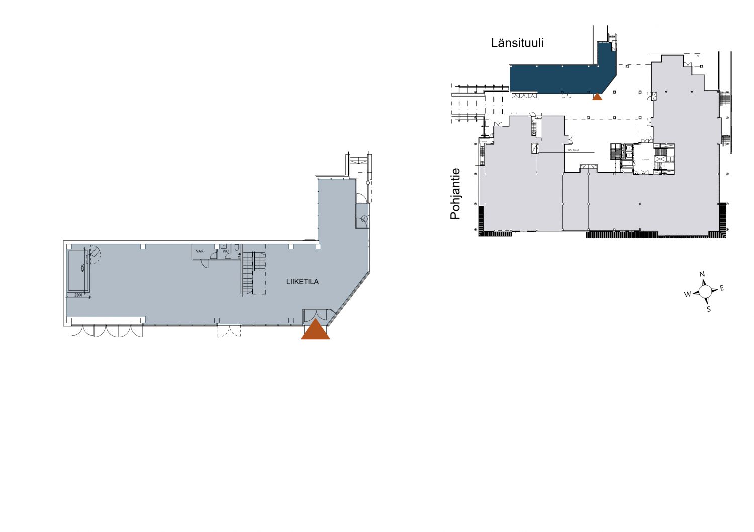
241 m2
Kiinteistö
Tapiolan Länsikulma
Ympäristö
Bussipysäkki: 50 m, Metroasema: 50 m, Juna-asema: 6,5 km, Lentoasema: 26 km
Pysäköinti
Saatavilla
Muuta
Kiinteistön katutason liiketila, joka vapautuu 1.1.2026. Tilassa on runsaasti ikkunapinta-alaa ja se on erinomaisesti saavutettavissa.
Keskeinen sijainti Tapiolan keskuksessa. Alueella meneillään olevien kiinteistökehitysprojektien vuoksi tilaa on mahdollista vuokrataan ainakin elokuun 2026 loppuun saakka.
Kiinteistössä mm. kuntosali ja vuokrattavaa saunatilaa. Kellarissa on tarjolla vuokrattavia pienvarastotiloja.
Länsikulmaan on erinomaiset julkiset liikenneyhteydet; lähin bussipysäkki on 100 metrin päässä ja metroasemalle on 300 metrin kävelymatka. Lentokentälle hurauttaa autolla alle puolessa tunnissa ja Helsingin keskustaan reilussa kymmenessä minuutissa. Lisäksi kiinteistö on erinomaisen pyörätieverkoston varrella, tuletpa mistä suunnasta tahansa.
Länsikulma on Espoon Tapiolassa sijaitseva terveys- ja hyvinvointipalveluiden ”hyvän tuulen” talo.
Keskeinen sijainti Tapiolan keskuksessa. Alueella meneillään olevien kiinteistökehitysprojektien vuoksi tilaa on mahdollista vuokrataan ainakin elokuun 2026 loppuun saakka.
Kiinteistössä mm. kuntosali ja vuokrattavaa saunatilaa. Kellarissa on tarjolla vuokrattavia pienvarastotiloja.
Länsikulmaan on erinomaiset julkiset liikenneyhteydet; lähin bussipysäkki on 100 metrin päässä ja metroasemalle on 300 metrin kävelymatka. Lentokentälle hurauttaa autolla alle puolessa tunnissa ja Helsingin keskustaan reilussa kymmenessä minuutissa. Lisäksi kiinteistö on erinomaisen pyörätieverkoston varrella, tuletpa mistä suunnasta tahansa.
Länsikulma on Espoon Tapiolassa sijaitseva terveys- ja hyvinvointipalveluiden ”hyvän tuulen” talo.
Vapautuu
Kysy
Rakennusvuosi
1985
Kerros
1
Energiatehokkuusluokka
C2018
Ota yhteyttä
LähiTapiola Kiinteistövarainhoito Oy
Heli Jalonen
Vuokrauspäällikkö
Näytä puhelinnumero
040 823 3490
Pyydä lisätietoa
