Vuokrataan liiketilat - Oulu
Isokatu 32, Oulu, Suomi, Oulu, 90100 Oulu #10834698
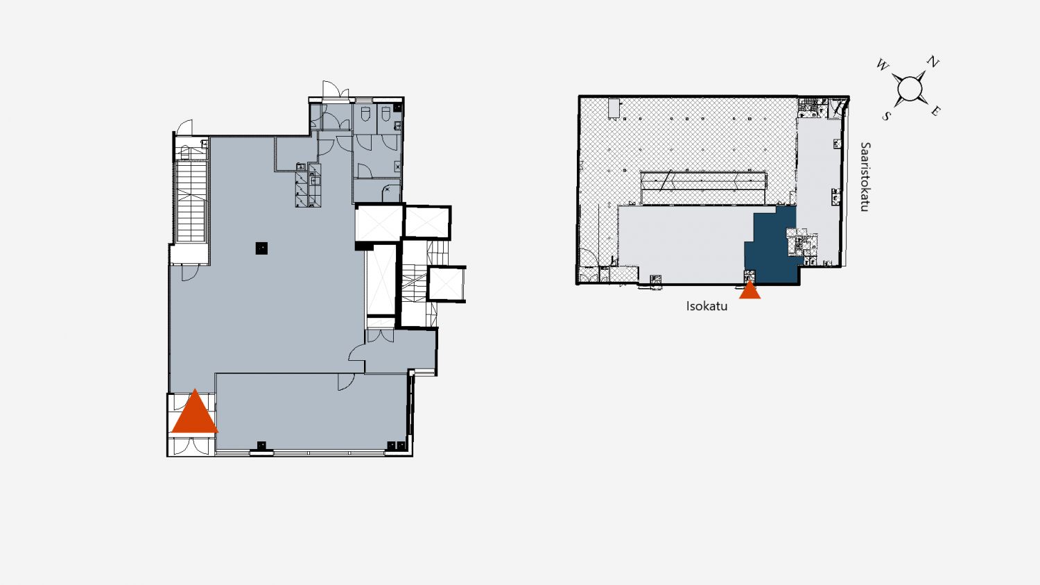
Osoite
Isokatu 32, Oulu, Suomi, 90100 Oulu
Tilatyyppi
Liiketilaa
172 m2
Kiinteistö
Oulun Isokatu 32
Ympäristö
Bussipysäkki: 50 m, Juna-asema: 900 m, Lentoasema: 14,7 km
Muuta
Isokatu 32 on Oulun keskustassa runsaiden palveluiden äärellä sijaitseva toimisto- ja liikerakennus.
Keskeisen sijaintinsa ansiosta kiinteistö on helposti saavutettavissa sekä julkisen liikenteen avulla että omalla autolla tai pyöräillen. Kiinteistössä on oma parkkihalli.
Keskeisen sijaintinsa ansiosta kiinteistö on helposti saavutettavissa sekä julkisen liikenteen avulla että omalla autolla tai pyöräillen. Kiinteistössä on oma parkkihalli.
Vapautuu
Kysy
Rakennusvuosi
1984
Kerros
1
Energiatehokkuusluokka
D2013
Ota yhteyttä
LähiTapiola Kiinteistövarainhoito Oy
Anne-Mari Ijäs
Vuokrauspäällikkö
Näytä puhelinnumero
040 415 4137
Pyydä lisätietoa
