Vuokrataan toimistotilat - Nurmijärvi
Karhutie 12, 01900 Nurmijärvi #10834693
Vuokrattavana erinomainen toimistotila ison betonihallin toisesta kerroksesta!
Osoite
Karhutie 12, 01900 Nurmijärvi
Tilatyyppi
Toimistotilaa
100 m2
Pohjapiirros
Virtuaaliesittely
Vuokra
10 €/m²/kk + alv
Muuta
Karhunkorven teollisuusalueella, Nurmijärvellä, on vuokrattavana tyylikäs ja hyväkuntoinen toimistotila betonihallirakennuksen toisesta kerroksesta.
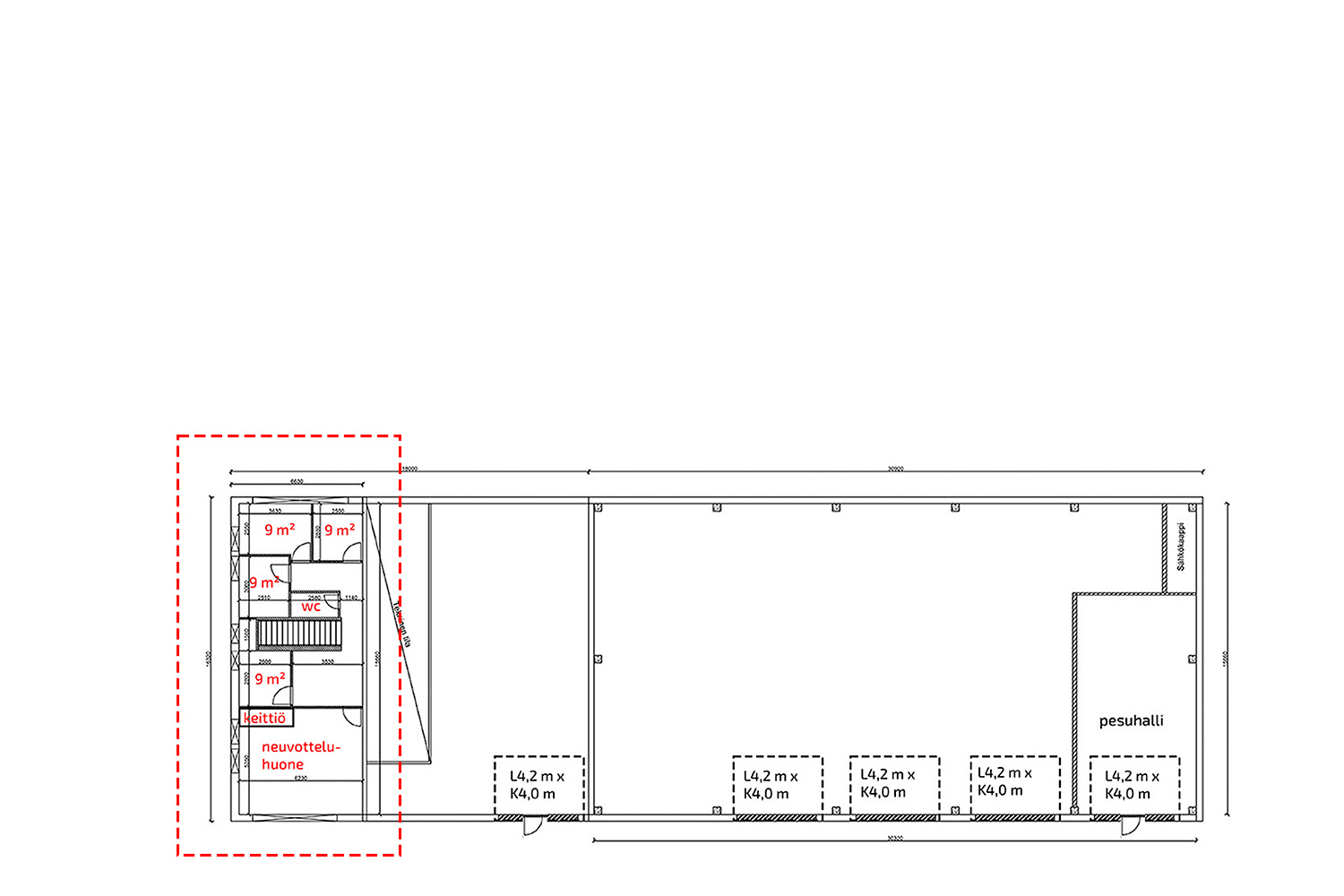
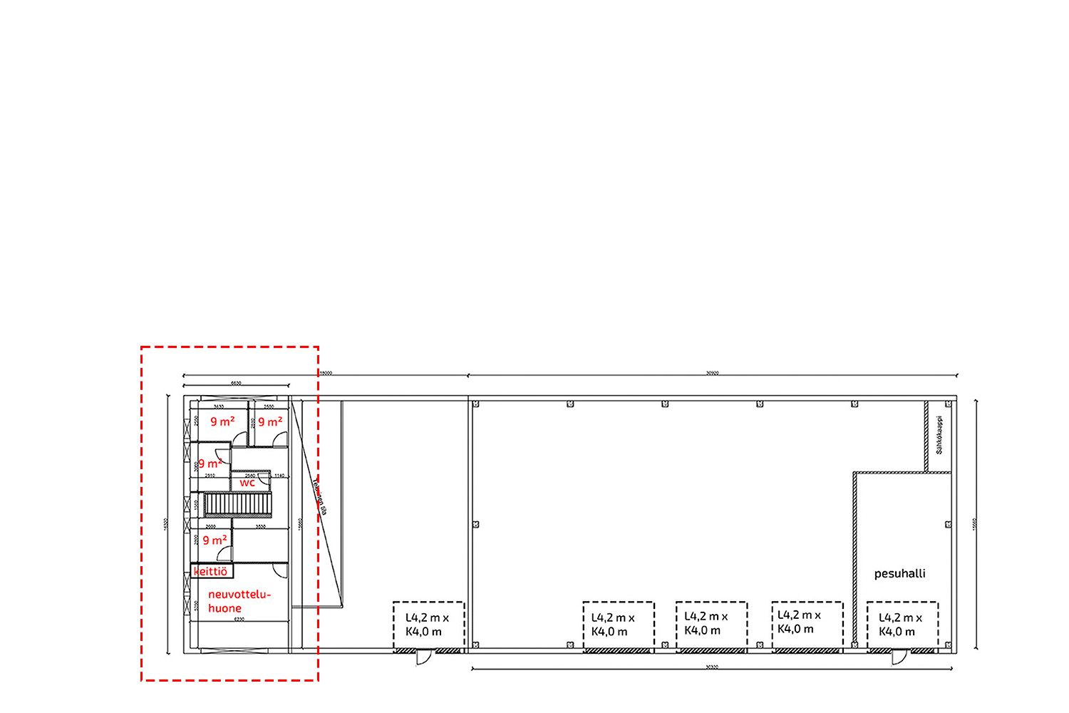
Ison hallirakennuksen yhteydessä (toisessa päädyssä) on noin 100 m² hieno toimistotila. Tilassa 4 pienempää huonetta (n 10 m²), yksi neuvotteluhuone, avokeittiö ja wc-tilat. Toimiston ikkunat ovat äänieristetyt, eikä moottoritien äänet kuulu tilaan ollenkaan. Jokaisessa toimistohuoneessa on ilmalämpöpumput.
Piha-aluetta vuokralaisen käytössä erikseen sovitusti. Pihaa ei ole aidattu. Vuokralainen vastaa omasta jätehuollostaan ja talvella oman pihaosuuden aurauksesta.
Hallikiinteistön näkyvyys ohiajavalle liikenteelle on erinomainen. Karhunkorven teollisuusalueelle on hyvät liikenneyhteydet ja 5 minuutin matka Ilvesvuoren teollisuuskeskittymään!
Hienot toimistilat nopeiden yhteyksien varrella!
Kohdetiedot
Sijainti
Katuosoite: Karhutie 12, 01900 Nurmijärvi
Kaupunginosa: Karhunkorpi
Ympäristö: Teollisuusalue
Rakennus/huoneisto
Pinta-alat: Noin 100 m²
Huoneistoselitelmä: Toimistotila
Kunto, varusteet ja palvelut: Hyvä kunto. Toimistohuoneita, neuvotteluhuone, avokeittiö, wc-tilat ja ilmalämpöpumput viilennykseen.
Lämmitys: Ilmalämpöpumput
Pysäköinti: Pihassa, erikseen sovitusti
Vapautuu: Heti vapaa
Vuokrahinta ja kulut
Kuukausivuokra: 10 €/m²/kk + alv
Käyttökulut: Vuokralainen vastaa sähkökuluista ja lämmityskuluista, aurauksesta talvella (oma pihaosuus) ja jätehuollosta.
Muut ehdot: Vakuus 3 kk:n vuokraa vastaava summa, minimisopimus 12 kk, luottotietojen on oltava kunnossa
Ison hallirakennuksen yhteydessä (toisessa päädyssä) on noin 100 m² hieno toimistotila. Tilassa 4 pienempää huonetta (n 10 m²), yksi neuvotteluhuone, avokeittiö ja wc-tilat. Toimiston ikkunat ovat äänieristetyt, eikä moottoritien äänet kuulu tilaan ollenkaan. Jokaisessa toimistohuoneessa on ilmalämpöpumput.
Piha-aluetta vuokralaisen käytössä erikseen sovitusti. Pihaa ei ole aidattu. Vuokralainen vastaa omasta jätehuollostaan ja talvella oman pihaosuuden aurauksesta.
Hallikiinteistön näkyvyys ohiajavalle liikenteelle on erinomainen. Karhunkorven teollisuusalueelle on hyvät liikenneyhteydet ja 5 minuutin matka Ilvesvuoren teollisuuskeskittymään!
Hienot toimistilat nopeiden yhteyksien varrella!
Kohdetiedot
Sijainti
Katuosoite: Karhutie 12, 01900 Nurmijärvi
Kaupunginosa: Karhunkorpi
Ympäristö: Teollisuusalue
Rakennus/huoneisto
Pinta-alat: Noin 100 m²
Huoneistoselitelmä: Toimistotila
Kunto, varusteet ja palvelut: Hyvä kunto. Toimistohuoneita, neuvotteluhuone, avokeittiö, wc-tilat ja ilmalämpöpumput viilennykseen.
Lämmitys: Ilmalämpöpumput
Pysäköinti: Pihassa, erikseen sovitusti
Vapautuu: Heti vapaa
Vuokrahinta ja kulut
Kuukausivuokra: 10 €/m²/kk + alv
Käyttökulut: Vuokralainen vastaa sähkökuluista ja lämmityskuluista, aurauksesta talvella (oma pihaosuus) ja jätehuollosta.
Muut ehdot: Vakuus 3 kk:n vuokraa vastaava summa, minimisopimus 12 kk, luottotietojen on oltava kunnossa
Vapautuu
Heti
Näkyvällä paikalla
Siltanosturi
Ota yhteyttä
Tilat.fi
KTM, LKV Antti Soivio
Näytä puhelinnumero
0400 446 553
OTM, LKV Riikka Tuominen
Näytä puhelinnumero
0400 551 790
KTM, LKV Maria-Sofia Puhakka
Näytä puhelinnumero
0400-150330
MBA Susanne Wallenius
Näytä puhelinnumero
0400-128877
LKV Tilat.fi Oy on toimitilojen välitykseen erikoistunut yritys.
http://www.tilat.fiPyydä lisätietoa
