Vuokrataan liiketilat, varastotilat - Helsinki
Munkkiniemen puistotie 5, Munkkiniemi, 00300 Helsinki #10834619
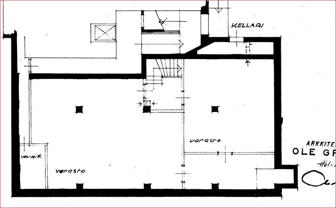
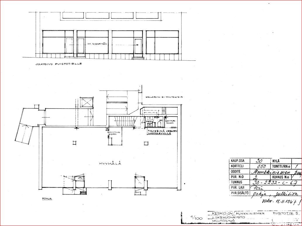
Munkkiniemen puistotie 5 on vapaana liiketila noin 100m2 ja alakerran varasto noin 95m2. Liiketilassa on isot näyteikkunat ja tila on korkea ja valoisa ja tilasta johtaa alakerran varastoon rappuset ja varastoa on noin 95m2. Tavaraa saa varastoo katutasolta luukusta josta likuna tilaan tai liiketilan kautta.
Tilassa on 1 wc ja vesipiste.
Vuokrataso on edullinen koska vuokralainen voi tehdä muutoksia kustannuksellaan tilaan, joista sovitaan omistajan kanssa.
Ehkä onnistuisi tehdä 2 wc tilaan ym.
Tilaan haetan perinteistä liiketilan ja / tai kauppan alan yritystä, sillä ravintolaa ei tilaan saa, ehkä kavilan voisi ? mutta ei mitään ruan valmistusta, se ei onnistu.
Sovi tilan katselmus ja katso kuvat.
Juselius Harry KTM, LKV, KJs
0400 208 419
harry.juselius@toimitilapalvelu.fi
Kaartinen Pentti Ekonomi
050 337 8148
pentti.kaartinen@toimitilapalvelu.fi
Aarno Toffer Merkonomi
044 978 1393
aarno.toffer@toimitilapalvelu.fi
www.toimitilapalvelu.fi
Toimitilapalvelu FNTC LKV
Käenkuja 8 A 45, 00500 Helsinki
Tehokasta toimitilavälitystä pääkaupunkiseudulla hyviä ja kohtuuhintaisia toimitilavuokrakohteita.
http://www.toimitilapalvelu.fi