Vuokrataan toimistotilat - Helsinki
Elimäenkatu 5, Vallila, 00510 Helsinki #10834598
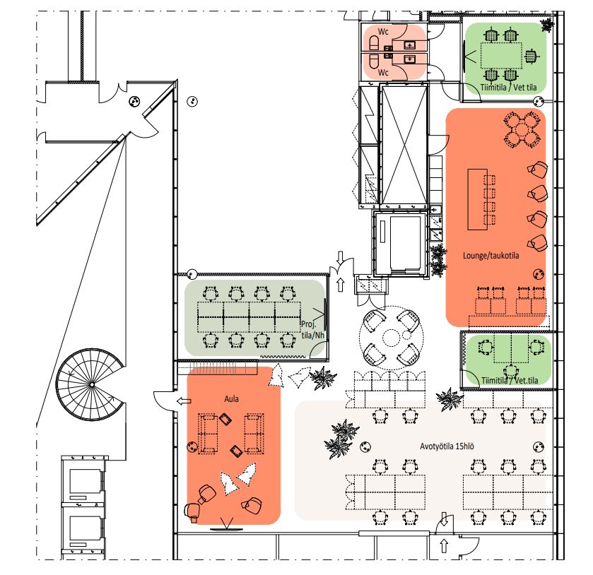
Vuokrattavana 5. kerroksen upea ja täysin remontoitu toimistotila.
Osoite
Elimäenkatu 5, 00510 Helsinki
Tilatyyppi
Toimistotilaa
291 m2
Kiinteistö
Vuokrattavana 5. kerroksen upea ja täysin remontoitu toimistotila. Tilassa on avotila, neuvotteluhuone, taukotilat.
Sijainti
Vallila, Helsinki
Pysäköinti
Oma pysäköintihalli n. 150 autopaikkaa
Palvelut
-Aulapalvelu
-Henkilöstöravintola
-Kuntosali
-Neuvottelutiloja
-Saunatilat
-Henkilöstöravintola
-Kuntosali
-Neuvottelutiloja
-Saunatilat
Kulkuyhteydet
-Metroasema 1,2 km
-Raitiovaunupysäkki 200 m
-Bussipysäkki 300 m
-Juna-asema 1,9 km
-Raitiovaunupysäkki 200 m
-Bussipysäkki 300 m
-Juna-asema 1,9 km
Vapautuu
Heti
Kerros
5
Energiatehokkuusluokka
Ei lain edellyttämää energiatodistusta
Näkyvällä paikalla
Hissi
Ota yhteyttä
REALIUM OY LKV
Tammasaarenkatu 1, 00180 Helsinki
Vaihde:
Näytä puhelinnumero
010 326 346
Tuomo Mäkelä
tuomo.makela@realium.fi
p.
Näytä puhelinnumero
044 050 1158
Joel Keto
joel.keto@realium.fi
p.
Näytä puhelinnumero
045 317 0330
KAIKKI TILAVAIHTOEHDOT KERRALLA!
SOITA - MEILAA JA TILAA NÄYTTÖ!
Ilmainen palvelu tilanhakijoille.
Kartoitamme parhaat tilavaihtoehdot.
Kaikki kohteet eivät ole netissä.
Pyydä lisätietoa
