Vuokrataan toimistotilat - Helsinki
Siltasaarenkatu 12, Hakaniemi, 00530 Helsinki #10834582
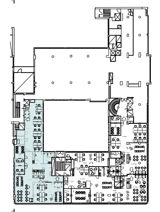
Vuokrattavana 3. kerroksen täysin remontoitua ja valoisaa toimistotilaa.
Osoite
Siltasaarenkatu 12, 00530 Helsinki
Tilatyyppi
Toimistotilaa
307 m2
Kiinteistö
Vuokrattavana 3. kerroksen täysin remontoitua ja valoisaa toimistotilaa. Tilassa avotila, vetäytymistila, puhelinkoppi, neuvotteluhuone ja 2 WC:tä.
Sijainti
Hakaniemi, Helsinki
Pysäköinti
Omassa parkkihallissa
Palvelut
Lähialueella esimerkiksi monipuolinen valikoima lounasravintoloita.
Kulkuyhteydet
-Metroasema 500 m
-Raitiovaunupysäkki alle 100 m
-Bussipysäkki alle 100 m
-Juna-asema 1,3 km
-Raitiovaunupysäkki alle 100 m
-Bussipysäkki alle 100 m
-Juna-asema 1,3 km
Vapautuu
Heti
Kerros
3
Energiatehokkuusluokka
Ei lain edellyttämää energiatodistusta
Näkyvällä paikalla
Hissi
Ota yhteyttä
REALIUM OY LKV
Tammasaarenkatu 1, 00180 Helsinki
Vaihde:
Näytä puhelinnumero
010 326 346
Tuomo Mäkelä
tuomo.makela@realium.fi
p.
Näytä puhelinnumero
044 050 1158
Joel Keto
joel.keto@realium.fi
p.
Näytä puhelinnumero
045 317 0330
KAIKKI TILAVAIHTOEHDOT KERRALLA!
SOITA - MEILAA JA TILAA NÄYTTÖ!
Ilmainen palvelu tilanhakijoille.
Kartoitamme parhaat tilavaihtoehdot.
Kaikki kohteet eivät ole netissä.
Pyydä lisätietoa
