Vuokrataan toimistotilat - Helsinki
Siltasaarenkatu 12, Hakaniemi, 00530 Helsinki #10834580
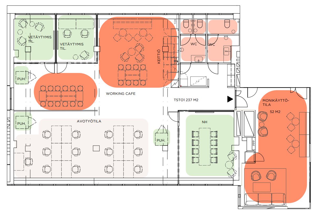
Vuokrattavana modernia, valoisaa, edustavaa, täysin remontoitua toimistotilaa.
Osoite
Siltasaarenkatu 12, 00530 Helsinki
Tilatyyppi
Toimistotilaa
261,5 m2
Kiinteistö
Vuokrattavana modernia, valoisaa, edustavaa, täysin remontoitua toimistotilaa. Tilassa 4 vetäytymistilaa/neuvotteluhuonetta, monikäyttötila, keittiö, kaksi wc:tä sekä siivouskomero.
Sijainti
Hakaniemi, Helsinki
Pysäköinti
Kiinteistön omassa parkkihallissa
Palvelut
Lähialueella lounasravintola, kahvila.
Kulkuyhteydet
-Metroasema 50 m
-Raitiovaunupysäkki alle 100 m
-Bussipysäkki alle 100 m
-Juna-asema 1,3 km
-Raitiovaunupysäkki alle 100 m
-Bussipysäkki alle 100 m
-Juna-asema 1,3 km
Vapautuu
Heti
Kerros
7
Energiatehokkuusluokka
Ei lain edellyttämää energiatodistusta
Näkyvällä paikalla
Hissi
Ota yhteyttä
REALIUM OY LKV
Tammasaarenkatu 1, 00180 Helsinki
Vaihde:
Näytä puhelinnumero
010 326 346
Tuomo Mäkelä
tuomo.makela@realium.fi
p.
Näytä puhelinnumero
044 050 1158
Joel Keto
joel.keto@realium.fi
p.
Näytä puhelinnumero
045 317 0330
KAIKKI TILAVAIHTOEHDOT KERRALLA!
SOITA - MEILAA JA TILAA NÄYTTÖ!
Ilmainen palvelu tilanhakijoille.
Kartoitamme parhaat tilavaihtoehdot.
Kaikki kohteet eivät ole netissä.
Pyydä lisätietoa
